$4,800
For Rent
Base rent only. For total monthly price and additional fees, see .
Rented 9/17/2025
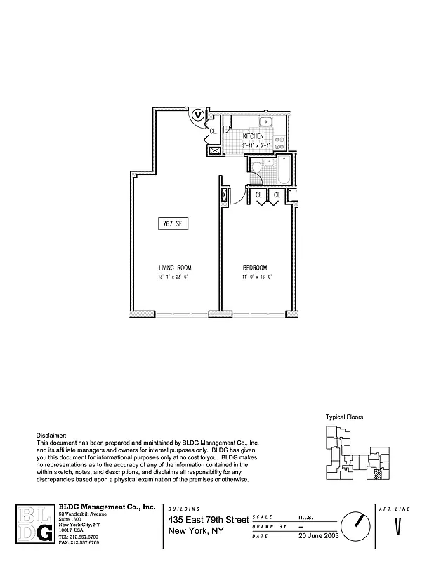
- ft²
3 rooms
1 bed
1 bath
Rental unit
- Yorkville
Under NYC law, you can't be charged a broker fee if you didn't hire a broker.
Listed By
This home has been saved by 5 users.
Listing by Real Estate Investors Group LLC, Limited Liability Broker, 179 Harbor Acres Road, Sands Point, NY 11050
Unavailable
Rented on 9/17/2025
Days on market
14 days
Last price change
No changes
About
Large and renovated 1 bedroom, facing East with great sunlight, in a pet friendly, doorman building, just steps from the crosstown bus and transportation!
Bedroom can easily fit a king size bed
Great Closet Space
Large Living room
Kitchen with Dishwasher and Stainless Steel Appliances, with granite counter tops and floor
Marble tiled bathroom.
Policies
Sorry, policy info isn’t available right now. Check back later.
Home features
Dishwasher
Hardwood floors
View
City
Building amenities
Services and facilities
Bike room
Doorman
Elevator
Laundry in building
Live-in super
Package room
Parking
Garage
Storage space
Locker/cage
Wellness and recreation
Gym
Shared outdoor space
Courtyard
About the building
435 East 79th Street
435 East 79th Street, New York, NY 10075
233 units
13 stories
1956 built
Property history
Prices shown are base rent only. For total monthly price and additional fees, see .
| Date | Base rent | Event |
|---|---|---|
9/17/2025 | $4,800 | Rented by Real Estate Investors Group LLC |
9/3/2025 | $4,800 | Listed by Real Estate Investors Group LLC |
7/28/2022 | $3,950 | |
7/22/2022 | $3,950 |
Past listing photos
Sign in to take a closer look at how this home compares to similar homes.
Explore Yorkville
Transit
| Location | Distance |
|---|---|
Qat 86th St | 0.32 miles |
Qat 72nd St | 0.46 miles |
6at 77th St | 0.48 miles |
456at 86th St | 0.57 miles |
6at 68th St–Hunter College | 0.75 miles |
About Yorkville
Rental prices shown are base rent before any fees. Visit listings for cost and fees breakdown.
SalesMedian asking price
1 bed
$679K
RentalsMedian asking base rent
1 bed
$4,150
When George Washington commandeered the building site that would eventually become Gracie Mansion, he probably didn't imagine that this peaceful, riverside enclave would become the lively residential neighborhood it is today. Between then and now, Yorkville has seen a lot of change. Tony mansions and elevated trains went up at the turn of the century and then came down in the postwar years as a middle-class population moved in.
Now, the neighborhood is a haven of high-rise co-ops and condos interspersed with quiet rows of townhouses. The mixed housing stock makes Yorkville a practical choice for anyone seeking a slowed-down Manhattan vibe. Several avenues over from the throngs of Lexington and Third Avenues, Yorkville maintains a low-key, no-frills feel — it's a place where you'll find more diners and donut shops than upscale lounges and boutiques. This homey attitude is writ in its storefronts, where the food is kept simple and the owners are often from around the block.
Similar homes
Prices shown are base rent only and don't include any fees. Visit each listing to see a complete cost breakdown.
Similar Homes looks at ad spend and other factors like location, price, and number of beds and baths.






























































































































