View this home virtually
- ft²
4 rooms
1 bed
1 bath
Co-op
- Yorkville
Resale
recorded sale
Sold on 3/25/2025
Verified by closing records
Last listed for $625,000
Seller's agent
This home has been saved by 75 users.
Listing by Elegran, 1407 Broadway, New York, NY 10018
Maintenance fees
$962/mo
Estimated payment
$4,247/mo
Taxes
Included in maintenance fees
Tax abatement
No info
About
Seller’s agent
Buyer’s agent
description
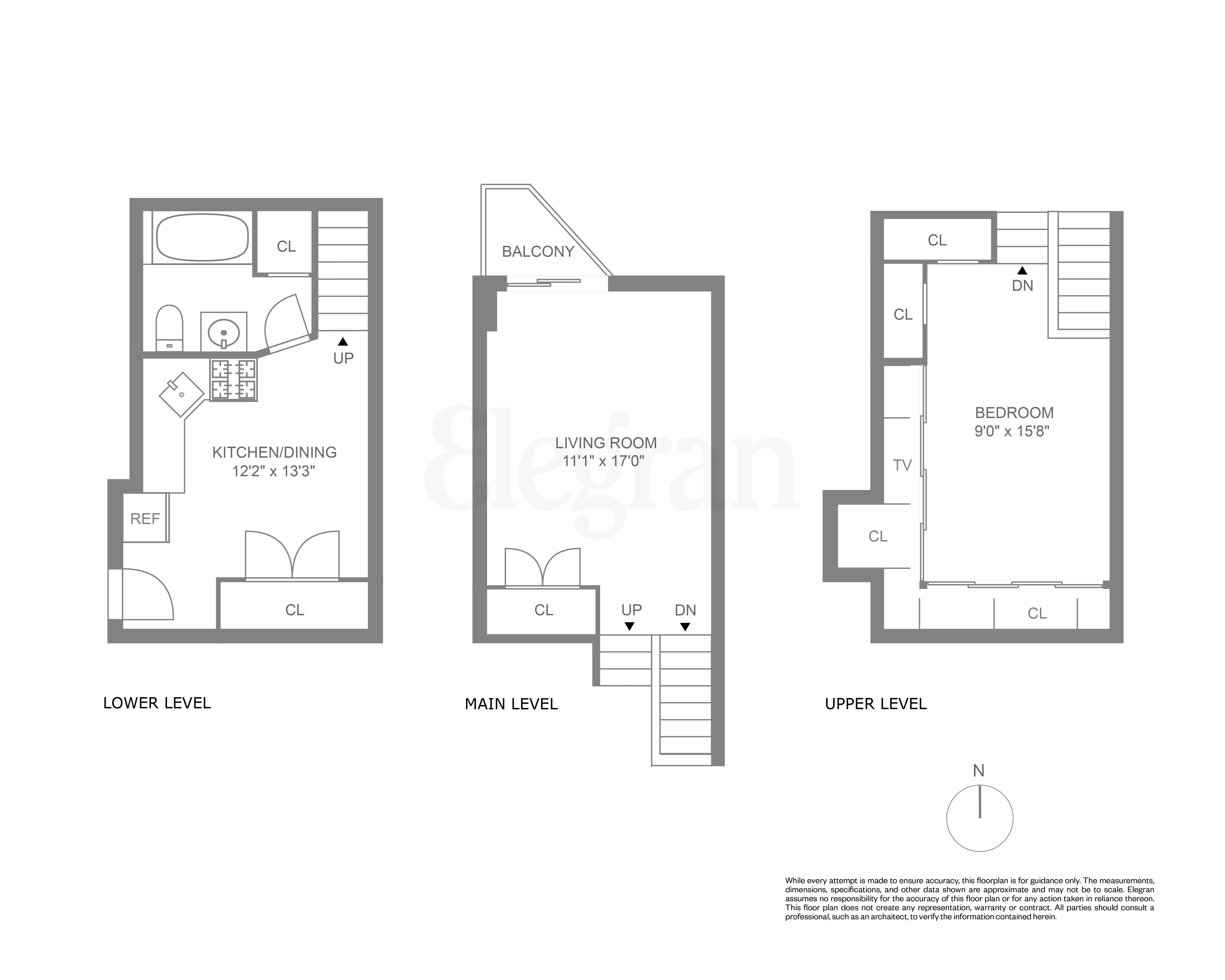
Mint Condition Triplex with private outdoor space! Tons of closet space over 8 large closets throughout the apartment.* Unlimited subletting after 5 years*
When you enter your new triplex home, which is not your average cookie-cutter one-bedroom in NYC, you’ll be greeted with a large eat-in kitchen, complete with stainless steel appliances, custom cabinetry, and wood floors.
Policies
Co-purchase allowed
Gifts allowed
Guarantors accepted
Parents buying allowed
Pets allowed
Pied-a-terre allowed
Sublets allowed
Home features
Hardwood floors
Private outdoor space
Balcony
View
Garden, Skyline
Building amenities
Services and facilities
Doorman
Virtual
Elevator
Laundry in building
Package room
Wellness and recreation
Gym
Shared outdoor space
No info on shared outdoor space
About the building
435 East 86th Street
435 East 86th Street, New York, NY 10028
60 units
9 stories
1910 built
For sale
0 available units for saleFor rent
1 available units for rentDocuments and permits
View documents and permitsProperty history
- Price Change: ↓ $25,000 (-3.8%) on 11/21/24
- Days on market: 100 days
| Date | Price | Event |
|---|---|---|
3/25/2025 | $605,000 | Sold by Elegran |
1/9/2025 | $625,000 | In contract |
11/21/2024 | $625,000 | Price decreased by 4% |
10/1/2024 | $650,000 | Listed by Elegran |
10/1/2024 | $650,000 |
Past listing photos
Sign in to take a closer look at how this home compares to similar homes.
Explore Yorkville
Transit
| Location | Distance |
|---|---|
Qat 86th St | 0.2 miles |
456at 86th St | 0.44 miles |
Qat 96th St | 0.44 miles |
6at 96th St | 0.64 miles |
6at 77th St | 0.65 miles |
About Yorkville
Rental prices shown are base rent before any fees. Visit listings for cost and fees breakdown.
SalesMedian asking price
1 bed
$696K
RentalsMedian asking base rent
1 bed
$4,295
When George Washington commandeered the building site that would eventually become Gracie Mansion, he probably didn't imagine that this peaceful, riverside enclave would become the lively residential neighborhood it is today. Between then and now, Yorkville has seen a lot of change. Tony mansions and elevated trains went up at the turn of the century and then came down in the postwar years as a middle-class population moved in.
Now, the neighborhood is a haven of high-rise co-ops and condos interspersed with quiet rows of townhouses. The mixed housing stock makes Yorkville a practical choice for anyone seeking a slowed-down Manhattan vibe. Several avenues over from the throngs of Lexington and Third Avenues, Yorkville maintains a low-key, no-frills feel — it's a place where you'll find more diners and donut shops than upscale lounges and boutiques. This homey attitude is writ in its storefronts, where the food is kept simple and the owners are often from around the block.



































































































