- ft²
2 rooms
Studio
3 baths
House
- West Village
recorded sale
Sold on 5/13/2015
Verified by closing records
Last listed for $6,750,000
Seller's agent
This home has been saved by 45 users.
Listing by Brown Harris Stevens, Real Estate Principal Office, 100 Fifth Avenue, New York, NY 10011 | MLS #: 11364844
Common charges
Not applicable
Estimated payment
$35,294/mo
Legal disclaimerAll calculations are estimates provided by StreetEasy for informational purposes only. Actual amounts or financing terms may vary. Please contact your mortgage provider for specifics.Taxes
No info
Tax abatement
No info
About
Seller’s agent
Buyer’s agent
description
CONTRACT SIGNED
WEST VILLAGE-MEAT PACKING DISTRICT
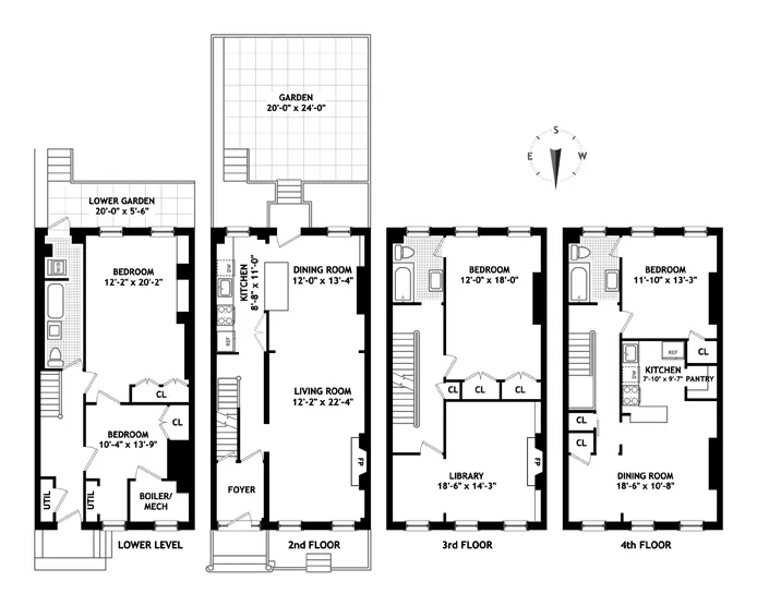
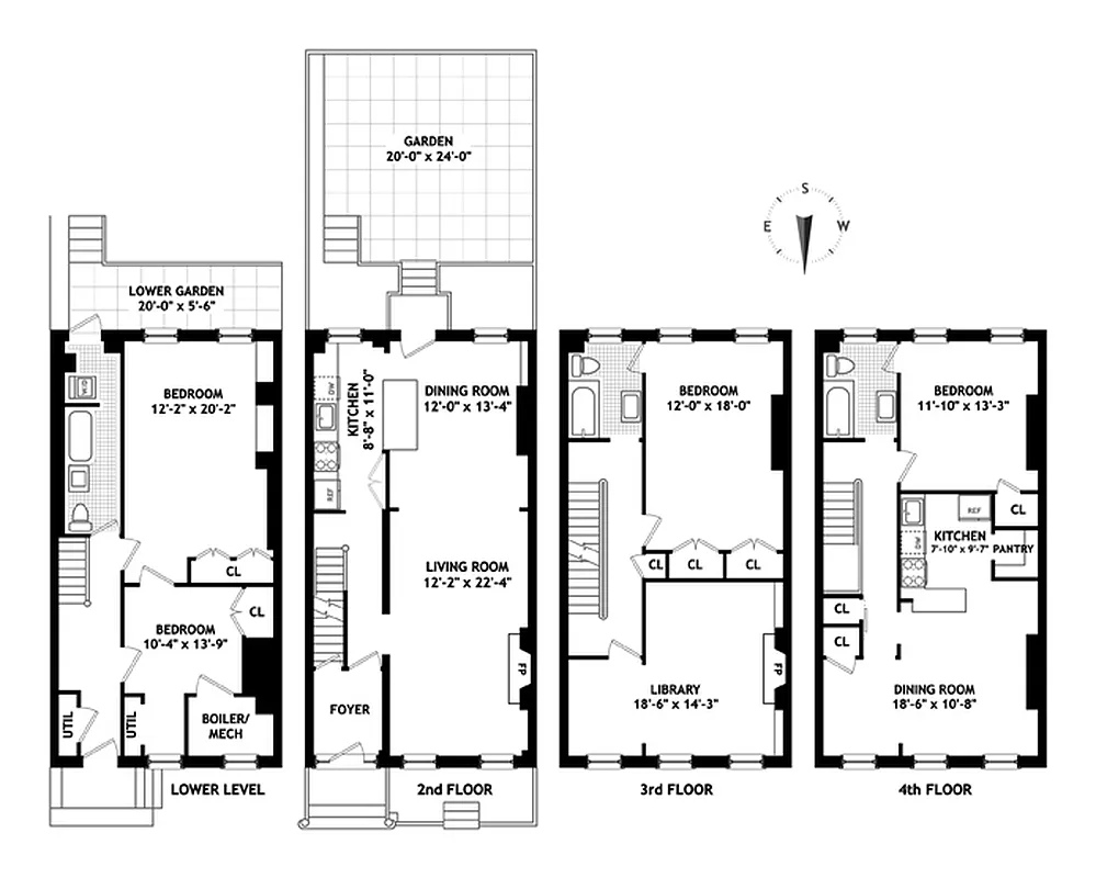
2O Ft. wide townhouse (circa 1890's) located in a perfect West Village location. This handsome 4 story brick house is currently configured as a 2 family with an upper and lower duplex. The sunny 2 bedroom upper duplex has original wide plank floors and a wood burning fireplace. The lower duplex has an expansive parlor floor with an open kitchen plus access to a private garden.
Policies
Sorry, policy info isn’t available right now. Check back later.
Home features
Private outdoor space
Garden
Building amenities
Sorry, building amenities aren't available right now. Check back later.
About the building
44 Horatio Street
44 Horatio Street, New York, NY 10014
1 unit
4 stories
1899 built
For sale
0 available units for saleFor rent
0 available units for rentDocuments and permits
View documents and permitsProperty history
- Price Change: No changes
- Days on market: 49 daysThis is the number of days the listing has been on StreetEasy.
| Date | Price | Event |
|---|---|---|
2/27/2015 | $6,250,000 | |
5/13/2015 | $6,250,000 | Sold by Brown Harris Stevens |
3/3/2015 | $6,750,000 | No longer available |
2/27/2015 | $6,750,000 | In contract |
10/30/2014 | $6,750,000 | Listed by Brown Harris Stevens |
Past listing photos
Sign in to take a closer look at how this home compares to similar homes.
Explore West Village
Transit
| Location | Distance |
|---|---|
ACELat 8th Av | 0.14 miles |
ACELat 14th St | 0.15 miles |
FLM123at 14th St | 0.23 miles |
1at Christopher St–Sheridan Sq | 0.36 miles |
PATHat Christopher Street Station | 0.39 miles |
About West Village
Rental prices shown are base rent before any fees. Visit listings for cost and fees breakdown.
SalesMedian asking price
Studio
$622K
RentalsMedian asking base rent
Studio
$4,200
Picture a romantic comedy set in New York City: The heroine invariably lives in a cozy walk-up on a cobblestone street in a neighborhood with cute boutiques and trendy cafes on every corner. This movie is set in the West Village. In reality, the West Village is just as picturesque: The neighborhood is tucked between Greenwich Village and the Hudson River and is one of the quietest and most sophisticated pockets of Downtown Manhattan. Primarily residential, with a distinct lack of office buildings, the leafy, off-the-grid streets are peaceful during the day but get livelier at night. That's when well-heeled residents, fashionistas, and literati can all be found mingling over oysters at the area's many low-lit cocktail bars.
Learn more about West Village



































































































