$3,500,000
For Sale
Delisted 8/2/2013
- ft²
9 rooms
3 beds
3 baths
House
- Boerum Hill
Seller's agent
This home has been saved by 19 users.
Listing by Brown Harris Stevens, Real Estate Principal Office, 100 Seventh Avenue, Brooklyn, NY 11215 | MLS #: 3908377
Common charges
Not applicable
Estimated payment
$17,240/mo
Legal disclaimerAll calculations are estimates provided by StreetEasy for informational purposes only. Actual amounts or financing terms may vary. Please contact your mortgage provider for specifics.Taxes
No info
Tax abatement
No info
About
Seller’s agent
description
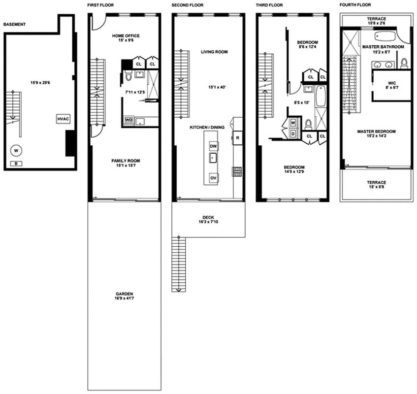
TRES BROOKLYN
This historic 4-story, single-family Boerum Hill home has been elegantly expanded and dramatically transformed into a beautiful and modern townhouse. Loft-like and sun-drenched throughout the day - this home offers a rare opportunity to DWELL in a uniquely stunning space that has been thoughtfully designed and executed throughout.
Policies
Sorry, policy info isn’t available right now. Check back later.
Home features
Private outdoor space
Garden, Patio
Washer/dryer
Building amenities
Services and facilities
Laundry in building
Storage space
Wellness and recreation
No info on wellness and recreation
Shared outdoor space
Deck
About the building
442 State Street
442 State Street, Brooklyn, NY 11217
1 unit
2 stories
1910 built
For sale
0 available units for saleFor rent
0 available units for rentDocuments and permits
View documents and permitsProperty history
- Price Change: No changes
- Days on market: 93 daysThis is the number of days the listing has been on StreetEasy.
| Date | Price | Event |
|---|---|---|
1/22/2014 | $3,500,000 | Delisted by Brown Harris Stevens |
8/2/2013 | $3,500,000 | No longer available |
5/1/2013 | $3,500,000 | Listed by Brown Harris Stevens |
4/26/2010 | $775,000 | |
1/13/2013 | $1,200,000 |
Sign in to take a closer look at how this home compares to similar homes.
Explore Boerum Hill
Transit
| Location | Distance |
|---|---|
ACGat Hoyt & Schermerhorn | 0.14 miles |
2345at Nevins St | 0.15 miles |
BQRat DeKalb Av | 0.22 miles |
23at Hoyt St | 0.24 miles |
BDNQR2345at Atlantic Av–Barclays Ctr | 0.28 miles |
About Boerum Hill
Rental prices shown are base rent before any fees. Visit listings for cost and fees breakdown.
SalesMedian asking price
3 beds
$3.35M
RentalsMedian asking base rent
3 beds
$5,500
Energetic and inviting, Boerum Hill continues its run as one of New York City's most desirable neighborhoods, all while remaining a secret quietly shared amongst its happy residents. Its appeal and vibrancy stem from its housing stock. Handsome Greek revival and Italianate townhouses line the wide, tree-lined streets. These beautiful brick and limestone buildings have long been a mecca for Brooklynites seeking an enclave close to Downtown Brooklyn and lower Manhattan — but far from crowds and highrises.
Main drags like Bergen Street, Atlantic Avenue, and Smith Street are peppered with charming boutiques like Collier West in addition to welcoming cafes, bars, and restaurants, including Rucola, French Louie, and Bacchus, to name a few. Fans of new construction will find new condo developments too. Saint Marks Place, The Hendrick, The Boerum, and The Bergen have expanded buyers' opportunities. Renters will also find plenty of options here in a broad range of prices, from the genuinely affordable to the luxurious.































































































































































































