$4,350
For Rent
Base rent only. For total monthly price and additional fees, see .
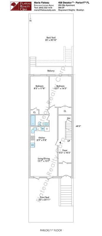
966 ft²
$54 per ft²
3 rooms
2 beds
1 bath
Two-family home
- Stuyvesant Heights
Under NYC law, you can't be charged a broker fee if you didn't hire a broker.
Listed By
This home has been saved by 13 users.
Listing by Flateau Realty, Corporate Broker, 368a Decatur Street, Brooklyn, NY 11233
Available
Available now
Days on market
21 days
Last price change
↓ $150 (-3.3%) on 2/18/26
About
OPEN HOUSE Sat, Feb 21 (11 AM–12 PM ET), by appt only.
Welcome home to this brand-new 2BR/1BA at 458 Decatur St. in the heart of Brooklyn. The apartment features modern finishes, a sleek kitchen with dishwasher, in-unit washer/dryer, and a bright, well-designed layout, plus private outdoor space for a breath of fresh air. Enjoy the convenience of a virtual doorman in a clean, contemporary new-construction building.
Policies
Sorry, policy info isn’t available right now. Check back later.
Home features
Central air
Dishwasher
Hardwood floors
Private outdoor space
Balcony, Garden
View
Garden
Washer/dryer
Building amenities
Services and facilities
Doorman
Virtual
Laundry in building
Wellness and recreation
No info on wellness and recreation
Shared outdoor space
Courtyard
About the building
458 Decatur Street
458 Decatur Street, Brooklyn, NY 11233
2 units
2 stories
1899 built
Property history
Prices shown are base rent only. For total monthly price and additional fees, see .
| Date | Base rent | Event |
|---|---|---|
2/18/2026 | $4,350 | Price decreased by 3% |
2/3/2026 | $4,500 | Listed by Flateau Realty |
Sign in to take a closer look at how this home compares to similar homes.
Explore Stuyvesant Heights
Transit
| Location | Distance |
|---|---|
ACat Ralph Av | 0.25 miles |
ACat Utica Av | 0.33 miles |
Jat Halsey St | 0.52 miles |
JZat Gates Av | 0.54 miles |
ACat Rockaway Av | 0.62 miles |
Similar homes
Prices shown are base rent only and don't include any fees. Visit each listing to see a complete cost breakdown.
Similar Homes looks at ad spend and other factors like location, price, and number of beds and baths.


































































































































































