$2,750,000
For Sale
- ft²
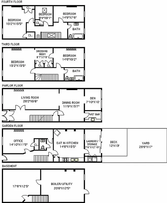
10 rooms
5 beds
3 baths
Two-family home
- Hamilton Heights
Resale
This home has been saved by 11 users.
Listing by Compass, Corporate Broker, 110 5th Avenue, New York, NY 10011
Common charges
Not applicable
Estimated payment
$14,719/mo
Legal disclaimerAll calculations are estimates provided by StreetEasy for informational purposes only. Actual amounts or financing terms may vary. Please contact your mortgage provider for specifics.Taxes
$450/mo
Tax abatement
No info
About
Seller’s agent
description
Rare Opportunity in Hamilton Heights!
Experience refined townhouse living with exceptional potential for long-term value appreciation.
This classically elegant home is set on a quiet, tree-lined street in the heart of historic Hamilton Heights, blending timeless prewar charm with modern upgrades.
Property Highlights
Five Bedrooms – Generously sized and adaptable to your lifestyle needs.
Policies
Sorry, policy info isn’t available right now. Check back later.
Home features
Central air
Dishwasher
Fireplace
Decorative
Hardwood floors
Private outdoor space
Garden
View
Garden, Skyline
Washer/dryer
Building amenities
No info on building amenities
About the building
458 West 153rd Street
458 West 153rd Street, New York, NY 10031
2 units
3 stories
1899 built
For sale
1 available units for saleFor rent
1 available units for rentDocuments and permits
View documents and permitsProperty history
- Price Change: No changes
- Days on market: 88 daysThis is the number of days the listing has been on StreetEasy.
| Date | Price | Event |
|---|---|---|
10/22/2025 | $2,750,000 | Listed by Compass |
Sign in to take a closer look at how this home compares to similar homes.
Explore Hamilton Heights
Transit
| Location | Distance |
|---|---|
Cat 155th St | 0.11 miles |
ABCDat 145th St | 0.29 miles |
1at 157th St | 0.29 miles |
BDat 155th St | 0.35 miles |
Cat 163rd St–Amsterdam Av | 0.41 miles |































































































































































































































































