$1,350,000
For Sale
In contract 12/19/2025
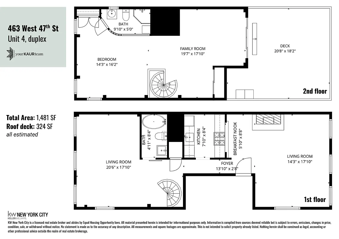
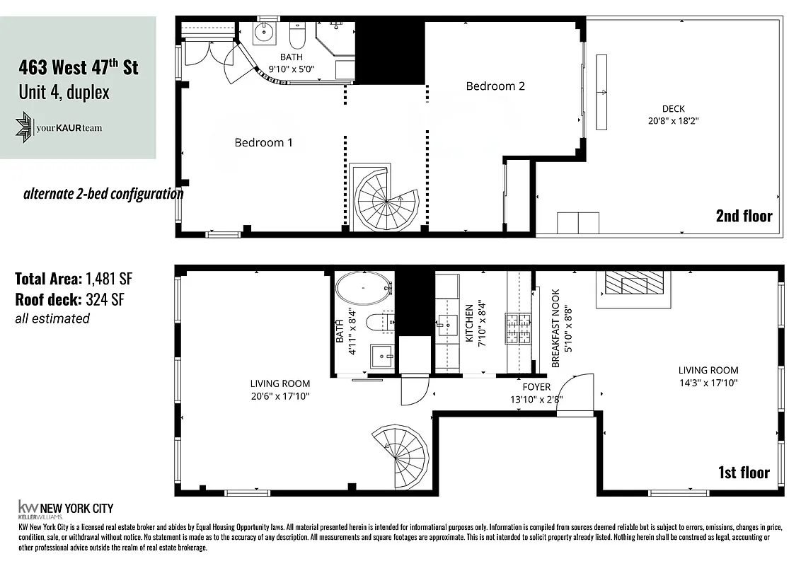
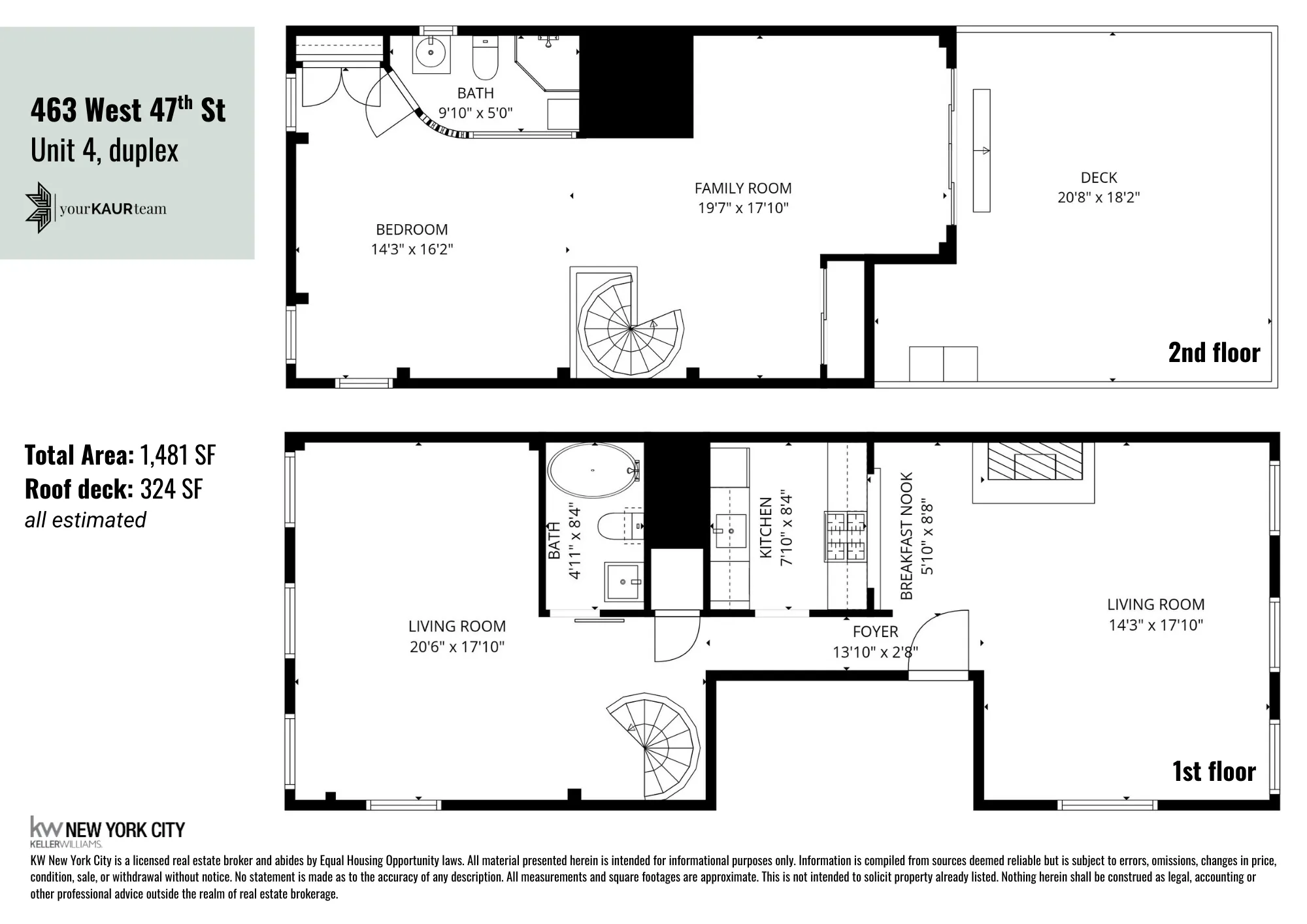
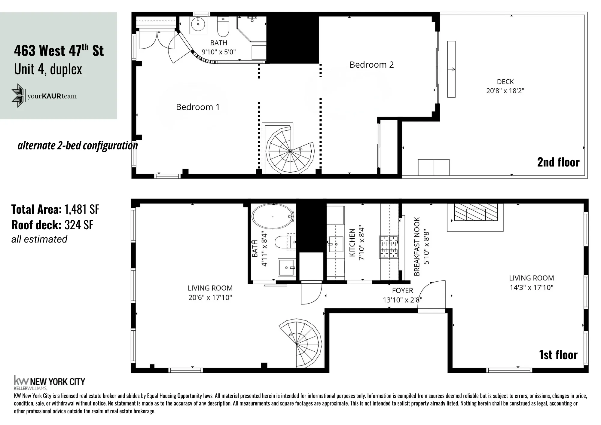
1,481 ft²
$911 per ft²
7 rooms
2 beds
2 baths
Co-op
- Hell's Kitchen
Resale
This home has been saved by 100 users.
Listing by Keller Williams NYC, Limited Liability Broker, 360 Madison Avenue, New York, NY 10017
Maintenance fees
$1,457/mo
Estimated payment
$9,337/mo
Legal disclaimerAll calculations are estimates provided by StreetEasy for informational purposes only. Actual amounts or financing terms may vary. Please contact your mortgage provider for specifics.Taxes
Included in maintenance fees
Tax abatement
No info
About
Seller’s agent
description
Multiple offers, contracts out.
Tucked above a tree-lined block in Hell’s Kitchen, this soulful duplex co-op is on the market for the first time in nearly 40 years—formerly owned by a celebrated artist and singer, and it shows in every custom detail.
Perched on the top floor of a quaint 4-unit co-op, this nearly 1,500 SF duplex (plus ~325 SF private roof deck) is a true one-of-a-kind home.
Policies
Sorry, policy info isn’t available right now. Check back later.
Home features
Central air
Dishwasher
Fireplace
Wood
Hardwood floors
Private outdoor space
Balcony, Garden, Roof deck, Roof rights, Terrace
View
City, Park, Skyline
Building amenities
Services and facilities
Laundry in building
Storage space
Locker/cage
Wellness and recreation
No info on wellness and recreation
Shared outdoor space
Roof deck
About the building
463 West 47th Street
463 West 47th Street, New York, NY 10036
4 units
3 stories
1910 built
For sale
1 available units for saleFor rent
0 available units for rentDocuments and permits
View documents and permitsProperty history
- Price Change: No changes
- Days on market: 23 daysThis is the number of days the listing has been on StreetEasy.
| Date | Price | Event |
|---|---|---|
12/19/2025 | $1,350,000 | In contract |
11/26/2025 | $1,350,000 | Listed by Keller Williams NYC |
8/3/2022 | $0 |
Sign in to take a closer look at how this home compares to similar homes.
Explore Hell's Kitchen
Transit
| Location | Distance |
|---|---|
CEat 50th St | 0.3 miles |
ACENQRWS1237at Times Square–42nd St | 0.33 miles |
1at 50th St | 0.43 miles |
NRWat 49th St | 0.45 miles |
BDEat 7th Av | 0.51 miles |




















































































































































































































































































