- ft²
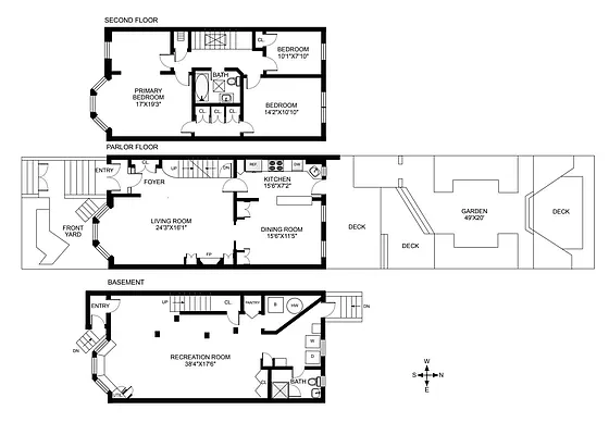
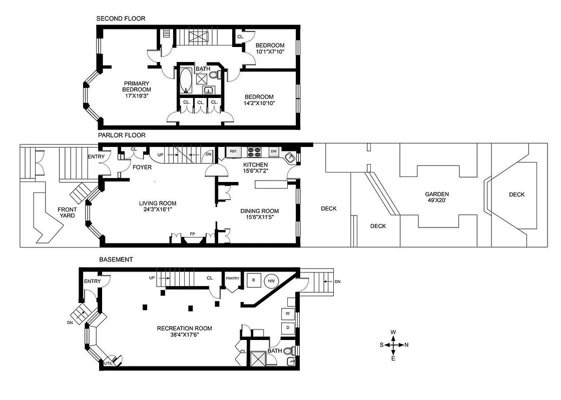
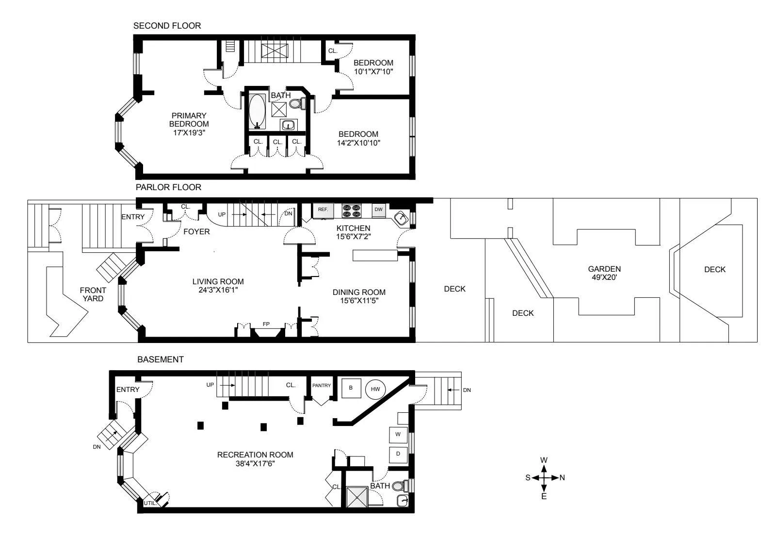
8 rooms
4 beds
2 baths
House
- Prospect Lefferts Gardens
Resale
recorded sale
Sold on 12/22/2025
Verified by closing records
Last listed for $2,350,000
Seller's agent
This home has been saved by 59 users.
Listing by Brown Harris Stevens, Real Estate Principal Office, 100 Seventh Avenue, Brooklyn, NY 11215 | Brokerage Listing ID: 23582003
Common charges
Not applicable
Estimated payment
$12,237/mo
Legal disclaimerAll calculations are estimates provided by StreetEasy for informational purposes only. Actual amounts or financing terms may vary. Please contact your mortgage provider for specifics.Taxes
$570/mo
Tax abatement
No info
About
Seller’s agent
Buyer’s agent
description
Gorgeous inside and out, this 1910 single-family townhouse is a winner! Lovingly cared for by the current owners over the last 20 years, it's small wonder that it has been included in the PLG House Tour. With its pretty limestone facade, the 1910 home is nestled on a leafy, tree-lined block. Beautifully maintained and preserved, the home retains its pre-war details: all wood moldings, doors, and window surrounds have been stripped and varnished.
Policies
Sorry, policy info isn’t available right now. Check back later.
Home features
No info on home features
Building amenities
No info on building amenities
About the building
47 Sterling Street
47 Sterling Street, Brooklyn, NY 11225
1 unit
2 stories
1910 built
For sale
0 available units for saleFor rent
0 available units for rentDocuments and permits
View documents and permitsProperty history
- Price Change: No changes
- Days on market: 35 daysThis is the number of days the listing has been on StreetEasy.
| Date | Price | Event |
|---|---|---|
12/22/2025 | $2,360,000 | Sold by Brown Harris Stevens |
10/14/2025 | $2,350,000 | In contract |
9/9/2025 | $2,350,000 | Listed by Brown Harris Stevens |
Past listing photos
Sign in to take a closer look at how this home compares to similar homes.
Explore Prospect Lefferts Gardens
Transit
| Location | Distance |
|---|---|
BQSat Prospect Park | 0.15 miles |
25at Sterling St | 0.44 miles |
S2345at Franklin Av | 0.52 miles |
S2345at Botanic Gardens | 0.54 miles |
BQat Parkside Av | 0.54 miles |






























































































































































































































