$30,000
For Rent
Base rent only. For total monthly price and additional fees, see .
Rented 12/10/2009
- ft²
9 rooms
4 beds
3.5 baths
Townhouse
- Lincoln Square
Under NYC law, you can't be charged a broker fee if you didn't hire a broker.
Listed By
Janet Chung
Brown Harris Stevens
Listing by Brown Harris Stevens, Real Estate Principal Office, 445 Park Avenue, New York, NY 10022 | MLS #: 168022
Unavailable
Rented on 12/10/2009
Days on market
82 days
Last price change
No changes
About
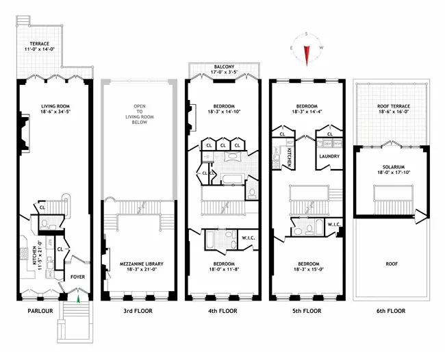
This 20-foot wide, five-story brownstone was built circa 1898. The principle purpose of the renovation was to completely restore the house to its original luster and to enable every room to have natural light throughout the day. This was achieved by placing the stairway in the middle of the house, parallel to the massive living room windows, so that the light from the fifth floor solarium radiates on every floor below.
Policies
Sorry, policy info isn’t available right now. Check back later.
Home features
Private outdoor space
Washer/dryer
Building amenities
Services and facilities
Laundry in building
Wellness and recreation
No info on wellness and recreation
Shared outdoor space
No info on shared outdoor space
About the building
48 West 69th Street
48 West 69th Street, New York, NY 10023
1 unit
4 stories
2024 built
Property history
Prices shown are base rent only. For total monthly price and additional fees, see .
| Date | Base rent | Event |
|---|---|---|
12/10/2009 | $30,000 | Rented by Brown Harris Stevens |
9/19/2009 | $30,000 | Listed by Brown Harris Stevens |
5/1/2009 | $30,000 | |
5/1/2009 | $30,000 | |
2/11/2009 | $30,000 | Price decreased by 14% |
Past listing photos
Sign in to take a closer look at how this home compares to similar homes.
Explore Lincoln Square
Transit
| Location | Distance |
|---|---|
BCat 72nd St | 0.12 miles |
1at 66th St–Lincoln Center | 0.16 miles |
123at 72nd St | 0.29 miles |
ABCD1at 59th St–Columbus Circle | 0.41 miles |
BCat 81st St–Museum of Natural History | 0.5 miles |
About Lincoln Square
Rental prices shown are base rent before any fees. Visit listings for cost and fees breakdown.
SalesMedian asking price
4 beds
$7.3M
RentalsMedian asking base rent
4 beds
$26,550
Named after and defined by the Lincoln Center for the Performing Arts, Lincoln Square is home to the New York Philharmonic, the New York City Ballet and the Metropolitan Opera, among many other cultural institutions. The neighborhood blends the prewar architecture and and style of the Upper West Side with modern, tall residential buildings. Great subway access at Columbus Circle and proximity to Midtown make this neighborhood popular with those looking to be in the center of it all.
Learn more about Lincoln SquareSimilar homes
Prices shown are base rent only and don't include any fees. Visit each listing to see a complete cost breakdown.
Similar Homes looks at ad spend and other factors like location, price, and number of beds and baths.




























































































































































































































