$4,995
For Rent
Base rent only. For total monthly price and additional fees, see .
Rented 11/16/2023
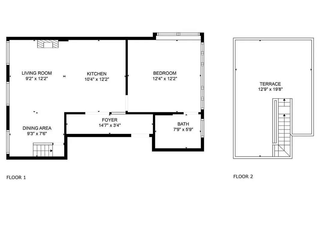
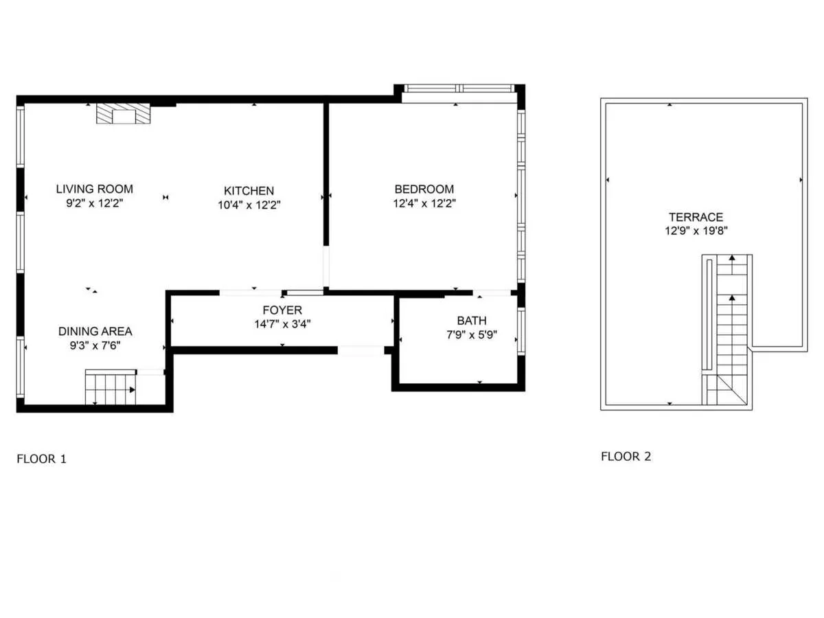
- ft²
3 rooms
1 bed
1 bath
Four-family home
- Williamsburg
Under NYC law, you can't be charged a broker fee if you didn't hire a broker.
Listed By
This home has been saved by 38 users.
Listing by StayBK LLC, Limited Liability Broker, 521 Dekalb Avenue, Brooklyn, NY 11205
Unavailable
Rented on 11/16/2023
Days on market
5 days
Last price change
No changes
About
*PRIME WILLIMSBURG*
1 BEDROOM WITH PRIVATE ROOF DECK
This pre-war gem offers so much character & amazing views of Manhattan and the Williamsburg bridge
* Burning fireplace
* Wide-plank wood floors
* Antique doors and hardware
* Custom cabinetry
* Washer/dryer in unit
Perfectly situated between the first subway stops into Brooklyn, at âBedford Aveâ on the L train or âMarcy Aveâ on the JMZ lines, itâs minutes to Union Square or SoHo.
Policies
Sorry, policy info isnât available right now. Check back later.
Home features
Hardwood floors
Private outdoor space
Balcony, Roof deck, Roof rights, Terrace
Washer/dryer
Building amenities
Services and facilities
No info on services and facilities
Wellness and recreation
No info on wellness and recreation
Shared outdoor space
Roof deck
About the building
49 South 1st Street
49 South 1st Street, Brooklyn, NY 11249
4 units
3 stories
1910 built
For rent
0 available units for rentProperty history
Prices shown are base rent only. For total monthly price and additional fees, see .
| Date | Base rent | Event |
|---|---|---|
11/16/2023 | $4,995 | Rented by StayBK LLC |
11/13/2023 | $4,995 | In contract |
11/8/2023 | $4,995 | Listed by StayBK LLC |
4/30/2021 | $4,500 | |
4/16/2021 | $4,500 |
Past listing photos
Sign in to take a closer look at how this home compares to similar homes.
Explore Williamsburg
Transit
| Location | Distance |
|---|---|
Ferryat North 5th Street Ferry landing | 0.34 miles |
Ferryat South 8th Street Ferry landing | 0.42 miles |
Lat Bedford Av | 0.43 miles |
JMZat Marcy Av | 0.57 miles |
GLat Metropolitan Av | 0.72 miles |
About Williamsburg
Rental prices shown are base rent before any fees. Visit listings for cost and fees breakdown.
SalesMedian asking price
1 bed
$999K
RentalsMedian asking base rent
1 bed
$4,600
Williamsburg is Brooklyn's booming epicenter with a well-deserved and worldwide reputation for being an influential hub thanks to a thriving cultural scene. Here you will find eye-catching new construction, brownstones, and prewars sitting next to historic buildings on streets dotted with restaurants, art spaces, boutiques, and more. With a Manhattan-facing waterfront (hello Domino Park!) and its large weekend markets (we're talking about you, Smorgasburg, and Artists & Fleas), the neighborhood is ideal for strolling and people watching. Another fringe benefit is Williamsburg's proximity to Manhattan via the G, L, M, and N subway lines.
Learn more about WilliamsburgSimilar homes
Prices shown are base rent only and don't include any fees. Visit each listing to see a complete cost breakdown.
Similar Homes looks at ad spend and other factors like location, price, and number of beds and baths.










































































































































































































































