$699,000
For Sale
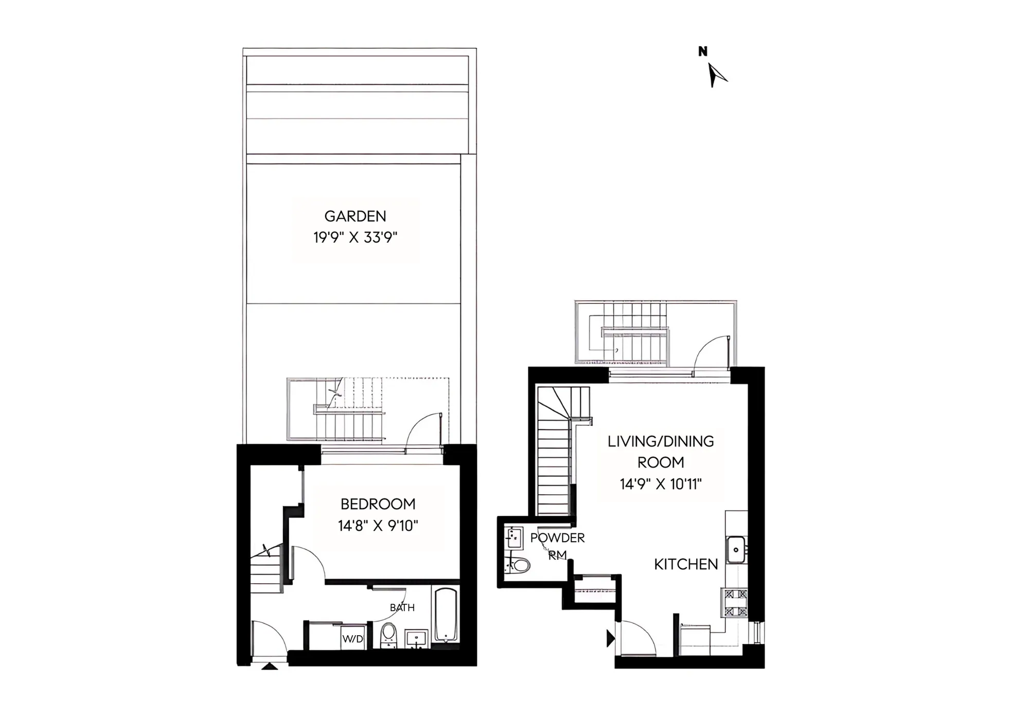
840 ft²
$832 per ft²
3 rooms
1 bed
1.5 baths
Condo
- Central Harlem
Resale
This home has been saved by 39 users.
Listing by Compass, Corporate Broker, 2143 Frederick Doulass Boulevard, New York, NY 10026-2314
Common charges
$783/mo
Estimated payment
$5,038/mo
Legal disclaimerAll calculations are estimates provided by StreetEasy for informational purposes only. Actual amounts or financing terms may vary. Please contact your mortgage provider for specifics.Taxes
$393/mo
Tax abatement
No info
About
Seller’s agent
description
Welcome to 5 W 127th St Unit 1B, where a very special private outdoor oasis awaits — a rare retreat in the heart of the city. Whether you’re hosting summer gatherings, creating a lush garden sanctuary, or simply enjoying a quiet morning coffee, this expansive outdoor space offers endless possibilities for relaxation and entertaining.
Inside, classic sophistication meets modern comfort in this meticulously maintained duplex condo.
Policies
Sorry, policy info isn’t available right now. Check back later.
Home features
Central air
Dishwasher
Hardwood floors
Private outdoor space
Garden
View
Garden
Washer/dryer
Building amenities
Services and facilities
Bike room
Doorman
Virtual
Elevator
Package room
Wellness and recreation
Gym
Shared outdoor space
Roof deck
About the building
5 West 127th Street
5 West 127th Street, New York, NY 10027
13 units
6 stories
2012 built
For sale
2 available units for saleFor rent
0 available units for rentDocuments and permits
View documents and permitsProperty history
- Price Change: No changes
- Days on market: 68 daysThis is the number of days the listing has been on StreetEasy.
| Date | Price | Event |
|---|---|---|
1/21/2026 | $699,000 | Listed by Compass |
3/8/2026 | $750,000 | |
12/7/2025 | $750,000 | |
10/6/2025 | $750,000 | Price decreased by 9% |
9/25/2025 | $825,000 |
Past listing photos
Sign in to take a closer look at how this home compares to similar homes.
Explore Central Harlem
Transit
| Location | Distance |
|---|---|
23at 125th St | 0.18 miles |
456at 125th St | 0.33 miles |
23at 135th St | 0.4 miles |
ABCDat 125th St | 0.57 miles |
23at 116th St | 0.58 miles |
About Central Harlem
Rental prices shown are base rent before any fees. Visit listings for cost and fees breakdown.
SalesMedian asking price
1 bed
$460K
RentalsMedian asking base rent
1 bed
$2,900
Harlem begins directly above Central Park, where you will find busy thoroughfares adjacent to quiet tree-lined blocks lined with brownstones and pre-war apartment buildings.
Learn more about Central Harlem




























































































































