View this home virtually
$4,400
For Rent
Base rent only. For total monthly price and additional fees, see .
Rented 12/12/2025
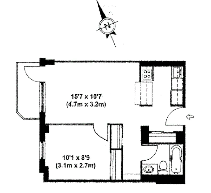
- ft²
3 rooms
1 bed
1 bath
Condop
- Flatiron
Under NYC law, you can't be charged a broker fee if you didn't hire a broker.
Listed By
This home has been saved by 69 users.
Listing by Compass, Corporate Broker, 2150 Broadway, New York, NY 10023
Unavailable
Rented on 12/12/2025
Days on market
10 days
Last price change
No changes
About
All open houses are strictly by appointment ONLY made via email. Please direct inquires to EMAIL.
Enjoy fantastic views of the Empire State Building from the private balcony of this sun-filled high floor one bedroom apartment. This wonderful home includes a fully equipped pass-through kitchen, a marble bath and generous closets.
Policies
Sorry, policy info isn’t available right now. Check back later.
Home features
Central air
Dishwasher
Hardwood floors
Private outdoor space
Balcony
View
City
Building amenities
Services and facilities
Doorman
Full-time
Elevator
Laundry in building
Live-in super
Wellness and recreation
Gym
Swimming pool
Shared outdoor space
No info on shared outdoor space
About the building
50 Lexington Avenue
50 Lexington Avenue, New York, NY 10010
185 units
26 stories
1987 built
Property history
Prices shown are base rent only. For total monthly price and additional fees, see .
| Date | Base rent | Event |
|---|---|---|
12/12/2025 | $4,400 | Rented by Compass |
11/2/2025 | $4,400 | In contract |
10/23/2025 | $4,400 | Listed by Compass |
11/27/2023 | $3,650 | |
10/24/2023 | $3,650 |
Past listing photos
Sign in to take a closer look at how this home compares to similar homes.
Explore Flatiron
Transit
| Location | Distance |
|---|---|
6at 23rd St | under 500 feet |
6at 28th St | 0.18 miles |
RWat 23rd St | 0.24 miles |
6at 33rd St | 0.37 miles |
RWat 28th St | 0.38 miles |
About Flatiron
Rental prices shown are base rent before any fees. Visit listings for cost and fees breakdown.
SalesMedian asking price
1 bed
$1.34M
RentalsMedian asking base rent
1 bed
$6,000
Flatiron is a historic New York City neighborhood that has seen its fair share of change over the years. In the early 1900s, it was a major commercial and residential center. By the middle of the century, things stagnated as businesses and residents left in search of more space and lower rents. In recent years, stores, upscale restaurants, and new developments moved back in, and the neighborhood is seeing a significant resurgence. Fifth Avenue now bustles with some of the best shopping in the city, and restaurants run the gamut from Michelin-rated to Yelp-reviewed food trucks.
Flatiron is busiest at midday and cocktail hour and tends to quiet down a bit at night, although the lights never truly turn off. Proximity to Union Square and multiple subway lines make it an equally easy trip to Midtown or Downtown.
Similar homes
Prices shown are base rent only and don't include any fees. Visit each listing to see a complete cost breakdown.
Similar Homes looks at ad spend and other factors like location, price, and number of beds and baths.





















































































































