3,200 ft²
$405 per ft²
8 rooms
5 beds
2 baths
House
- Bedford-Stuyvesant
reported sale
Sold on 2/14/2014
Not yet verified by closing records
Seller's agents
This home has been saved by 25 users.
Listing by Brown Harris Stevens, Real Estate Principal Office, 43 North Moore Street, New York, NY 10013 | MLS #: 9431693
Common charges
Not applicable
Estimated payment
$6,689/mo
Legal disclaimerAll calculations are estimates provided by StreetEasy for informational purposes only. Actual amounts or financing terms may vary. Please contact your mortgage provider for specifics.Taxes
No info
Tax abatement
No info
About
Seller’s agent
description
CONTRACT SIGNED
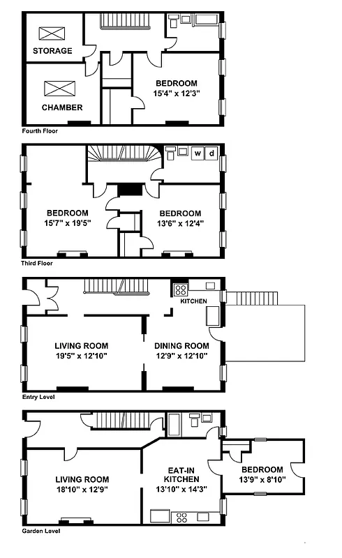
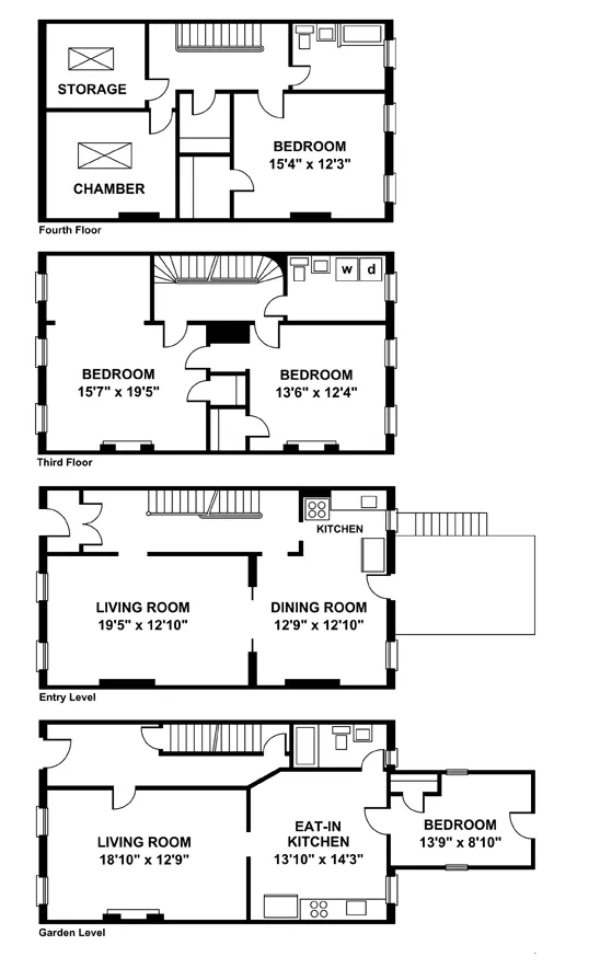
CLINTON HILL CHARMER
50 Madison is a quintessential Clinton Hill townhouse opportunity: 20-wide, four story, two-family brownstone with high ceilings and plenty of original details on a quiet Brooklyn block. Extra-wide plank wood floors, panel molding with rosettes, and a beautiful banister comprise the unique character of the owner's triplex.
Policies
Sorry, policy info isn’t available right now. Check back later.
Home features
Private outdoor space
Garden
Building amenities
No info on building amenities
About the building
50 Madison Street
50 Madison Street, Brooklyn, NY 11238
1 unit
3 stories
1901 built
For sale
0 available units for saleFor rent
0 available units for rentDocuments and permits
View documents and permitsProperty history
- Price Change: No changes
- Days on market: 24 daysThis is the number of days the listing has been on StreetEasy.
| Date | Price | Event |
|---|---|---|
2/13/2014 | $1,530,000 | |
2/14/2014 | $1,299,000 | Sold by Brown Harris Stevens |
1/31/2014 | $1,299,000 | In contract |
1/7/2014 | $1,299,000 | Listed by Brown Harris Stevens |
Past listing photos
Sign in to take a closer look at how this home compares to similar homes.
Explore Bedford-Stuyvesant
Transit
| Location | Distance |
|---|---|
ACSat Franklin Av | 0.19 miles |
ASat Franklin Av | 0.2 miles |
Gat Classon Av | 0.38 miles |
Cat Clinton & Washington Avs | 0.4 miles |
Gat Bedford–Nostrand Avs | 0.4 miles |
About Bedford-Stuyvesant
Rental prices shown are base rent before any fees. Visit listings for cost and fees breakdown.
SalesMedian asking price
5 beds
$2.75M
RentalsMedian asking base rent
5 beds
$5,500
Bedford-Stuyvesant is a vast Brooklyn neighborhood filled with historic brownstones. Fans of Victorian architecture will appreciate the striking abodes in the leafy historic district.
Learn more about Bedford-Stuyvesant


































































































































