- ft²
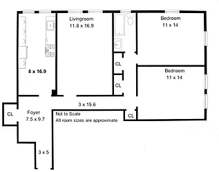
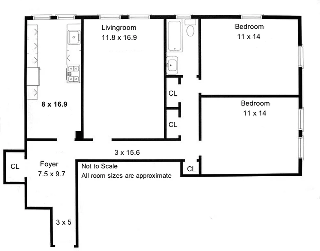
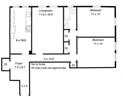
4 rooms
2 beds
1 bath
Co-op
- Lower East Side
Resale
Reported sale
Sold on 2/16/2014
Not yet verified by closing records
Seller's agent
This home has been saved by 17 users.
Listing by Anthony C Bellino, Individual Broker, 172 East 4th Street Suite, New York, NY 10009
Maintenance fees
$720/mo
Estimated payment
$3,887/mo
Taxes
Included in maintenance fees
Tax abatement
No info
About
Seller’s agent
Description
Sorry, No Brokers.
Here's your chance to create your dream home. This large prewar two bedroom apartment is in Estate Condition and needs renovation. It features 9ft. ceilings, hardwood floors throughout, original eat-in-kitchen with double windows, a large entry hallway, a windowed bathroom, two generously proportioned bedrooms and four good sized closets.
Policies
Co-purchase allowed
Gifts allowed
Guarantors accepted
Parents buying allowed
Pets allowed
Cats and dogs allowed
Home features
Private outdoor space
Garden
Building amenities
Services and facilities
Bike room
Elevator
Laundry in building
Live-in super
Package room
Wellness and recreation
Gym
Shared outdoor space
Courtyard
About the building
504 Grand Street
504 Grand Street, New York, NY 10002
237 units
6 stories
1929 built
For sale
3 available units for saleFor rent
0 available units for rentDocuments and permits
View documents and permitsProperty history
- Price Change: No changes
- Days on market: 32 days
| Date | Price | Event |
|---|---|---|
5/21/2014 | $625,000 | Sold by Anthony C Bellino |
5/20/2014 | $625,000 | No longer available |
5/19/2014 | $625,000 | Sold by Anthony C Bellino |
2/16/2014 | $625,000 | No longer available |
2/16/2014 | $625,000 | In contract |
Past listing photos
Sign in to take a closer look at how this home compares to similar homes.
Explore Lower East Side
Transit
| Location | Distance |
|---|---|
FJMZat Essex St | 0.36 miles |
FJMZat Delancey St | 0.4 miles |
Fat East Broadway | 0.43 miles |
BDat Grand St | 0.65 miles |
Fat 2nd Av | 0.65 miles |
About Lower East Side
Rental prices shown are base rent before any fees. Visit listings for cost and fees breakdown.
SalesMedian asking price
2 beds
$1.5M
RentalsMedian asking base rent
2 beds
$5,195
The narrow streets of the Lower East Side were once lined with tenement buildings, shirt factories and bialy shops. Although a few vestiges of the neighborhood's immigrant heritage remain, many of the tenement buildings have been updated and now offer relatively affordable rental options to young New Yorkers looking to live right in the thick of Downtown Manhattan.
There's no getting around it - the LES is a major nightlife destination. In this part of the city, last call is late and often negotiable -- especially if you're a regular. On weekend nights, the neighborhood is packed as crowds overflow from the local bars and take to the streets in search of a late-night falafel fix before heading onto the next party. During the day, the neighborhood chills out as residents nurse their hangovers or head to work slowly after stopping at one of the area's many trendy juice bars or coffee shops.
























































































































