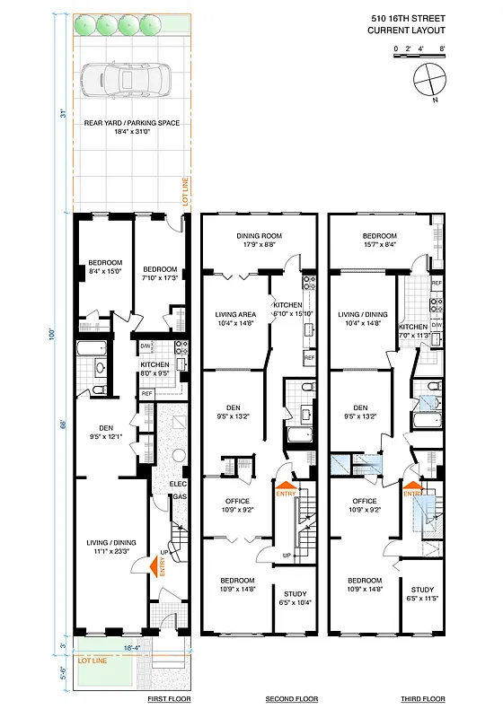
3,630 ft²
$566 per ft²
19 rooms
7 beds
3 baths
Two-family home
- Windsor Terrace
recorded sale
Sold on 8/31/2018
Verified by closing records
Last listed for $2,055,000
Seller's agent
This home has been saved by 41 users.
Listing by Corcoran, Limited Liability Broker, 125 Seventh Avenue, Brooklyn, NY 11215 | Brokerage Listing ID: 5435887
Common charges
Not applicable
Estimated payment
$10,869/mo
Legal disclaimerAll calculations are estimates provided by StreetEasy for informational purposes only. Actual amounts or financing terms may vary. Please contact your mortgage provider for specifics.Taxes
$747/mo
Tax abatement
No info
About
Seller’s agent
Buyer’s agent
description
Your vision awaits this primely located three-family townhouse. The home, which boasts 3600+ sq feet is currently configured as three income-producing rentals. With a CAP rate of roughly 4.5% you can get your hands on a reliable and well valued investment property, or take over the building and create your own masterpiece. Whether creating a phenomenal single-family home with its own garage, or an upper duplex with rental income, the options are boundless.
Policies
Sorry, policy info isn’t available right now. Check back later.
Home features
No info on home features
Building amenities
Services and facilities
Parking
Wellness and recreation
No info on wellness and recreation
Shared outdoor space
No info on shared outdoor space
About the building
510 16th Street
510 16th Street, Brooklyn, NY 11215
2 units
3 stories
1920 built
For sale
0 available units for saleFor rent
0 available units for rentDocuments and permits
View documents and permitsProperty history
- Price Change: ↑ $80,000 (+3.7%) on 9/13/18
- Days on market: 29 daysThis is the number of days the listing has been on StreetEasy.
| Date | Price | Event |
|---|---|---|
8/31/2018 | $2,055,000 | Sold by Corcoran |
9/19/2018 | $2,055,000 | No longer available |
9/13/2018 | $2,055,000 | Price increased by 4% |
9/13/2018 | $2,055,000 | In contract |
9/4/2018 | $1,975,000 | No longer available |
Past listing photos
Sign in to take a closer look at how this home compares to similar homes.
Explore Windsor Terrace
Transit
| Location | Distance |
|---|---|
Fat Prospect Park–15 St | 0.13 miles |
Fat Fort Hamilton Parkway | 0.43 miles |
Fat 7th Av | 0.47 miles |
BQSat Prospect Park | 0.82 miles |
BQat Parkside Av | 0.88 miles |









































































































