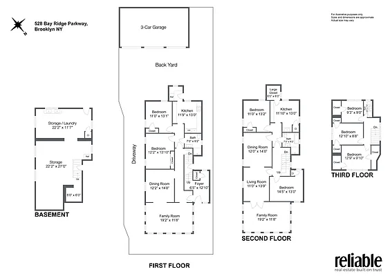
3,491 ft²
$569 per ft²
12 rooms
6 beds
3 baths
Three-family home
- Bay Ridge
Resale
reported sale
Sold on 10/15/2025
Not yet verified by closing records
Seller's agents
This home has been saved by 2 users.
Listing by Coldwell Banker Reliable Real Estate, Real Estate Principal Office, 7428 5th Avenue, Brooklyn, NY 11209
Common charges
Not applicable
Estimated payment
$10,753/mo
Legal disclaimerAll calculations are estimates provided by StreetEasy for informational purposes only. Actual amounts or financing terms may vary. Please contact your mortgage provider for specifics.Taxes
$1,074/mo
Tax abatement
No info
About
Seller’s agent
description
Welcome to 528 Bay Ridge Parkway – the only fully detached home on the block, offering exceptional privacy, space, and potential. This legal 3-family home includes a private driveway and a detached 3-car garage — a true luxury in Bay Ridge.
Perfectly situated on a classic tree-lined street, this property is close to all the neighborhood essentials — parks, shopping, and dining — while also offering...
Policies
Sorry, policy info isn’t available right now. Check back later.
Home features
No info on home features
Building amenities
Services and facilities
Parking
Garage
Wellness and recreation
No info on wellness and recreation
Shared outdoor space
No info on shared outdoor space
About the building
528 Bay Ridge Parkway
528 Bay Ridge Parkway, Brooklyn, NY 11209
3 units
3 stories
1899 built
For sale
0 available units for saleFor rent
0 available units for rentDocuments and permits
View documents and permitsProperty history
- Price Change: No changes
- Days on market: 27 daysThis is the number of days the listing has been on StreetEasy.
| Date | Price | Event |
|---|---|---|
10/15/2025 | $1,988,888 | Sold by Coldwell Banker Reliable Real Estate |
8/6/2025 | $1,988,888 | In contract |
7/10/2025 | $1,988,888 | Listed by Coldwell Banker Reliable Real Estate |
Past listing photos
Sign in to take a closer look at how this home compares to similar homes.
Explore Bay Ridge
Transit
| Location | Distance |
|---|---|
Rat 77th St | 0.19 miles |
Rat Bay Ridge Av | 0.42 miles |
Rat 86th St | 0.49 miles |
Nat 8th Av | 0.71 miles |
NRWat 5th Av/59th St | 0.83 miles |
About Bay Ridge
Rental prices shown are base rent before any fees. Visit listings for cost and fees breakdown.
SalesMedian asking price
6 beds
$1.99M
The neighborhood where "Saturday Night Fever" was set has resisted the waves of change sweeping through other parts of Brooklyn. Bay Ridge remains a haven for long-term residents and local businesses. The Verrazano-Narrows Bridge dominates the skyline, and single-family row houses make up the majority of the housing stock. Renters priced out of Park Slope may find a similar community vibe here, at a decidedly lower price.
Learn more about Bay Ridge


































































































































