- ft²
2 rooms
Studio
0 baths
House
- Upper West Side
reported sale
Sold on 11/3/2009
Not yet verified by closing records
Seller's agents
Halstead Real Estate
Halstead Real Estate
This home has been saved by 9 users.
Listing by Halstead Real Estate | MLS #: 172746
Common charges
Not applicable
Estimated payment
$29,764/mo
Legal disclaimerAll calculations are estimates provided by StreetEasy for informational purposes only. Actual amounts or financing terms may vary. Please contact your mortgage provider for specifics.Taxes
No info
Tax abatement
No info
About
Seller’s agent
description
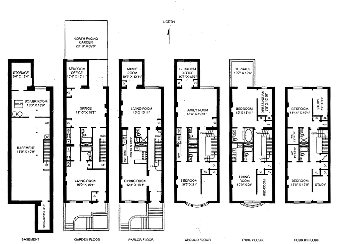
Beautiful 21 foot brownstone just steps from Central Park. Now configured as a lovely single family home with a Studio apartment and an office space in the Garden floor level. This townhouse has many possibilities, due to its 3 unit cooperative status. It will be sold as a legal cooperative and delivered completely vacant. Present owners have restored all of the beautiful details of the home in a tasteful, elegant manner.
Policies
Sorry, policy info isn’t available right now. Check back later.
Home features
No info on home features
Building amenities
Sorry, building amenities aren't available right now. Check back later.
About the building
53 West 87th Street
53 West 87th Street, New York, NY 10024
1 unit
4 stories
1891 built
For sale
0 available units for saleFor rent
0 available units for rentDocuments and permits
View documents and permitsProperty history
- Price Change: ↓ $500,000 (-7.7%) on 5/15/09
- Days on market: 276 daysThis is the number of days the listing has been on StreetEasy.
| Date | Price | Event |
|---|---|---|
9/15/2011 | $6,350,000 | |
5/19/2011 | $6,950,000 | |
5/5/2015 | $5,995,000 | Sold by Halstead Real Estate |
3/16/2010 | $5,995,000 | No longer available |
12/13/2009 | $5,995,000 | Temporarily off market |
Past listing photos
Sign in to take a closer look at how this home compares to similar homes.
Explore Upper West Side
Transit
| Location | Distance |
|---|---|
BCat 86th St | 0.13 miles |
1at 86th St | 0.29 miles |
BCat 81st St–Museum of Natural History | 0.33 miles |
123at 96th St | 0.42 miles |
BCat 96th St | 0.44 miles |
About Upper West Side
Rental prices shown are base rent before any fees. Visit listings for cost and fees breakdown.
SalesMedian asking price
Studio
$499K
RentalsMedian asking base rent
Studio
$3,250
Sandwiched between two beautiful parks, the Upper West Side is one of the greenest spots in Manhattan. For that reason, it is a perennial favorite. The Upper West Side is relaxed, but never dull. There are plenty of low-key bars and restaurants to frequent along Amsterdam Avenue, and Broadway is an always-bustling commercial center. The wide, tree-lined streets still boast many mom-and-pop stores. Less posh than the Upper East Side, it is more easily accessible by public transportation, and real estate prices are just as, if not more, expensive.
Learn more about Upper West Side







































































































