$1,350,000
For Sale
- ft²
3 rooms
2 beds
2 baths
Co-op
- East Village
Resale
This home has been saved by 244 users.
Open House
Sun, Apr 12 (12â1:30 PM ET), by appt only
Listing by Douglas Elliman, Limited Liability Broker, 575 Madison Avenue, New York, NY 10022 | Brokerage Listing ID: 23563016
Listing updated in the last 2 days
Maintenance fees
$1,559/mo
Estimated payment
$8,718/mo
Taxes
Included in maintenance fees
Tax abatement
No info
About
Sellerâs agent
description
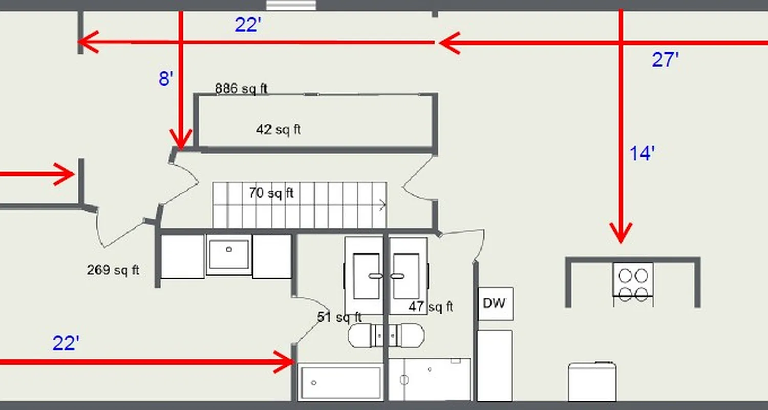
Presenting the perfectly located full floor residence on the second floor at 533 East 13th Street, in the beautiful, vibrant, East Village. This stunning, spacious prewar 2-bedroom 2 bathroom co-op features high ceilings, oversized windows, and new hard-wood flooring, just one flight above a gorgeous tree-lined, serene streetscape.
Policies
Pets allowed
Cats and dogs allowed
Home features
Central air
Dishwasher
Hardwood floors
View
City
Washer/dryer
Building amenities
No info on building amenities
About the building
533 East 13th Street
533 East 13th Street, New York, NY 10009
10 units
5 stories
1900 built
For sale
1 available units for saleFor rent
0 available units for rentDocuments and permits
View documents and permitsProperty history
- Price Change: â $150,000 (-10.0%) on 3/6/26
- Days on market: 245 days
| Date | Price | Event |
|---|---|---|
3/6/2026 | $1,350,000 | Price decreased by 10% |
8/6/2025 | $1,500,000 | Listed by Douglas Elliman |
Sign in to take a closer look at how this home compares to similar homes.
Explore East Village
Transit
| Location | Distance |
|---|---|
Lat 1st Av | 0.21 miles |
Lat 3rd Av | 0.46 miles |
6at Astor Place | 0.61 miles |
LNQRW456at 14th StâUnion Square | 0.64 miles |
Fat 2nd Av | 0.66 miles |
About East Village
Rental prices shown are base rent before any fees. Visit listings for cost and fees breakdown.
SalesMedian asking price
2 beds
$1.69M
RentalsMedian asking base rent
2 beds
$5,495
Known and loved for being the birthplace of punk rock, the East Village is known for its vibrant restaurants and cocktail dens. During the day, however, the neighborhood slows down and has a tranquil feel. Meander down a leafy side street, and you'll happen upon plenty of prewar buildings and rusting fire escapes, which lend the East Village its old-fashioned charm.
Learn more about East Village


























































































































