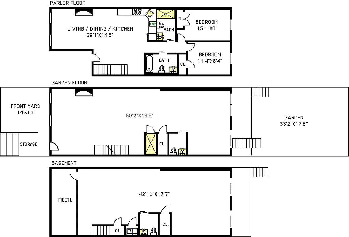
6,000 ft²
$781 per ft²
1 room
6 beds
8 baths
Condo
- Carroll Gardens
reported sale
Sold on 1/9/2018
Not yet verified by closing records
Seller's agents
This home has been saved by 40 users.
Listing by Corcoran, Limited Liability Broker, 514 2nd Street, Brooklyn, NY 11215 | Brokerage Listing ID: 5230003
Common charges
No info
Estimated payment
$26,512/mo
Taxes
$598/mo
Tax abatement
No info
About
Seller’s agent
description
Have you been searching for the quintessential Brooklyn Brownstone? Welcome home! This custom designed two family home has everything your heart desires. Live in over 2,700 sq ft spread out on three floors with a private back yard and collect rent from a 2,500 sq ft triplex with two large terraces and private roof deck. Each apartment with their very own private entrance.
Policies
Sorry, policy info isn’t available right now. Check back later.
Home features
Central air
Private outdoor space
Garden
Building amenities
Services and facilities
Laundry in building
Wellness and recreation
No info on wellness and recreation
Shared outdoor space
Roof deck
About the building
546 Clinton Street
546 Clinton Street, Brooklyn, NY 11231
2 units
4 stories
1899 built
For sale
0 available units for saleFor rent
0 available units for rentDocuments and permits
View documents and permitsProperty history
- Price Change: ↓ $304,999 (-6.1%) on 10/11/17
- Days on market: 125 days
| Date | Price | Event |
|---|---|---|
9/1/2018 | $4,690,000 | Sold by Corcoran |
1/9/2018 | $4,690,000 | No longer available |
10/11/2017 | $4,690,000 | Price decreased by 6% |
9/24/2017 | $4,994,999 | Price decreased by 4% |
9/6/2017 | $5,200,000 | Listed by Corcoran |
Past listing photos
Sign in to take a closer look at how this home compares to similar homes.
Explore Carroll Gardens
Transit
| Location | Distance |
|---|---|
FGRat Smith–9th St | 0.26 miles |
FGat Carroll St | 0.3 miles |
FGat Bergen St | 0.74 miles |
Fat 4th Av | 0.79 miles |
FGRat 9th St | 0.79 miles |
About Carroll Gardens
Rental prices shown are base rent before any fees. Visit listings for cost and fees breakdown.
SalesMedian asking price
6 beds
$4.01M
Carroll Gardens is at once the heart of old-school Brooklyn and a showcase for the borough's brownstone boom. The neighborhood has long been known for its red-sauce Italian joints and lively street life. But now, staples like Caputo's Bake Shop and Monteleone's Bakery and Café abut upscale stroller shops, yoga studios and fro-yo joints. Despite the newcomers, the neighborhood still feels like a small town, one of the few places where you might know your neighbors, your postman and your butcher by name.
Learn more about Carroll Gardens















































































































