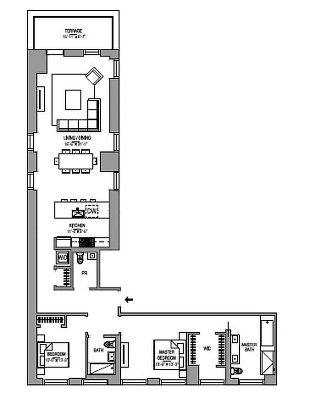
1,755 ft²
$2,514 per ft²
4 rooms
2 beds
2.5 baths
Condo
- Flatiron
reported sale
Sold on 8/1/2019
Not yet verified by closing records
Seller's agent
Toll Brothers
This home has been saved by 1 user.
Listing by Toll Brothers, Corporate Broker | Brokerage Listing ID: 20437
Common charges
$2,269/mo
Estimated payment
$32,840/mo
Legal disclaimerAll calculations are estimates provided by StreetEasy for informational purposes only. Actual amounts or financing terms may vary. Please contact your mortgage provider for specifics.Taxes
$2,673/mo
Tax abatement
No info
About
Seller’s agent
description
Inspired by the architecture of the Ladies Mile Historic District, 55 West 17th fuses classic details with modern functionality. Celebrated firm Morris Adjmi Architects has designed a building rich with contrast and texture that fits within the historic context of the neighborhood. The elegant facade is crafted of handmade Danish white brick; the entrance detailing, window frames and cornice are fashioned of bronze architectural metal.
Policies
Sorry, policy info isn’t available right now. Check back later.
Home features
Private outdoor space
Terrace
Washer/dryer
Building amenities
Services and facilities
Doorman
Elevator
Parking
Assigned, Garage
Wellness and recreation
Gym
Shared outdoor space
No info on shared outdoor space
About the building
55 West 17th Street
55 West 17th Street, New York, NY 10011
52 units
19 stories
- built
For sale
2 available units for saleFor rent
1 available units for rentDocuments and permits
View documents and permitsProperty history
- Price Change: No changes
- Days on market: 0 daysThis is the number of days the listing has been on StreetEasy.
| Date | Price | Event |
|---|---|---|
8/2/2019 | $4,413,750 | Sold by Toll Brothers |
8/1/2019 | $4,413,750 | No longer available |
5/22/2018 | $4,400,000 | |
5/21/2018 | $4,400,000 | Price decreased by 3% |
5/21/2018 | $4,549,990 |
Past listing photos
Sign in to take a closer look at how this home compares to similar homes.
Explore Flatiron
Transit
| Location | Distance |
|---|---|
FLM123at 14th St | under 500 feet |
PATHat 14th Street Station | 0.16 miles |
FLM123at 6th Av | 0.17 miles |
1at 18th St | 0.19 miles |
FMat 23rd St | 0.27 miles |
About Flatiron
Rental prices shown are base rent before any fees. Visit listings for cost and fees breakdown.
SalesMedian asking price
2 beds
$2.5M
RentalsMedian asking base rent
2 beds
$9,293
Flatiron is a historic New York City neighborhood that has seen its fair share of change over the years. In the early 1900s, it was a major commercial and residential center. By the middle of the century, things stagnated as businesses and residents left in search of more space and lower rents. In recent years, stores, upscale restaurants, and new developments moved back in, and the neighborhood is seeing a significant resurgence. Fifth Avenue now bustles with some of the best shopping in the city, and restaurants run the gamut from Michelin-rated to Yelp-reviewed food trucks.
Flatiron is busiest at midday and cocktail hour and tends to quiet down a bit at night, although the lights never truly turn off. Proximity to Union Square and multiple subway lines make it an equally easy trip to Midtown or Downtown.



















































































































































