$10,000
For Rent
Base rent only. For total monthly price and additional fees, see .
Rented 7/28/2023
- ft²
6 rooms
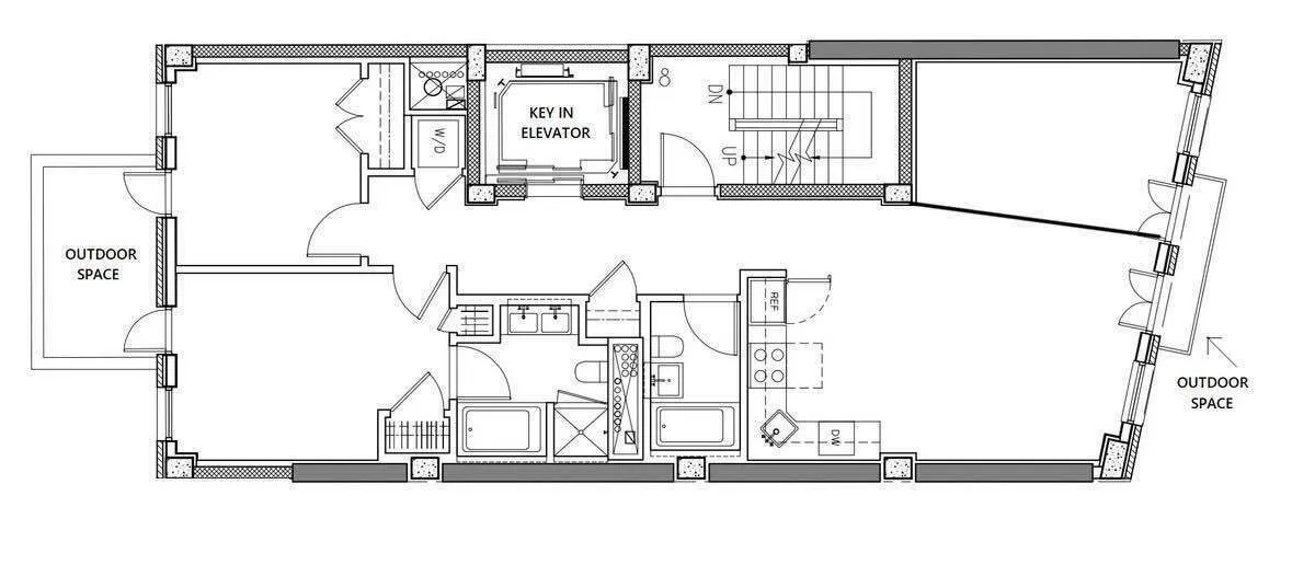
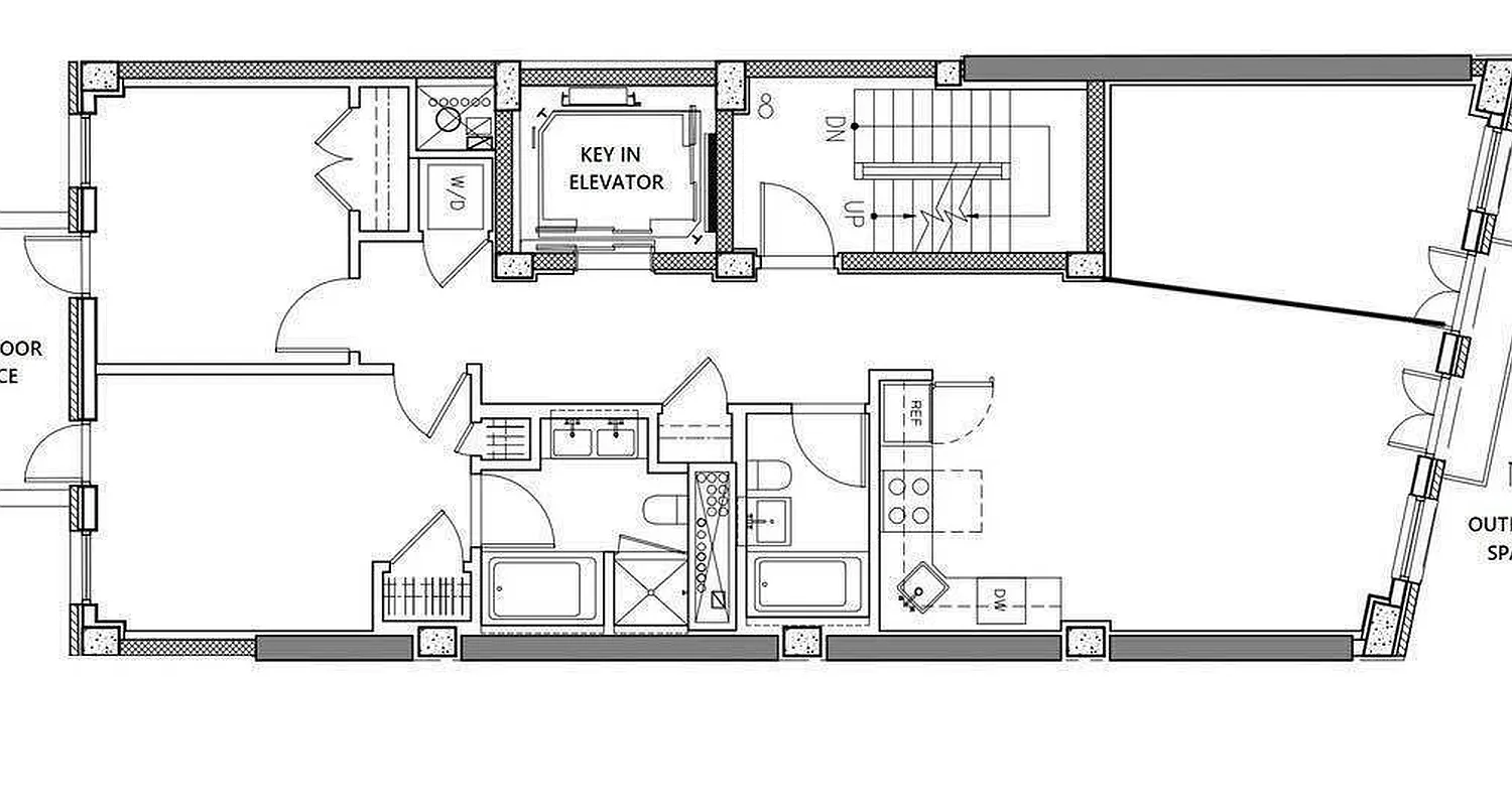
3 beds
2 baths
Rental unit
- Nolita
Under NYC law, you can't be charged a broker fee if you didn't hire a broker.
Listed By
This home has been saved by 25 users.
Listing by CPG Residential LLC, Limited Liability Broker, 401 New Karner Road, Albany, NY 12205
Unavailable
Rented on 7/28/2023
Days on market
6 days
Last price change
No changes
About
This stunning 3-bedroom, 2 full bathroom residence at 56 spring street occupies the entire 6th floor of this boutique six-unit loft building. The ground-up development features the character and layout of an 1800’s style loft building with the modern amenities of new construction condo.
56 spring street features include A virtual doorman intercom, keyed elevator access directly into your private apartment, a spacious roof deck with North, East and Southern exposures as well as ensuite laundry.
Policies
Sorry, policy info isn’t available right now. Check back later.
Home features
No info on home features
Building amenities
Services and facilities
Doorman
Virtual
Laundry in building
Wellness and recreation
No info on wellness and recreation
Shared outdoor space
Roof deck
About the building
56 Spring Street
56 Spring Street, New York, NY 10012
6 units
7 stories
2009 built
Property history
Prices shown are base rent only. For total monthly price and additional fees, see .
| Date | Base rent | Event |
|---|---|---|
7/28/2023 | $10,000 | Rented by CPG Residential LLC |
7/28/2023 | $10,000 | In contract |
7/22/2023 | $10,000 | Listed by CPG Residential LLC |
7/19/2021 | $8,995 | |
7/15/2021 | $8,995 |
Past listing photos
Sign in to take a closer look at how this home compares to similar homes.
Explore Nolita
Transit
| Location | Distance |
|---|---|
6at Spring St | under 500 feet |
RWat Prince St | 0.16 miles |
JZat Bowery | 0.21 miles |
BDFM6at Bleecker St | 0.22 miles |
BDFM6at Broadway–Lafayette St | 0.22 miles |
Similar homes
Prices shown are base rent only and don't include any fees. Visit each listing to see a complete cost breakdown.
Similar Homes looks at ad spend and other factors like location, price, and number of beds and baths.








































































































