1,010 ft²
$985 per ft²
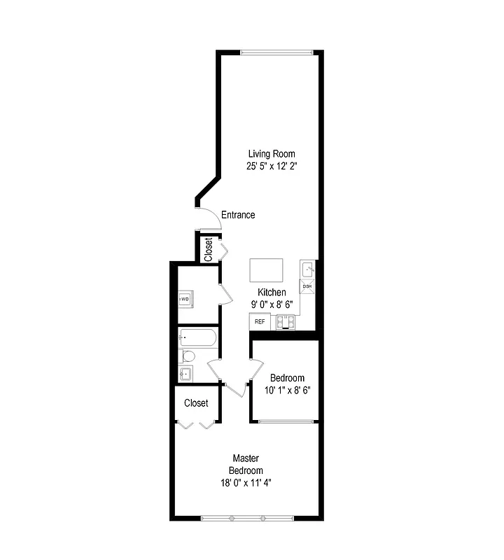
4 rooms
2 beds
1 bath
Condo
- Boerum Hill
reported sale
Sold on 4/26/2018
Not yet verified by closing records
Seller's agents
Brian Giambalvo
Licensed Real Estate Salesperson
Corcoran
This home has been saved by 169 users.
Listing by Corcoran, Limited Liability Broker, 794 Union Street, Brooklyn, NY 11215 | Brokerage Listing ID: 5290122
Common charges
$468/mo
Estimated payment
$6,015/mo
Legal disclaimerAll calculations are estimates provided by StreetEasy for informational purposes only. Actual amounts or financing terms may vary. Please contact your mortgage provider for specifics.Taxes
$516/mo
Tax abatement
No info
About
Seller’s agent
description
Location, location, location!!!
Gorgeous two bedroom one bathroom Condo in Boerum Hill, Brooklyn. High ceilings create a beautiful loft style apartment. Large living room and dining room with hardwood floors. Retire in your massive master bedroom with walk in closet. Kitchen has been updated with stainless steel appliances, dishwasher and plenty of cabinet space. In addition this home has central air and an in unit washer/dryer.
Policies
Pets allowed
Cats and dogs allowed
Home features
Central air
Dishwasher
Washer/dryer
Building amenities
Services and facilities
Laundry in building
Storage space
Wellness and recreation
No info on wellness and recreation
Shared outdoor space
Courtyard
Garden
About the building
560 State Street
560 State Street, Brooklyn, NY 11217
39 units
4 stories
1990 built
For sale
0 available units for saleFor rent
1 available units for rentDocuments and permits
View documents and permitsProperty history
- Price Change: No changes
- Days on market: 69 daysThis is the number of days the listing has been on StreetEasy.
| Date | Price | Event |
|---|---|---|
8/2/2018 | $995,000 | Sold by Corcoran |
4/26/2018 | $995,000 | No longer available |
2/15/2018 | $995,000 | In contract |
12/8/2017 | $995,000 | Listed by Corcoran |
Past listing photos
Sign in to take a closer look at how this home compares to similar homes.
Explore Boerum Hill
Transit
| Location | Distance |
|---|---|
BDNQR2345at Atlantic Av–Barclays Ctr | under 500 feet |
LIRRat Atlantic Terminal | 0.17 miles |
Gat Fulton St | 0.18 miles |
Cat Lafayette Av | 0.23 miles |
2345at Nevins St | 0.24 miles |
About Boerum Hill
Rental prices shown are base rent before any fees. Visit listings for cost and fees breakdown.
SalesMedian asking price
2 beds
$1.55M
RentalsMedian asking base rent
2 beds
$5,325
Energetic and inviting, Boerum Hill continues its run as one of New York City's most desirable neighborhoods, all while remaining a secret quietly shared amongst its happy residents. Its appeal and vibrancy stem from its housing stock. Handsome Greek revival and Italianate townhouses line the wide, tree-lined streets. These beautiful brick and limestone buildings have long been a mecca for Brooklynites seeking an enclave close to Downtown Brooklyn and lower Manhattan — but far from crowds and highrises.
Main drags like Bergen Street, Atlantic Avenue, and Smith Street are peppered with charming boutiques like Collier West in addition to welcoming cafes, bars, and restaurants, including Rucola, French Louie, and Bacchus, to name a few. Fans of new construction will find new condo developments too. Saint Marks Place, The Hendrick, The Boerum, and The Bergen have expanded buyers' opportunities. Renters will also find plenty of options here in a broad range of prices, from the genuinely affordable to the luxurious.




















































































































