$1,895,000
For Sale
Delisted 4/11/2025
- ft²
8 rooms
5 beds
2 baths
Two-family home
- Prospect Park South
Resale
Seller's agents
This home has been saved by 31 users.
Listing by StayBK LLC, Limited Liability Broker, 521 Dekalb Avenue, Brooklyn, NY 11205
Common charges
Not applicable
Estimated payment
$9,582/mo
Legal disclaimerAll calculations are estimates provided by StreetEasy for informational purposes only. Actual amounts or financing terms may vary. Please contact your mortgage provider for specifics.Taxes
No info
Tax abatement
No info
About
Sellerâs agent
description
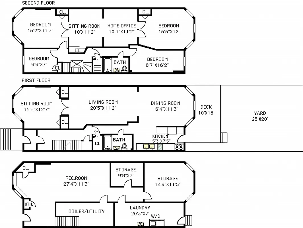
Stunning Limestone Townhouse in Prospect Park South
This magnificent limestone townhouse, currently configured as a single-family home, is just one block from Prospect Park in the desirable Prospect Park South neighborhood.
Key Features:
Original Details: The home boasts original plaster moldings, fretwork, high coffered ceilings, and stunning oak parquet flooring.
Policies
Sorry, policy info isnât available right now. Check back later.
Home features
Dishwasher
Hardwood floors
Private outdoor space
Balcony, Garden, Terrace
View
Garden, Skyline
Washer/dryer
Building amenities
Services and facilities
Laundry in building
Wellness and recreation
No info on wellness and recreation
Shared outdoor space
Courtyard
About the building
57 East 10th Street
57 East 10th Street, Brooklyn, NY 11218
2 units
2 stories
1925 built
For sale
0 available units for saleFor rent
0 available units for rentDocuments and permits
View documents and permitsProperty history
- Price Change: No changes
- Days on market: 30 daysThis is the number of days the listing has been on StreetEasy.
| Date | Price | Event |
|---|---|---|
4/11/2025 | $1,895,000 | Delisted by StayBK LLC |
4/9/2025 | $1,895,000 | In contract |
3/10/2025 | $1,895,000 | Listed by StayBK LLC |
Sign in to take a closer look at how this home compares to similar homes.
Explore Prospect Park South
Transit
| Location | Distance |
|---|---|
Fat Fort Hamilton Parkway | 0.35 miles |
BQat Beverly Rd | 0.36 miles |
BQat Church Av | 0.39 miles |
Fat Church Av | 0.52 miles |
BQat Cortelyou Rd | 0.52 miles |












































































































