1,925 ft²
$455 per ft²
9 rooms
5 beds
2 baths
House
- Riverdale
recorded sale
Sold on 9/1/2016
Verified by closing records
Last listed for $885,000
Seller's agent
This home has been saved by 22 users.
Listing by Halstead Real Estate, 3531 Johnson Avenue, Riverdale, NY 10463 | MLS #: 14505459
Common charges
Not applicable
Estimated payment
$4,890/mo
Taxes
No info
Tax abatement
No info
About
Seller’s agent
description
Contract Signed.
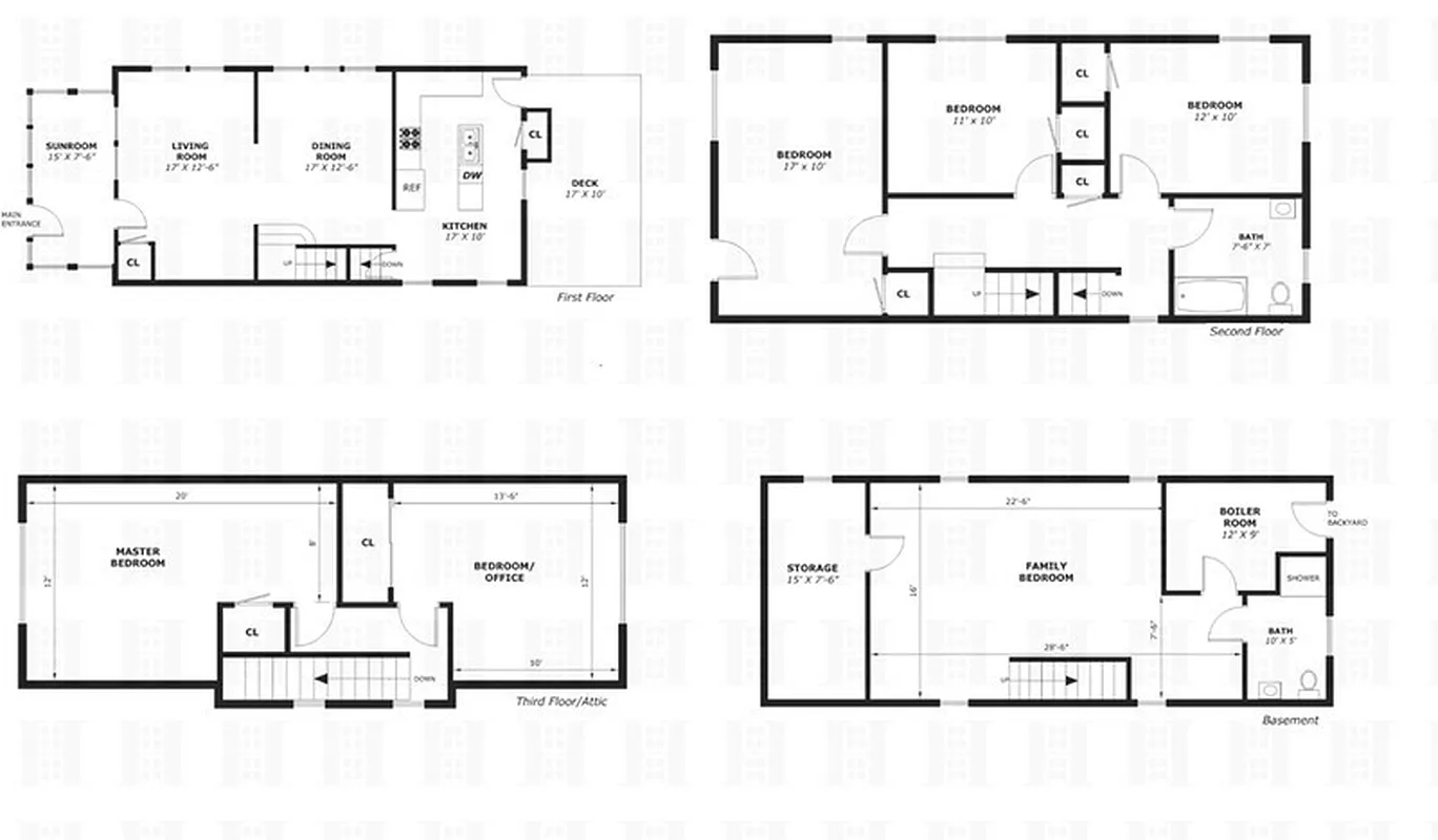
Let the Sunshine in!
Move right into this lovingly cared for home on a wonderful street in N. Riverdale. Every room has been renovated, every system in perfect condition. First floor has a sun-filled sunroom, eat-in kitchen, living and dining rooms, plus a deck off the kitchen. The second floor boasts 3 bedrooms and full bath
Policies
Sorry, policy info isn’t available right now. Check back later.
Home features
Private outdoor space
Garden
Building amenities
Services and facilities
Parking
Wellness and recreation
No info on wellness and recreation
Shared outdoor space
Deck
About the building
5749 Faraday Avenue
5749 Faraday Avenue, Bronx, NY 10471
1 unit
2 stories
1930 built
For sale
0 available units for saleFor rent
0 available units for rentDocuments and permits
View documents and permitsProperty history
- Price Change: No changes
- Days on market: 122 days
| Date | Price | Event |
|---|---|---|
8/18/2025 | $1,190,000 | |
10/23/2020 | $940,000 | |
7/16/2020 | $950,000 | |
7/12/2020 | $950,000 | |
2/21/2020 | $950,000 |
Past listing photos
Sign in to take a closer look at how this home compares to similar homes.
Explore Riverdale
Transit
| Location | Distance |
|---|---|
1at Van Cortlandt Park–242nd St | 1.03 miles |
1at 238th St | 1.4 miles |
4at Woodlawn | 1.63 miles |
1at 231st St | 1.82 miles |
4at Mosholu Parkway | 1.87 miles |
About Riverdale
Rental prices shown are base rent before any fees. Visit listings for cost and fees breakdown.
SalesMedian asking price
5 beds
$1.9M
Riverdale was once a summer retreat for wealthy New Yorkers, who built large estates and Tudor-style mansions along the cliffs overlooking the Hudson River and the Palisades. Many of these properties still remain, which lends an upscale, polished atmosphere to the neighborhood's windy, tree-lined streets. Although certain pockets recall the tonier Westchester towns to the north, Riverdale is far more diverse. In addition to large single-family homes, Riverdale also features many co-op complexes, which offer more affordable housing options but the same easy, bucolic pace of life.
Learn more about Riverdale



















































































































