$17,950
For Rent
Base rent only. For total monthly price and additional fees, see .
Rented 9/12/2025
4,660 ft²
$46 per ft²
9 rooms
5 beds
2.5 baths
House
- Park Slope
Under NYC law, you can't be charged a broker fee if you didn't hire a broker.
Listed By
This home has been saved by 31 users.
Listing by Sherwood Residential, Limited Liability Broker, 408 East 79th Street Ste, New York, NY 10075
Unavailable
Rented on 9/12/2025
Days on market
18 days
Last price change
No changes
About
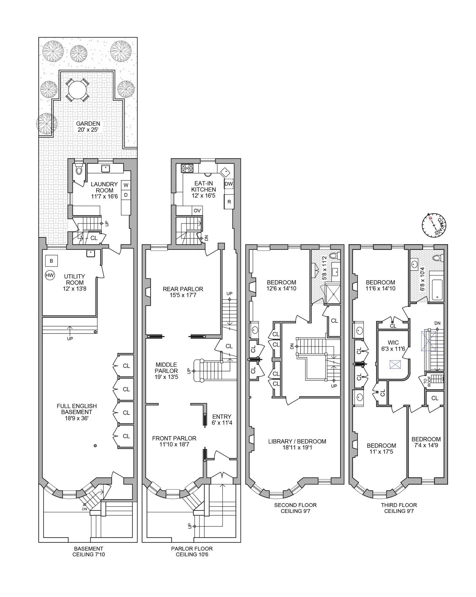
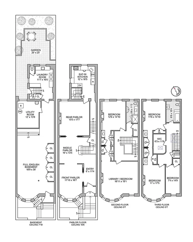
Perched atop the Slope on the park block of 2nd Street sits this four story, 20 foot wide center- stair limestone designed by the famed 19th Century architect Axel Hedman is located just down the block from esteemed Ethical Culture Fieldstone School and Poly Prep Country Day School. Grand in scale and detail, 593 2nd Street has a thoughtful layout and superb location.
Policies
Sorry, policy info isn’t available right now. Check back later.
Home features
Dishwasher
Fireplace
Decorative
Hardwood floors
Private outdoor space
Garden, Terrace
View
Garden
Washer/dryer
Building amenities
Services and facilities
Laundry in building
Wellness and recreation
No info on wellness and recreation
Shared outdoor space
Courtyard
About the building
593 2nd Street
593 2nd Street, Brooklyn, NY 11215
1 unit
3 stories
1910 built
Property history
Prices shown are base rent only. For total monthly price and additional fees, see .
| Date | Base rent | Event |
|---|---|---|
9/12/2025 | $17,950 | Rented by Sherwood Residential |
8/25/2025 | $17,950 | Listed by Sherwood Residential |
3/23/2023 | $14,950 | |
12/22/2022 | $14,950 | |
10/25/2022 | $14,950 | Price decreased by 12% |
Past listing photos
Sign in to take a closer look at how this home compares to similar homes.
Explore Park Slope
Transit
| Location | Distance |
|---|---|
Fat 7th Av | 0.35 miles |
23at Grand Army Plaza | 0.41 miles |
BQat 7th Av | 0.53 miles |
23at Eastern Parkway–Brooklyn Museum | 0.57 miles |
Fat Prospect Park–15 St | 0.64 miles |
About Park Slope
Rental prices shown are base rent before any fees. Visit listings for cost and fees breakdown.
SalesMedian asking price
5 beds
$3.75M
RentalsMedian asking base rent
5 beds
$14,500
Park Slope has a tranquil, easygoing vibe and can almost feel suburban. Strollers and children of all ages are a constant presence on sidewalks, as are shoppers patronizing local boutiques and dog walkers heading up to the park. Residents are Brooklynites through and through and tend to be socially conscious, artistically minded, and committed to their community. At night, a casual restaurant scene comes alive. For anyone looking for a night out, there are plenty of beer gardens and wine bars to patronize, especially in the South Slope, but don't go looking for dance clubs.
Learn more about Park SlopeSimilar homes
Prices shown are base rent only and don't include any fees. Visit each listing to see a complete cost breakdown.
Similar Homes looks at ad spend and other factors like location, price, and number of beds and baths.
















































































































































































