$10,800
For Rent
Base rent only. For total monthly price and additional fees, see .
Rented 5/7/2024
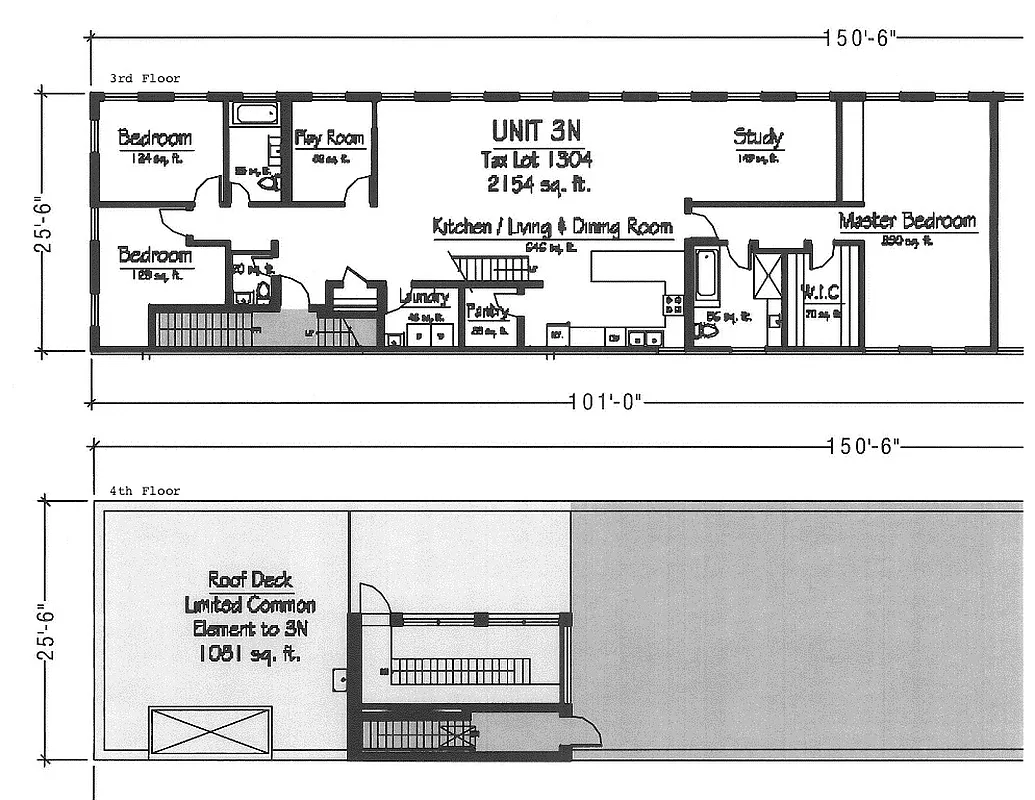
2,200 ft²
$58 per ft²
6 rooms
3 beds
2.5 baths
Condo
- Williamsburg
Under NYC law, you can't be charged a broker fee if you didn't hire a broker.
Listed By
This home has been saved by 72 users.
Listing by Corcoran, Limited Liability Broker, 245 Bedford Avenue, Brooklyn, NY 11211
Unavailable
Rented on 5/7/2024
Days on market
5 days
Last price change
No changes
About
Introducing an unparalleled opportunity to embrace the epitome of Brooklyn living at its absolute finest - indulge in the Brooklyn dream in this quintessential Williamsburg Loft!
Nestled within the most sought-after pocket in the Northside, this boutique condo loft conversion shines with its unique charm.
Policies
Sorry, policy info isn’t available right now. Check back later.
Home features
Central air
Dishwasher
Hardwood floors
Private outdoor space
Roof deck
View
City
Washer/dryer
Building amenities
No info on building amenities
About the building
602 Driggs Avenue
602 Driggs Avenue, Brooklyn, NY 11211
5 units
1 story
1930 built
Property history
Prices shown are base rent only. For total monthly price and additional fees, see .
| Date | Base rent | Event |
|---|---|---|
5/29/2024 | $10,800 | Rented by Corcoran |
5/7/2024 | $10,800 | Temporarily off market |
5/2/2024 | $10,800 | Listed by Corcoran |
5/14/2022 | $9,300 | |
10/17/2021 | $9,300 |
Past listing photos
Sign in to take a closer look at how this home compares to similar homes.
Explore Williamsburg
Transit
| Location | Distance |
|---|---|
Lat Bedford Av | 0.11 miles |
GLat Metropolitan Av | 0.35 miles |
Ferryat North 5th Street Ferry landing | 0.42 miles |
GLat Lorimer St | 0.47 miles |
JMZat Marcy Av | 0.48 miles |
About Williamsburg
Rental prices shown are base rent before any fees. Visit listings for cost and fees breakdown.
SalesMedian asking price
3 beds
$2.89M
RentalsMedian asking base rent
3 beds
$5,750
Williamsburg is Brooklyn's booming epicenter with a well-deserved and worldwide reputation for being an influential hub thanks to a thriving cultural scene. Here you will find eye-catching new construction, brownstones, and prewars sitting next to historic buildings on streets dotted with restaurants, art spaces, boutiques, and more. With a Manhattan-facing waterfront (hello Domino Park!) and its large weekend markets (we're talking about you, Smorgasburg, and Artists & Fleas), the neighborhood is ideal for strolling and people watching. Another fringe benefit is Williamsburg's proximity to Manhattan via the G, L, M, and N subway lines.
Learn more about WilliamsburgSimilar homes
Prices shown are base rent only and don't include any fees. Visit each listing to see a complete cost breakdown.
Similar Homes looks at ad spend and other factors like location, price, and number of beds and baths.















































































































































































































