$2,249,000
For Sale
Temporarily off market 12/16/2025
3,600 ft²
$624 per ft²
9 rooms
6 beds
3 baths
House
- Stuyvesant Heights
Resale
Seller's agents
This home has been saved by 63 users.
Listing by Compass, Corporate Broker, 10 East 53rd Street, New York, NY 10022
Common charges
Not applicable
Estimated payment
$12,120/mo
Legal disclaimerAll calculations are estimates provided by StreetEasy for informational purposes only. Actual amounts or financing terms may vary. Please contact your mortgage provider for specifics.Taxes
$450/mo
Tax abatement
No info
About
Seller’s agent
description
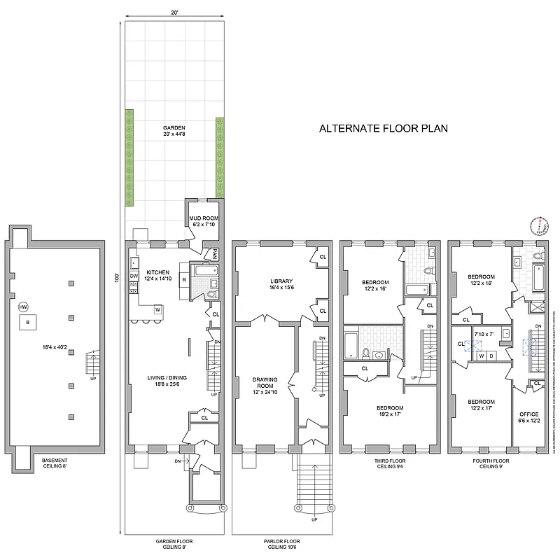
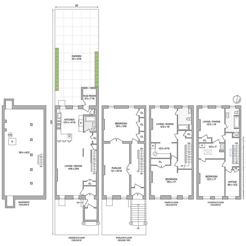
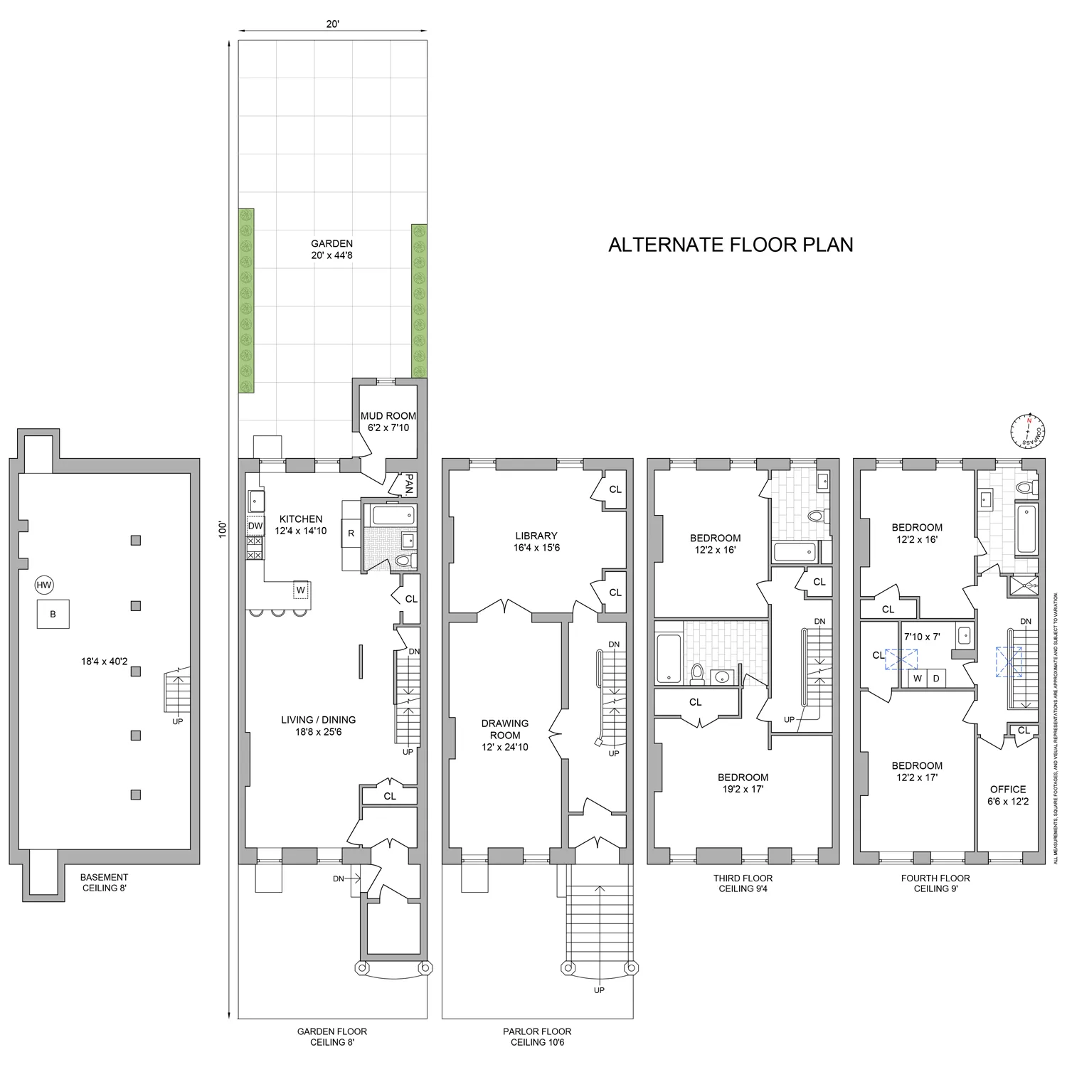
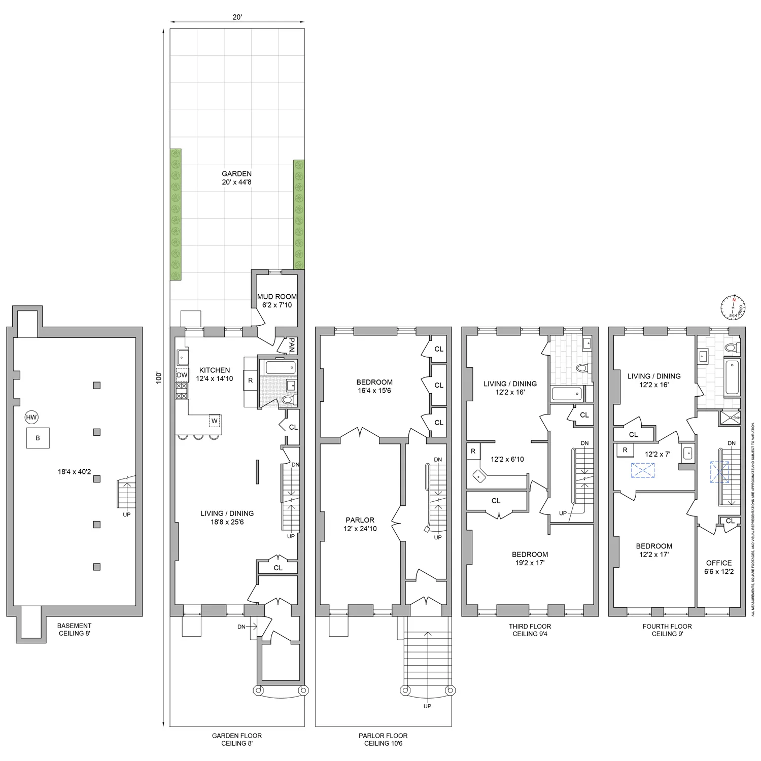
This exceptional townhouse located at 621 Putnam Ave is a true gem. The house is situated on a beautiful tree-lined townhouse block, across from the historic, and soon-to-be revamped, Marcus Garvey Armory. This stunning brownstone spans 3,600 square feet with many of its original details intact. The 20’ wide house is a perfect opportunity to create your dream home.
Policies
Sorry, policy info isn’t available right now. Check back later.
Home features
Dishwasher
Hardwood floors
Private outdoor space
Garden
Washer/dryer
Building amenities
No info on building amenities
About the building
621 Putnam Avenue
621 Putnam Avenue, Brooklyn, NY 11221
1 unit
3 stories
1899 built
For sale
0 available units for saleFor rent
0 available units for rentDocuments and permits
View documents and permitsProperty history
- Price Change: ↓ $236,000 (-9.5%) on 9/11/25
- Days on market: 181 daysThis is the number of days the listing has been on StreetEasy.
| Date | Price | Event |
|---|---|---|
12/16/2025 | $2,249,000 | Temporarily off market |
9/11/2025 | $2,249,000 | Price decreased by 9% |
6/18/2025 | $2,485,000 | Listed by Compass |
Sign in to take a closer look at how this home compares to similar homes.
Explore Stuyvesant Heights
Transit
| Location | Distance |
|---|---|
ACat Kingston–Throop | 0.44 miles |
ACat Utica Av | 0.5 miles |
Jat Kosciusko St | 0.66 miles |
JZat Gates Av | 0.76 miles |
ACat Nostrand Av | 0.77 miles |



































































































































































