$2,475
For Rent
Base rent only. For total monthly price and additional fees, see .
Rented 7/12/2016
900 ft²
$33 per ft²
6 rooms
2 beds
2 baths
Rental unit
- Bushwick
Under NYC law, you can't be charged a broker fee if you didn't hire a broker.
Listed By
This home has been saved by 58 users.
Listing by BIG Management NY
Searching with a housing voucher, like Section 8?
Unavailable
Rented on 7/12/2016
Days on market
1126 days
Last price change
↓ $62 (-2.4%) on 6/23/16
About
* NO FEE * 1 MONTH FREE * Pets allowed * July or August move-in *
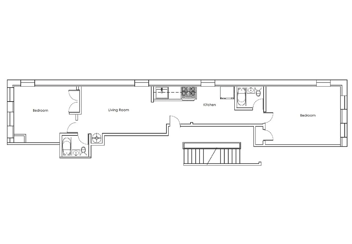
Brand new renovated 2 bed / 2 bath. Queen size bedrooms, living room, and large open kitchen. See floorplan above. Corner unit with plenty of natural sunlight! Washer/dryer in-unit. Utilities included are heat and water. Applicants with strong credit and great references are encouraged to make an offer.
Policies
Sorry, policy info isn’t available right now. Check back later.
Home features
Dishwasher
Washer/dryer
Building amenities
Services and facilities
Doorman
Virtual
Laundry in building
Wellness and recreation
No info on wellness and recreation
Shared outdoor space
No info on shared outdoor space
About the building
657 Knickerbocker Avenue
657 Knickerbocker Avenue, Brooklyn, NY 11221
8 units
4 stories
1931 built
Property history
Prices shown are base rent only. For total monthly price and additional fees, see .
| Date | Base rent | Event |
|---|---|---|
7/13/2016 | $2,475 | Rented by BIG Management NY |
7/12/2016 | $2,475 | No longer available |
6/23/2016 | $2,475 | Price decreased by 2% |
6/21/2016 | $2,537 | Price decreased by 5% |
6/16/2016 | $2,658 | Listed by BIG Management NY |
Past listing photos
Sign in to take a closer look at how this home compares to similar homes.
Explore Bushwick
Transit
| Location | Distance |
|---|---|
LMat Myrtle Av | 0.29 miles |
Lat Halsey St | 0.34 miles |
Mat Knickerbocker Av | 0.43 miles |
Mat Seneca Av | 0.56 miles |
Lat Wilson Av | 0.58 miles |
About Bushwick
Rental prices shown are base rent before any fees. Visit listings for cost and fees breakdown.
SalesMedian asking price
2 beds
$900K
RentalsMedian asking base rent
2 beds
$3,395
Bushwick has seen a lot of change over the years. In the early 1900s, it was known for its thriving distilleries and breweries. After those industries declined, it experienced a long period of blight through the 1970s and 1980s. Now the neighborhood is seeing a renaissance, as artists pushed out of Williamsburg and elsewhere move in and raise property values. Bushwick offers unconventional living spaces: The housing market is full of converted lofts in old factories, sometimes with great access to outdoor space.
Learn more about BushwickSimilar homes
Prices shown are base rent only and don't include any fees. Visit each listing to see a complete cost breakdown.
Similar Homes looks at ad spend and other factors like location, price, and number of beds and baths.






















































































































