$1,650,000
For Sale
In contract 7/8/2024
1,252 ft²
$1,317 per ft²
5 rooms
2 beds
2 baths
Condo
- Park Slope
Resale
This home has been saved by 133 users.
Listing by Corcoran, Limited Liability Broker, 125 Seventh Avenue, Brooklyn, NY 11215
Common charges
$762/mo
Estimated payment
$9,520/mo
Legal disclaimerAll calculations are estimates provided by StreetEasy for informational purposes only. Actual amounts or financing terms may vary. Please contact your mortgage provider for specifics.Taxes
$197/mo
Tax abatement
No info
About
Seller’s agent
description
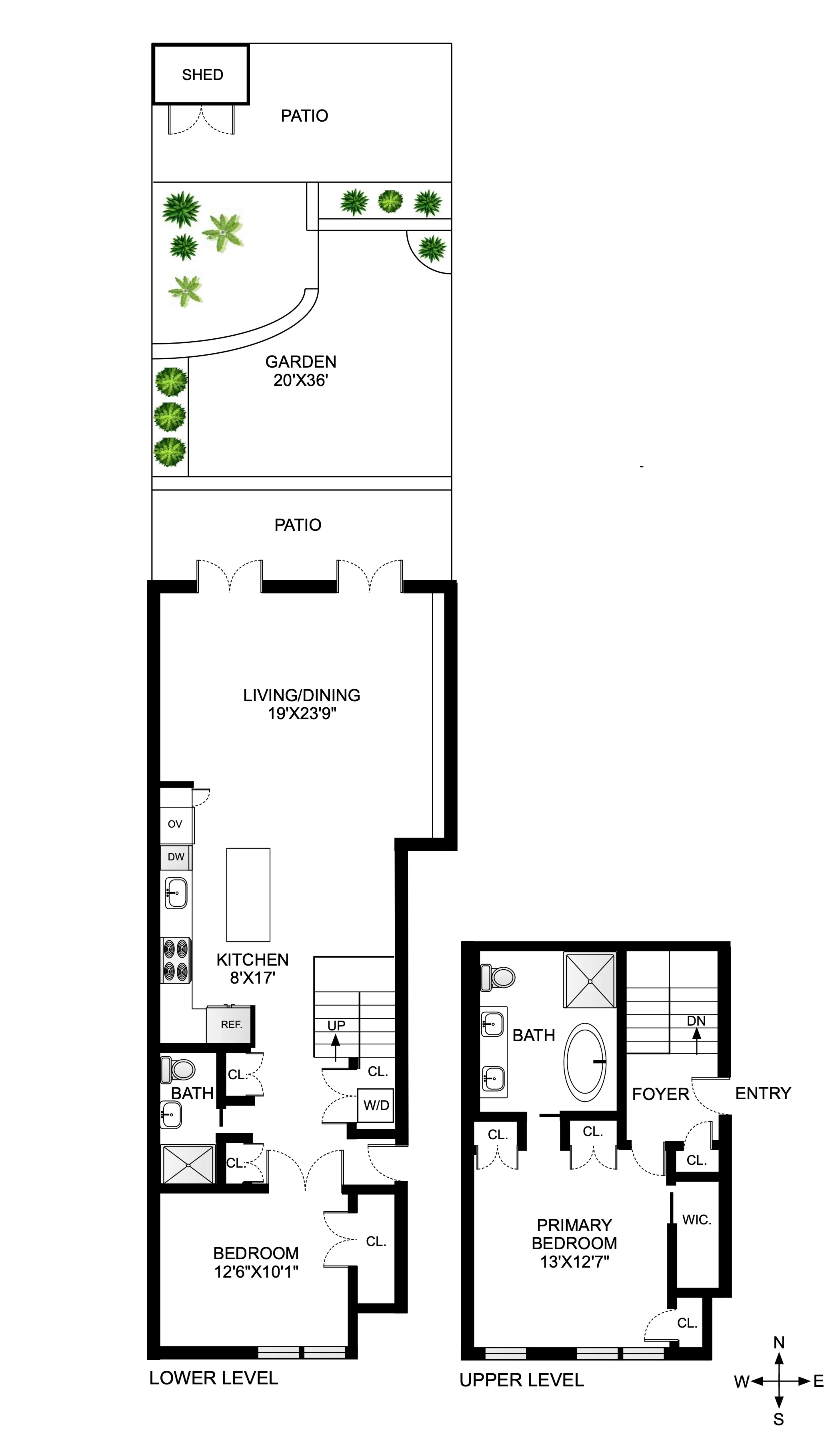
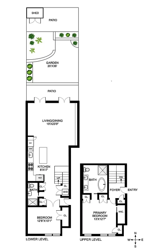
Introducing unit 1B at 657 Warren Street, a stunning duplex condo that features two bedrooms, two bathrooms and a large private garden! This home, totaling over 1,250 sqft across two floors, has been completely renovated to offer a modern and spacious living environment.
Upon entering, you will find a foyer area with a convenient closet that leads to an open and wide staircase.
Policies
Sorry, policy info isn’t available right now. Check back later.
Home features
Central air
Dishwasher
Hardwood floors
Private outdoor space
Garden
View
Garden
Washer/dryer
Building amenities
No info on building amenities
About the building
657 Warren Street
657 Warren Street, Brooklyn, NY 11217
- units
- stories
- built
For sale
1 available units for saleFor rent
0 available units for rentDocuments and permits
View documents and permitsProperty history
- Price Change: No changes
- Days on market: 33 daysThis is the number of days the listing has been on StreetEasy.
| Date | Price | Event |
|---|---|---|
7/8/2024 | $1,650,000 | In contract |
6/5/2024 | $1,650,000 | Listed by Corcoran |
3/28/2017 | $1,056,000 | |
1/20/2017 | $999,999 | |
12/30/2016 | $999,999 | Price decreased by 14% |
Past listing photos
Sign in to take a closer look at how this home compares to similar homes.
Explore Park Slope
Transit
| Location | Distance |
|---|---|
23at Bergen St | 0.15 miles |
BDNQR2345at Atlantic Av–Barclays Ctr | 0.22 miles |
LIRRat Atlantic Terminal | 0.25 miles |
Rat Union St | 0.34 miles |
BQat 7th Av | 0.37 miles |
About Park Slope
Rental prices shown are base rent before any fees. Visit listings for cost and fees breakdown.
SalesMedian asking price
2 beds
$1.54M
RentalsMedian asking base rent
2 beds
$4,500
Park Slope has a tranquil, easygoing vibe and can almost feel suburban. Strollers and children of all ages are a constant presence on sidewalks, as are shoppers patronizing local boutiques and dog walkers heading up to the park. Residents are Brooklynites through and through and tend to be socially conscious, artistically minded, and committed to their community. At night, a casual restaurant scene comes alive. For anyone looking for a night out, there are plenty of beer gardens and wine bars to patronize, especially in the South Slope, but don't go looking for dance clubs.
Learn more about Park Slope
































































































































