View this home virtually
$875,000
For Sale
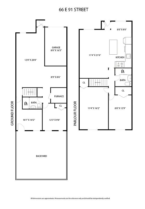
1,636 ft²
$534 per ft²
8 rooms
4 beds
2 baths
House
- Brownsville
Resale
Listing by 555 PROPERTIES LLC, Real Estate Principal Office, 427 Kingston Avenue, Brooklyn, NY 11213
Listing updated in the last 2 days
Common charges
Not applicable
Estimated payment
$4,992/mo
Legal disclaimerAll calculations are estimates provided by StreetEasy for informational purposes only. Actual amounts or financing terms may vary. Please contact your mortgage provider for specifics.Taxes
$466/mo
Tax abatement
No info
About
Seller’s agent
description
Renovated 4-Bed Brick Home with Garage & Yard
66 E 91st Street is a move-in-ready, 4-bedroom, 2-bathroom brick house in Brooklyn. This fully renovated home combines a bright, open layout with the rare perks of garage private parking and outdoor space.
Home Features:
* - Modern Kitchen: Features a center island, granite countertops, and new cabinets.
* - New appliances.
Policies
Sorry, policy info isn’t available right now. Check back later.
Home features
Private outdoor space
Garden
Building amenities
Services and facilities
Parking
Garage
Wellness and recreation
No info on wellness and recreation
Shared outdoor space
No info on shared outdoor space
About the building
66 East 91st Street
66 East 91st Street, Brooklyn, NY 11212
1 unit
1 story
1945 built
Property history
- Price Change: No changes
- Days on market: 0 daysThis is the number of days the listing has been on StreetEasy.
| Date | Price | Event |
|---|---|---|
2/3/2026 | $875,000 | Listed by 555 PROPERTIES LLC |
Sign in to take a closer look at how this home compares to similar homes.
Explore Brownsville
Transit
| Location | Distance |
|---|---|
3at Sutter Av | 0.38 miles |
34at Utica Av | 0.46 miles |
3at Saratoga Av | 0.74 miles |
3at Kingston Av | 0.81 miles |
3at Rockaway Av | 1.08 miles |























































































































