- ft²
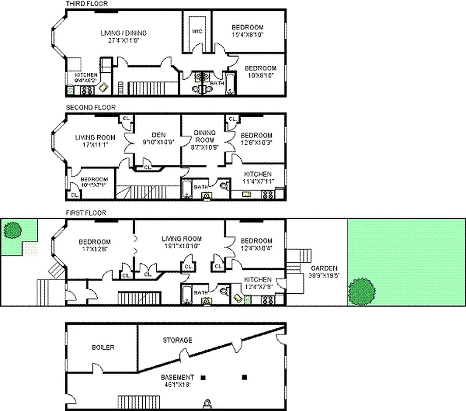
9 rooms
6 beds
3.5 baths
Three-family home
- Park Slope
reported sale
Sold on 5/16/2014
Not yet verified by closing records
Seller's agents
This home has been saved by 53 users.
Listing by Corcoran, Limited Liability Broker, 125 Seventh Avenue, Brooklyn, NY 11215 | Brokerage Listing ID: 2931316
Common charges
Not applicable
Estimated payment
$11,119/mo
Legal disclaimerAll calculations are estimates provided by StreetEasy for informational purposes only. Actual amounts or financing terms may vary. Please contact your mortgage provider for specifics.Taxes
No info
Tax abatement
No info
About
Seller’s agent
description
Three story, three unit brick townhouse on a stunning tree lined North Slope block off trendy and chic Fifth Avenue. Over 3,000 square feet of living space awaits you. This picture-perfect townhome offers monumental possibilities for living and investment.
All of this North Park Slope townhomes major capital renovation has been completed within the last five years and suitable for an end-user or investor
Policies
Sorry, policy info isn’t available right now. Check back later.
Home features
No info on home features
Building amenities
No info on building amenities
About the building
697 De Graw Street
697 De Graw Street, Brooklyn, NY 11217
3 units
3 stories
1899 built
For sale
0 available units for saleFor rent
0 available units for rentDocuments and permits
View documents and permitsProperty history
- Price Change: No changes
- Days on market: 157 daysThis is the number of days the listing has been on StreetEasy.
| Date | Price | Event |
|---|---|---|
5/16/2014 | $2,199,000 | |
5/17/2014 | $2,199,000 | Sold by Corcoran |
5/16/2014 | $2,199,000 | No longer available |
4/18/2014 | $2,199,000 | In contract |
11/12/2013 | $2,199,000 | Listed by Corcoran |
Past listing photos
Sign in to take a closer look at how this home compares to similar homes.
Explore Park Slope
Transit
| Location | Distance |
|---|---|
Rat Union St | 0.17 miles |
23at Bergen St | 0.3 miles |
BQat 7th Av | 0.38 miles |
BDNQR2345at Atlantic Av–Barclays Ctr | 0.41 miles |
LIRRat Atlantic Terminal | 0.44 miles |
About Park Slope
Rental prices shown are base rent before any fees. Visit listings for cost and fees breakdown.
SalesMedian asking price
6 beds
$4.65M
Park Slope has a tranquil, easygoing vibe and can almost feel suburban. Strollers and children of all ages are a constant presence on sidewalks, as are shoppers patronizing local boutiques and dog walkers heading up to the park. Residents are Brooklynites through and through and tend to be socially conscious, artistically minded, and committed to their community. At night, a casual restaurant scene comes alive. For anyone looking for a night out, there are plenty of beer gardens and wine bars to patronize, especially in the South Slope, but don't go looking for dance clubs.
Learn more about Park Slope



















































































































