$565,000
For Sale
In contract 11/14/2025
- ft²
4 rooms
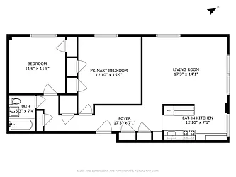
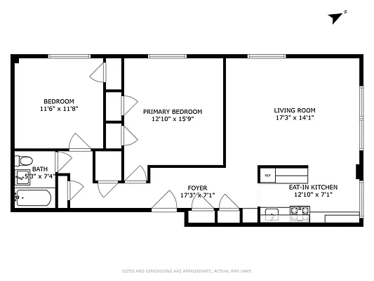
2 beds
1 bath
Co-op
- West Harlem
Resale
This home has been saved by 31 users.
Listing by Corcoran, Limited Liability Broker, 221 Columbus Avenue, New York, NY 10023
Maintenance fees
$1,477/mo
Estimated payment
$4,390/mo
Legal disclaimerAll calculations are estimates provided by StreetEasy for informational purposes only. Actual amounts or financing terms may vary. Please contact your mortgage provider for specifics.Taxes
Included in maintenance fees
Tax abatement
No info
About
Seller’s agent
description
WOW! Perched up on the 8th Floor, this large, freshly painted 2 bedroom, 1 bath apartment has the floor plan you've been looking for at a great value. An entrance foyer leads you into a large apartment that has fantastic closets, natural light-filled rooms from over sized windows, and has just the right amount of space one needs for ultimate comfort..
Policies
Sorry, policy info isn’t available right now. Check back later.
Home features
Private outdoor space
Garden
View
City, Garden
Building amenities
Sorry, building amenities aren't available right now. Check back later.
About the building
70 La Salle Street
70 La Salle Street, New York, NY 10027
Complex:
Morningside Gardens982 units
21 stories
1956 built
For sale
4 available units for saleFor rent
0 available units for rentDocuments and permits
View documents and permitsProperty history
- Price Change: ↓ $45,000 (-7.4%) on 9/9/25
- Days on market: 113 daysThis is the number of days the listing has been on StreetEasy.
| Date | Price | Event |
|---|---|---|
11/14/2025 | $565,000 | In contract |
9/9/2025 | $565,000 | Price decreased by 7% |
7/24/2025 | $610,000 | Listed by Corcoran |
Sign in to take a closer look at how this home compares to similar homes.
Explore West Harlem
Transit
| Location | Distance |
|---|---|
1at 125th St | under 500 feet |
ABCDat 125th St | 0.35 miles |
1at 116th St–Columbia University | 0.5 miles |
1at 137th St–City College | 0.53 miles |
BCat 135th St | 0.54 miles |













































































































































































































