$4,400
For Rent
Base rent only. For total monthly price and additional fees, see .
- ft²
8 rooms
3 beds
2.5 baths
House
- Bushwick
Under NYC law, you can't be charged a broker fee if you didn't hire a broker.
Listed By
This home has been saved by 20 users.
Listing by Compass, Corporate Broker, 110 5th Avenue, New York, NY 10011
Available
Available now
Days on market
16 days
Last price change
No changes
About
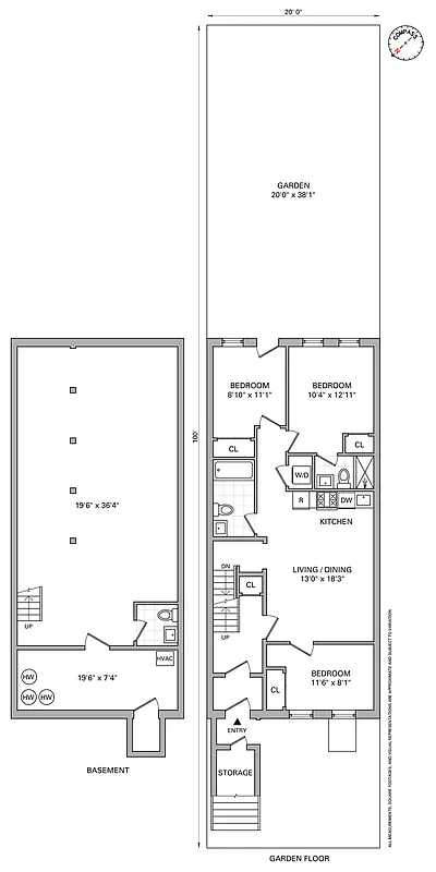
Welcome to 702 Chauncey Street! Nestled in one of the most unique blocks of Bushwick, this newly constructed three-family townhouse offers a modern living experience, complete with condo-like finishes. Unit 1 is a duplex apartment that offers a sophisticated living experience with three spacious bedrooms, two full bathrooms, and an additional half bath. Convenience is at your fingertips with in-unit laundry and central air conditioning.
Policies
Sorry, policy info isn’t available right now. Check back later.
Home features
Central air
Dishwasher
Hardwood floors
Private outdoor space
Garden
Washer/dryer
Building amenities
No info on building amenities
About the building
702 Chauncey Street
702 Chauncey Street, Brooklyn, NY 11207
1 unit
2 stories
1899 built
Property history
Prices shown are base rent only. For total monthly price and additional fees, see .
| Date | Base rent | Event |
|---|---|---|
11/18/2025 | $4,400 | Listed by Compass |
Sign in to take a closer look at how this home compares to similar homes.
Explore Bushwick
Transit
| Location | Distance |
|---|---|
| 0.2 miles |
| 0.21 miles |
| 0.34 miles |
| 0.42 miles |
| 0.45 miles |
About Bushwick
Rental prices shown are base rent before any fees. Visit listings for cost and fees breakdown.
SalesMedian asking price
3 beds
$1.2M
RentalsMedian asking base rent
3 beds
$3,800
Bushwick has seen a lot of change over the years. In the early 1900s, it was known for its thriving distilleries and breweries. After those industries declined, it experienced a long period of blight through the 1970s and 1980s. Now the neighborhood is seeing a renaissance, as artists pushed out of Williamsburg and elsewhere move in and raise property values. Bushwick offers unconventional living spaces: The housing market is full of converted lofts in old factories, sometimes with great access to outdoor space.
Learn more about BushwickSimilar homes
Prices shown are base rent only and don't include any fees. Visit each listing to see a complete cost breakdown.
Similar Homes looks at ad spend and other factors like location, price, and number of beds and baths.





















































































































































