$1,599,000
For Sale
In contract 10/29/2025
2,430 ft²
$658 per ft²
10 rooms
5 beds
3 baths
Two-family home
- Stuyvesant Heights
Resale
This home has been saved by 50 users.
Listing by Corcoran, Limited Liability Broker, 1413 Fulton Street, Brooklyn, NY 11216
Common charges
Not applicable
Estimated payment
$8,729/mo
Legal disclaimerAll calculations are estimates provided by StreetEasy for informational purposes only. Actual amounts or financing terms may vary. Please contact your mortgage provider for specifics.Taxes
$432/mo
Tax abatement
No info
About
Seller’s agent
description
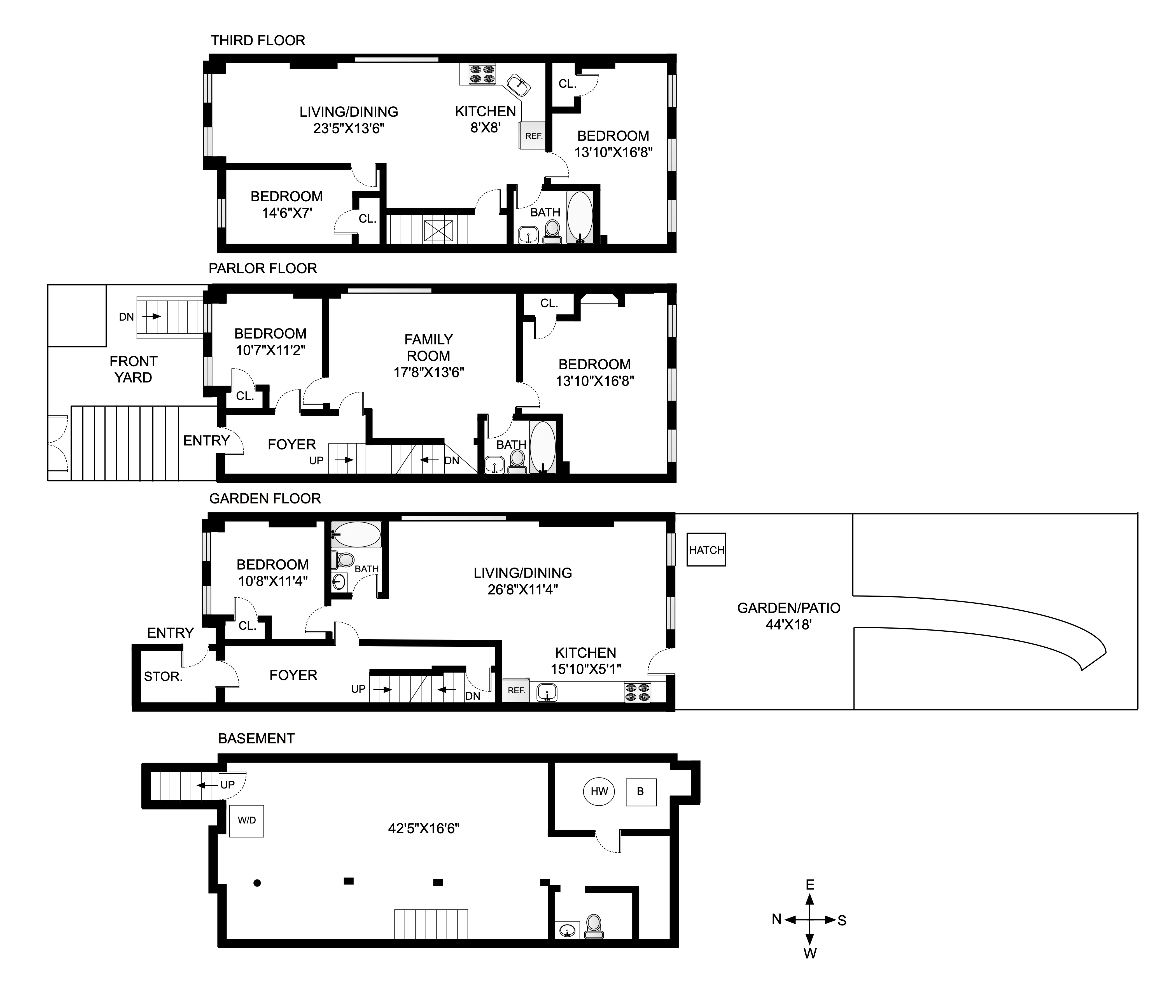
Bed Stuy Two family Brownstone on coveted Halsey Street with huge upside potential.
Built 18 x 45 on a 100 ft deep lot the building is currently set up with a lower 3 bedroom / 2 bathroom duplex that spans across the garden & parlor levels with access to the backyard and cellar while the top floor hosts a 2 bedroom / 1 bathroom unit.
Policies
Sorry, policy info isn’t available right now. Check back later.
Home features
Hardwood floors
Private outdoor space
Garden
View
Garden
Washer/dryer
Building amenities
No info on building amenities
About the building
710 Halsey Street
710 Halsey Street, Brooklyn, NY 11233
2 units
2 stories
1899 built
For sale
1 available units for saleFor rent
0 available units for rentDocuments and permits
View documents and permitsProperty history
- Price Change: No changes
- Days on market: 35 daysThis is the number of days the listing has been on StreetEasy.
| Date | Price | Event |
|---|---|---|
10/29/2025 | $1,599,000 | In contract |
9/24/2025 | $1,599,000 | Listed by Corcoran |
Sign in to take a closer look at how this home compares to similar homes.
Explore Stuyvesant Heights
Transit
| Location | Distance |
|---|---|
ACat Ralph Av | 0.41 miles |
ACat Utica Av | 0.41 miles |
JZat Gates Av | 0.41 miles |
Jat Halsey St | 0.51 miles |
Jat Kosciusko St | 0.61 miles |







































































































































































