$5,200
For Rent
Base rent only. For total monthly price and additional fees, see .
No longer available 9/4/2024
- ft²
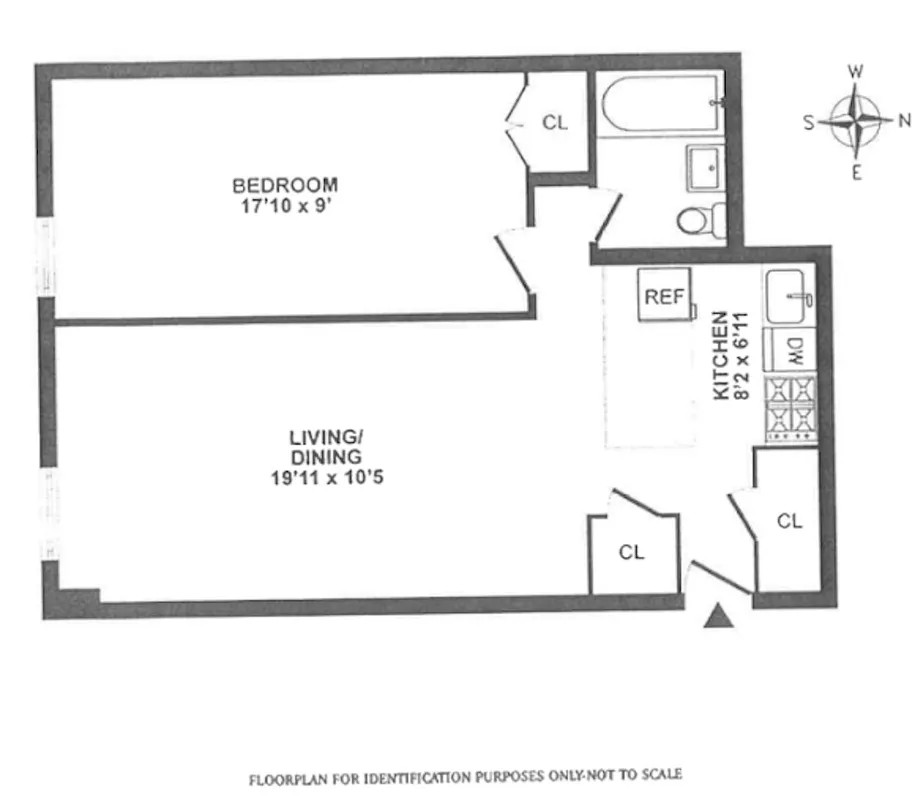
3 rooms
1 bed
1 bath
Co-op
- West Village
Under NYC law, you can't be charged a broker fee if you didn't hire a broker.
Listed By
This home has been saved by 72 users.
Listing by Brown Harris Stevens, Real Estate Principal Office, 445 Park Avenue, New York, NY 10022
Unavailable
No longer available on 9/4/2024
Days on market
26 days
Last price change
↓ $175 (-3.3%) on 6/22/24
About
*Great West Village One Bedroom*
Welcome to Unit 2K at 720 Greenwich Street with NO Board Approval! This exceptional coop is in the heart of the vibrant and distinctive neighborhood of West Village. As you step inside you'll take notice of the great windows and high ceilings.
The captivating living room space flawlessly integrates dining, creating a warm and inviting atmosphere primed for relaxing evenings or entertaining friends.
Policies
Co-purchase allowed
Parents buying allowed
Pets allowed
Cats and dogs allowed
Pied-a-terre allowed
Home features
No info on home features
Building amenities
Services and facilities
Bike room
Doorman
Part-time
Elevator
Live-in super
Wellness and recreation
No info on wellness and recreation
Shared outdoor space
No info on shared outdoor space
About the building
720 Greenwich Street
720 Greenwich Street, New York, NY 10014
157 units
10 stories
1930 built
Property history
Prices shown are base rent only. For total monthly price and additional fees, see .
| Date | Base rent | Event |
|---|---|---|
9/4/2024 | $5,200 | No longer available |
7/3/2024 | $5,200 | In contract |
6/22/2024 | $5,200 | Price decreased by 3% |
6/7/2024 | $5,375 | Listed by Brown Harris Stevens |
6/5/2022 | $4,600 |
Sign in to take a closer look at how this home compares to similar homes.
Explore West Village
Transit
| Location | Distance |
|---|---|
PATHat Christopher Street Station | 0.1 miles |
1at Christopher St–Sheridan Sq | 0.23 miles |
ABCDEFMat West 4th St | 0.39 miles |
FLM123at 14th St | 0.39 miles |
1at Houston St | 0.42 miles |
About West Village
Rental prices shown are base rent before any fees. Visit listings for cost and fees breakdown.
SalesMedian asking price
1 bed
$1.25M
RentalsMedian asking base rent
1 bed
$5,495
Picture a romantic comedy set in New York City: The heroine invariably lives in a cozy walk-up on a cobblestone street in a neighborhood with cute boutiques and trendy cafes on every corner. This movie is set in the West Village. In reality, the West Village is just as picturesque: The neighborhood is tucked between Greenwich Village and the Hudson River and is one of the quietest and most sophisticated pockets of Downtown Manhattan. Primarily residential, with a distinct lack of office buildings, the leafy, off-the-grid streets are peaceful during the day but get livelier at night. That's when well-heeled residents, fashionistas, and literati can all be found mingling over oysters at the area's many low-lit cocktail bars.
Learn more about West VillageSimilar homes
Prices shown are base rent only and don't include any fees. Visit each listing to see a complete cost breakdown.
Similar Homes looks at ad spend and other factors like location, price, and number of beds and baths.













































