$4,700
For Rent
Base rent only. For total monthly price and additional fees, see .
Rented 11/20/2025
750 ft²
$75 per ft²
4 rooms
1 bed
1 bath
Mixed-use building
- Greenpoint
Under NYC law, you can't be charged a broker fee if you didn't hire a broker.
Listed By
This home has been saved by 48 users.
Listing by Corcoran, Limited Liability Broker, 524 Broadway, New York, NY 10012
Unavailable
Rented on 11/20/2025
Days on market
9 days
Last price change
No changes
About
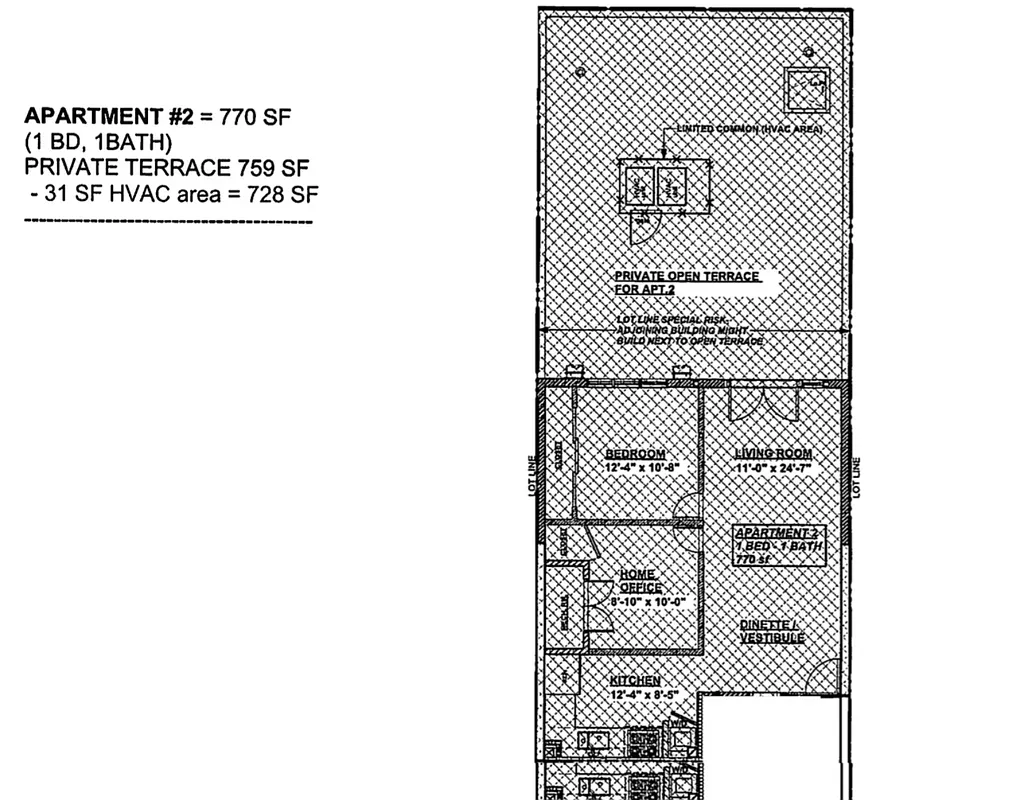
Offering a large sun-filled 2 bedroom, 1 bath, redesigned with condo finishes featuring 759 SQ FT PRIVATE OPEN TERRACE!
The apartment has central air, a washer/dryer, HEATED bathroom floors in the bathroom, lots of kitchen counter space, a large oven, and plenty of cabinet space.
This pet-friendly building has gone through a complete renovation and modernization and is located in the heart of Greenpoint just steps to the G train and a 5-7min trip to the L train at Bedford and the East River Ferry.
Policies
Sorry, policy info isn’t available right now. Check back later.
Home features
Central air
Dishwasher
Hardwood floors
Private outdoor space
Roof deck
Washer/dryer
Building amenities
Services and facilities
No info on services and facilities
Wellness and recreation
No info on wellness and recreation
Shared outdoor space
Roof deck
About the building
720 Manhattan Avenue
720 Manhattan Avenue, Brooklyn, NY 11222
4 units
4 stories
1931 built
Property history
Prices shown are base rent only. For total monthly price and additional fees, see .
| Date | Base rent | Event |
|---|---|---|
11/20/2025 | $4,700 | Rented by Corcoran |
11/17/2025 | $4,700 | In contract |
11/8/2025 | $4,700 | Listed by Corcoran |
8/9/2021 | $3,900 | |
8/9/2021 | $3,900 | Price increased by 8% |
Past listing photos
Sign in to take a closer look at how this home compares to similar homes.
Explore Greenpoint
Transit
| Location | Distance |
|---|---|
Gat Nassau Av | under 500 feet |
Gat Greenpoint Av | 0.3 miles |
Ferryat India Street Ferry Landing | 0.62 miles |
Lat Bedford Av | 0.65 miles |
Ferryat North 5th Street Ferry landing | 0.74 miles |
About Greenpoint
Rental prices shown are base rent before any fees. Visit listings for cost and fees breakdown.
SalesMedian asking price
1 bed
$862K
RentalsMedian asking base rent
1 bed
$4,500
A former industrial and maritime neighborhood, Greenpoint was once primarily home to Polish and Irish immigrants and is now home to a large artist's community. The nightlife, restaurant and music scene have burgeoned in recent years as energy and activity in Williamsburg creeps north towards Greenpoint. As a result, the neighborhood's low-key, tucked-away vibe may not last for long, although poor access to public transportation may deter some new residents. Despite all the recent change, Greenpoint still hangs onto its rich history and an old-school community.
Learn more about GreenpointSimilar homes
Prices shown are base rent only and don't include any fees. Visit each listing to see a complete cost breakdown.
Similar Homes looks at ad spend and other factors like location, price, and number of beds and baths.




























































































































