$2,195,000
For Sale
No longer available 10/15/2025
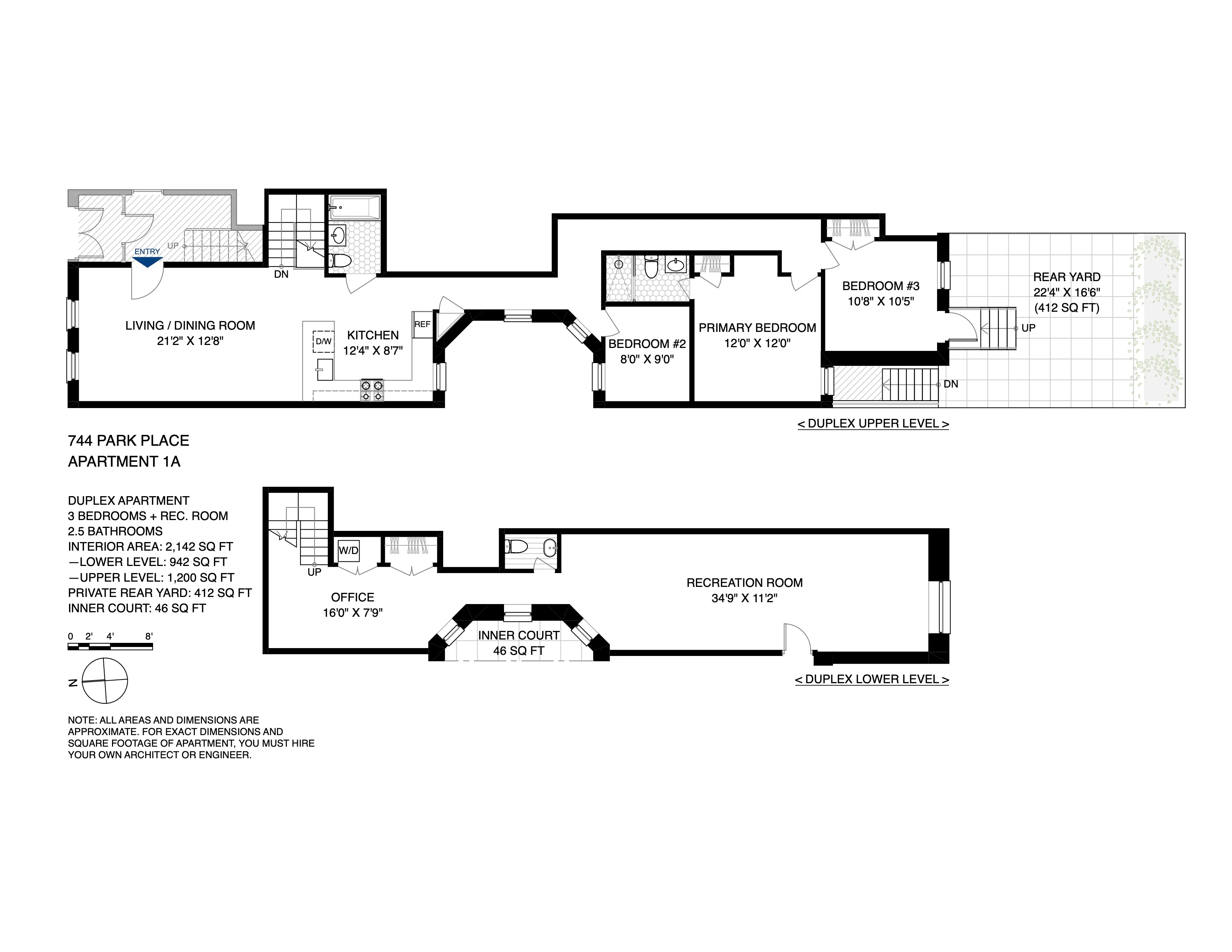
2,142 ft²
$1,024 per ft²
5 rooms
3 beds
2.5 baths
Condo
- Crown Heights
Sponsor unit
Sponsor unitA unit being sold for the first time. It’s typically owned by the building. For condos, this is often the developer. For co-ops, this is often the building’s original owner before it went co-op.
Seller's agent
This home has been saved by 30 users.
Listing by Compass, Corporate Broker, 514 2nd Street, Brooklyn, NY 11215
Common charges
$489/mo
Estimated payment
$11,578/mo
Legal disclaimerAll calculations are estimates provided by StreetEasy for informational purposes only. Actual amounts or financing terms may vary. Please contact your mortgage provider for specifics.Taxes
$369/mo
Tax abatement
No info
About
Seller’s agent
description
VIEWINGS BY APPOINTMENT THROUGH JAYSON. 744 Park Place is an 8-unit boutique condo building featuring 3- and 4- bedroom residences with extremely low monthly charges. With its elegant brick façade accented by carved stone details, the building has been thoroughly and luxuriously updated in a modern style to create the chic and comfortable living experience you’ve been searching for.
Policies
Sorry, policy info isn’t available right now. Check back later.
Home features
Central air
Dishwasher
Hardwood floors
Private outdoor space
Garden
Washer/dryer
Building amenities
No info on building amenities
About the building
744 Park Place
744 Park Place, Brooklyn, NY 11216
8 units
4 stories
1929 built
For sale
6 available units for saleFor rent
0 available units for rentDocuments and permits
View documents and permitsProperty history
- Price Change: No changes
- Days on market: 139 daysThis is the number of days the listing has been on StreetEasy.
| Date | Price | Event |
|---|---|---|
1/14/2026 | $2,195,000 | No longer available |
10/15/2025 | $2,195,000 | Temporarily off market |
5/29/2025 | $2,195,000 | Listed by Compass |
Sign in to take a closer look at how this home compares to similar homes.
Explore Crown Heights
Transit
| Location | Distance |
|---|---|
Sat Park Place | 0.26 miles |
3at Nostrand Av | 0.28 miles |
S2345at Franklin Av | 0.29 miles |
S2345at Botanic Gardens | 0.36 miles |
25at President St | 0.38 miles |
About Crown Heights
Rental prices shown are base rent before any fees. Visit listings for cost and fees breakdown.
SalesMedian asking price
3 beds
$1.68M
RentalsMedian asking base rent
3 beds
$3,800
Crown Heights has a lot going on. From the chaotic, commercial avenues of Nostrand and Utica to the wide, tree-lined esplanades of Eastern Parkway, the streets are always filled with locals shopping, catching up on the corner, and keeping tabs on neighbors. Walk down any of these streets and you're likely to find music playing from idling cars and bright Caribbean flags hanging from windows of apartment buildings. Every Labor Day, Crown Heights hosts the West Indian Day Parade, one of the city's largest annual street festivals which draws thousands of people from around the city and the world. The mix of people in such close proximity makes Crown Heights a fascinating microcosm of New York City. Living here, you'll be surrounded by a community with deep roots and rich heritage.
Learn more about Crown Heights


















































































































