$1,895,000
For Sale
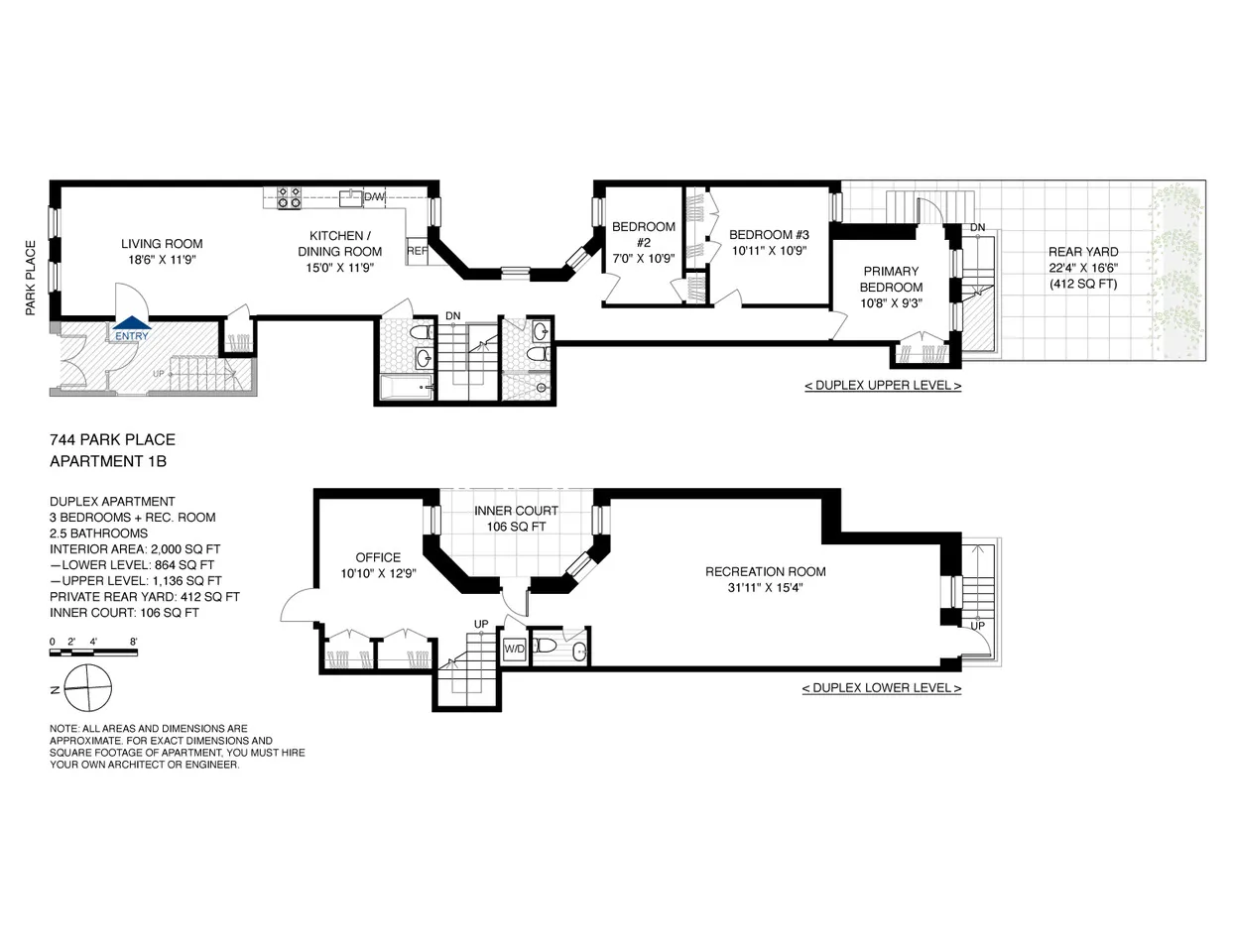
2,000 ft²
$947 per ft²
5 rooms
3 beds
2.5 baths
Condo
- Crown Heights
Sponsor unit
Sponsor unitA unit being sold for the first time. It’s typically owned by the building. For condos, this is often the developer. For co-ops, this is often the building’s original owner before it went co-op.
Something went wrong
This contact form won't load. Please try again.
This home has been saved by 45 users.
Open House
Sun, Dec 7 (2:30–3:30 PM ET)
Listing by Compass, Corporate Broker, 514 2nd Street, Brooklyn, NY 11215
Listing updated in the last 2 days
Common charges
$467/mo
Estimated payment
$10,527/mo
Legal disclaimerAll calculations are estimates provided by StreetEasy for informational purposes only. Actual amounts or financing terms may vary. Please contact your mortgage provider for specifics.Taxes
$353/mo
Tax abatement
No info
About
Seller’s agent
description
Measuring 2000 sq. ft, Apartment 1B is a duplex with 3 bedrooms, 2.5 baths, a backyard, an office, and a huge rec room. On the main floor of this stylish apartment, an open-plan living and dining area flows seamlessly into a well-appointed chef’s kitchen. This is not the tiny kitchen typical of many condos.
Policies
Sorry, policy info isn’t available right now. Check back later.
Home features
Central air
Dishwasher
Hardwood floors
Private outdoor space
Garden
View
Garden
Washer/dryer
Building amenities
No info on building amenities
About the building
744 Park Place
744 Park Place, Brooklyn, NY 11216
8 units
4 stories
1929 built
For sale
6 available units for saleFor rent
0 available units for rentDocuments and permits
View documents and permitsProperty history
- Price Change: ↓ $55,000 (-2.8%) on 10/15/25
- Days on market: 87 daysThis is the number of days the listing has been on StreetEasy.
| Date | Price | Event |
|---|---|---|
10/15/2025 | $1,895,000 | Price decreased by 3% |
9/9/2025 | $1,950,000 | Listed by Compass |
Sign in to take a closer look at how this home compares to similar homes.
Explore Crown Heights
Transit
| Location | Distance |
|---|---|
| 0.26 miles |
| 0.28 miles |
| 0.29 miles |
| 0.36 miles |
| 0.38 miles |
About Crown Heights
Rental prices shown are base rent before any fees. Visit listings for cost and fees breakdown.
SalesMedian asking price
3 beds
$1.8M
RentalsMedian asking base rent
3 beds
$3,990
Crown Heights has a lot going on. From the chaotic, commercial avenues of Nostrand and Utica to the wide, tree-lined esplanades of Eastern Parkway, the streets are always filled with locals shopping, catching up on the corner, and keeping tabs on neighbors. Walk down any of these streets and you're likely to find music playing from idling cars and bright Caribbean flags hanging from windows of apartment buildings. Every Labor Day, Crown Heights hosts the West Indian Day Parade, one of the city's largest annual street festivals which draws thousands of people from around the city and the world. The mix of people in such close proximity makes Crown Heights a fascinating microcosm of New York City. Living here, you'll be surrounded by a community with deep roots and rich heritage.
Learn more about Crown Heights










































































































































