View this home virtually
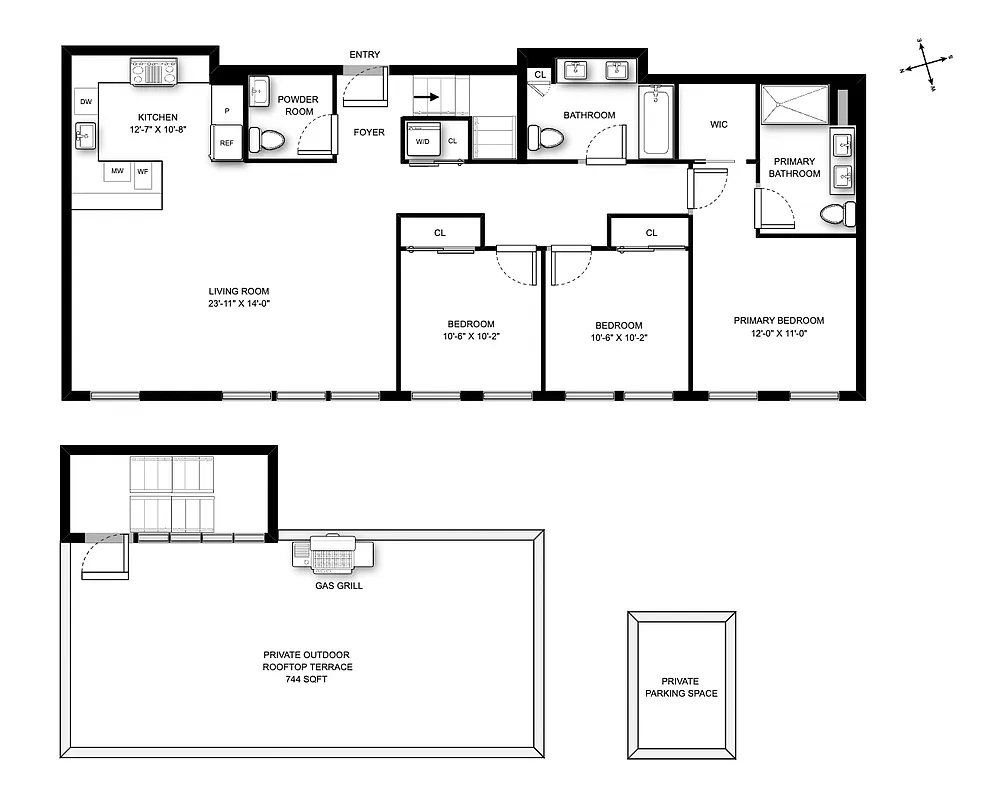
1,514 ft²
$2,311 per ft²
7 rooms
3 beds
2.5 baths
Condo
- Cobble Hill
Resale
reported sale
Sold on 6/29/2024
Not yet verified by closing records
Seller's agents
This home has been saved by 52 users.
Listing by Highline Residential, Limited Liability Broker, 360 Madison Avenue, New York, NY 10017
Common charges
$1,446/mo
Estimated payment
$23,645/mo
Legal disclaimerAll calculations are estimates provided by StreetEasy for informational purposes only. Actual amounts or financing terms may vary. Please contact your mortgage provider for specifics.Taxes
$1,617/mo
Tax abatement
No info
About
Seller’s agent
description
Step right into the extraordinary with Cobble Hill's most coveted penthouse! Unlock the door to your three-bedroom haven where you're greeted with stunning views of the water and lower Manhattan, flooding every corner with light and life. Crafted by the innovative Meshberg Group, this isn't just a home – it's a masterpiece of modern luxury.
Policies
Sorry, policy info isn’t available right now. Check back later.
Home features
Central air
Dishwasher
Hardwood floors
Private outdoor space
Garden, Roof deck, Roof rights, Terrace
View
City, Park, Skyline, Water
Washer/dryer
Building amenities
Services and facilities
Bike room
Doorman
Virtual
Elevator
Live-in super
Package room
Parking
Garage
Wheelchair access
Wellness and recreation
Children's playroom
Gym
Shared outdoor space
Courtyard
Roof deck
About the building
78 Amity Street
78 Amity Street, Brooklyn, NY 11201
27 units
5 stories
2018 built
For sale
3 available units for saleFor rent
0 available units for rentDocuments and permits
View documents and permitsProperty history
- Price Change: No changes
- Days on market: 32 daysThis is the number of days the listing has been on StreetEasy.
| Date | Price | Event |
|---|---|---|
6/29/2024 | $3,499,000 | Sold by Highline Residential |
5/9/2024 | $3,499,000 | In contract |
4/7/2024 | $3,499,000 | Listed by Highline Residential |
2/21/2024 | $3,200,000 | |
11/22/2023 | $3,200,000 |
Past listing photos
Sign in to take a closer look at how this home compares to similar homes.
Explore Cobble Hill
Transit
| Location | Distance |
|---|---|
R2345at Borough Hall/Court St | 0.43 miles |
FGat Bergen St | 0.45 miles |
ACFRat Jay St–MetroTech | 0.6 miles |
FGat Carroll St | 0.61 miles |
23at Clark St | 0.62 miles |
About Cobble Hill
Rental prices shown are base rent before any fees. Visit listings for cost and fees breakdown.
SalesMedian asking price
3 beds
$2.95M
RentalsMedian asking base rent
3 beds
$7,000
Cobble Hill is a beautiful, historic neighborhood with some of the borough's most expensive real estate. Despite the abundance of seven-figure homes, Cobble Hill has small-town vibe evident in the mom-and-pop stores and Italian influences that dot Court Street. Walk down the sunny commercial strip and you'll pass the local butcher, the baker and the fishmonger — all family-run and equally popular among local residents and foodies from far and wide.
On the side streets, the homes tend to be large brick townhouses and brownstones owned by single families, with well-kept facades and window boxes. This is a neighborhood where homeownership is a luxury, and residents take that responsibility to heart. The blocks are clean, the community associations active, and the lifestyle warm and genteel.





























































































































































