1,400 ft²
$950 per ft²
4 rooms
1 bed
1 bath
Co-op
- Soho
recorded sale
Sold on 4/10/2012
Verified by closing records
Last listed for $1,395,000
Seller's agents
Susan Penzner Real Estate
This home has been saved by 7 users.
Listing by Susan Penzner Real Estate, Corporate Broker | MLS #: 241178
Maintenance fees
$2,000/mo
Estimated payment
Taxes
Included in maintenance fees
Tax abatement
No info
About
Seller’s agent
Buyer’s agent
description
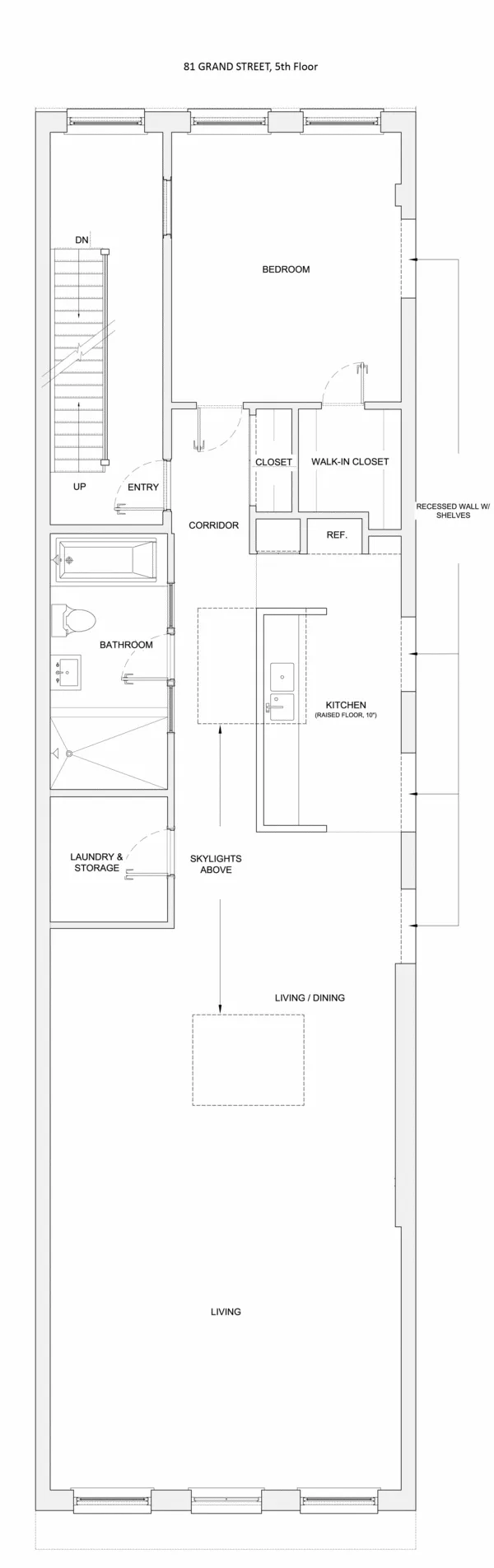
Imagine a classic Soho loft and it's all here: top floor with 2 amazing skylights, original floors, exposed brick, and 10 foot high ceilings in this sunny floor-through walk-up. The expansive size (approx 1400 sq ft) is configured as a one bedroom with a spacious open plan living room, but could easily be a two or three bedroom.
Policies
Guarantors accepted
Pied-a-terre allowed
Home features
Loft
Building amenities
No info on building amenities
About the building
81 Grand Street
81 Grand Street, New York, NY 10013
Complex:
75-85 Grand Street- units
- stories
- built
For sale
0 available units for saleFor rent
0 available units for rentDocuments and permits
View documents and permitsProperty history
- Price Change: No changes
- Days on market: 29 daysThis is the number of days the listing has been on StreetEasy.
| Date | Price | Event |
|---|---|---|
5/17/2017 | $1,639,816 | |
5/17/2017 | $1,750,000 | |
2/10/2017 | $1,750,000 | |
1/9/2017 | $1,750,000 | |
6/21/2016 | $1,750,000 |
Past listing photos
Sign in to take a closer look at how this home compares to similar homes.
Explore Soho
Transit
| Location | Distance |
|---|---|
ACEat Canal St | 0.13 miles |
JNQRWZ6at Canal St | 0.14 miles |
1at Canal St | 0.18 miles |
1at Franklin St | 0.27 miles |
CEat Spring St | 0.28 miles |
About Soho
Rental prices shown are base rent before any fees. Visit listings for cost and fees breakdown.
SalesMedian asking price
1 bed
$2.01M
RentalsMedian asking base rent
1 bed
$4,425
SoHo has some of the best people-watching in Manhattan, as it is a mecca for the trendy, sophisticated downtown elite. The north-south running streets are often sites of fashion shoots as well as home to upscale European boutiques. The east-west running streets are busier and always clogged with vendors selling everything from iPhone cases to incense. One you hit Broadway, you could be in just about any mall in America with retail chains, tourists, teenagers, and disgruntled New Yorkers dominating the avenue. The energy in SoHo is fast-paced and all hustle and bustle; it is a quintessentially vibrant New York neighborhood, but certainly not for the faint-of-heart or those looking for some peace and quiet.
Learn more about Soho














































































































