- ft²
11 rooms
3 beds
4 baths
Co-op
- Lenox Hill
recorded sale
Sold on 2/11/2014
Verified by closing records
Last listed for $19,900,000
Seller's agent
This home has been saved by 18 users.
Listing by Sotheby's International Realty, Corporate Broker, 650 Madison Avenue, New York, NY 10022 | Brokerage Listing ID: 0018158
Maintenance fees
$8,902/mo
Estimated payment
$112,159/mo
Legal disclaimerAll calculations are estimates provided by StreetEasy for informational purposes only. Actual amounts or financing terms may vary. Please contact your mortgage provider for specifics.Taxes
Included in maintenance fees
Tax abatement
No info
About
Seller’s agent
description
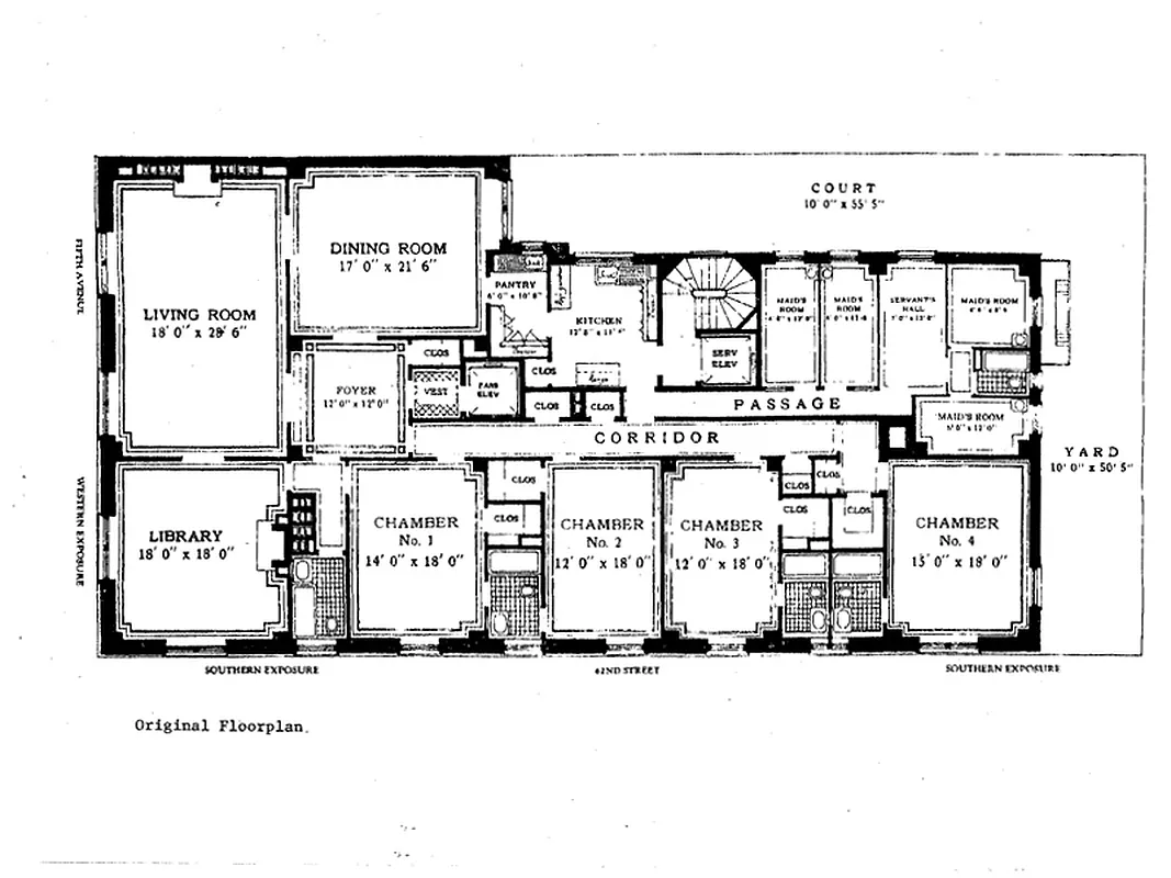
This wonderful 13-into-11 room J.E.R. Carpenter designed full floor apartment is ideally situated on 62nd Street in an elegant limestone prewar cooperative. Lovely leafy views of Central Park and southern outlooks distinguish this sophisticated residence while the gracious floor plan is enhanced by a pristine and top flite renovation.
Policies
Pets allowed
Cats and dogs allowed
Home features
No info on home features
Building amenities
Services and facilities
Doorman
Full-time
Elevator
Wellness and recreation
No info on wellness and recreation
Shared outdoor space
No info on shared outdoor space
About the building
810 5th Avenue
810 5th Avenue, New York, NY 10065
12 units
13 stories
1926 built
For sale
0 available units for saleFor rent
0 available units for rentDocuments and permits
View documents and permitsProperty history
- Price Change: ↓ $1,600,000 (-7.4%) on 7/10/12
- Days on market: 468 daysThis is the number of days the listing has been on StreetEasy.
| Date | Price | Event |
|---|---|---|
2/11/2014 | $19,000,000 | Sold by Sotheby's International Realty |
11/6/2013 | $19,900,000 | In contract |
6/14/2013 | $19,900,000 | Listed by Sotheby's International Realty |
5/30/2013 | $19,900,000 | No longer available |
1/3/2013 | $19,900,000 | Listed by Sotheby's International Realty |
Past listing photos
Sign in to take a closer look at how this home compares to similar homes.
Explore Lenox Hill
Transit
| Location | Distance |
|---|---|
NRat 59th St | under 500 feet |
FQat Lexington Av/63rd St | 0.26 miles |
NRW456at Lexington Av/59th St | 0.28 miles |
Fat 57th St | 0.31 miles |
6at 68th St–Hunter College | 0.38 miles |







































































































































































































