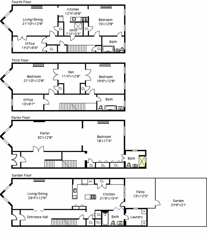
5,192 ft²
$500 per ft²
18 rooms
Studio
4 baths
Three-family home
- Park Slope
reported sale
Sold on 4/29/2010
Not yet verified by closing records
Seller's agent
Brown Harris Stevens
This home has been saved by 5 users.
Listing by Brown Harris Stevens, Real Estate Principal Office | MLS #: 209183
Common charges
Not applicable
Estimated payment
$13,369/mo
Legal disclaimerAll calculations are estimates provided by StreetEasy for informational purposes only. Actual amounts or financing terms may vary. Please contact your mortgage provider for specifics.Taxes
No info
Tax abatement
No info
About
Seller’s agent
description
This 21 ft. wide, four story brownstone located on a beautiful name street in center Park Slope awaits your personal touch. Wonderful bones and many original details all in excellent condition for the right buyer who wants to customize to their taste. Currently used as duplex with 2 rentals, but could easily convert to any configuration. A phenomenal opportunity to create a number of living options with over 5,100 square feet of space.
Policies
Sorry, policy info isn’t available right now. Check back later.
Home features
No info on home features
Building amenities
No info on building amenities
About the building
829 President Street
829 President Street, Brooklyn, NY 11215
3 units
3 stories
1905 built
For sale
0 available units for saleFor rent
0 available units for rentDocuments and permits
View documents and permitsProperty history
- Price Change: No changes
- Days on market: 50 daysThis is the number of days the listing has been on StreetEasy.
| Date | Price | Event |
|---|---|---|
4/28/2010 | $2,395,000 | |
3/20/2015 | $2,600,000 | Sold by Brown Harris Stevens |
4/29/2010 | $2,600,000 | No longer available |
4/12/2010 | $2,600,000 | In contract |
4/12/2010 | $2,600,000 | Listed by Brown Harris Stevens |
Past listing photos
Sign in to take a closer look at how this home compares to similar homes.
Explore Park Slope
Transit
| Location | Distance |
|---|---|
| 0.24 miles |
| 0.28 miles |
| 0.46 miles |
| 0.47 miles |
| 0.57 miles |
About Park Slope
Rental prices shown are base rent before any fees. Visit listings for cost and fees breakdown.
SalesMedian asking price
Studio
$474K
RentalsMedian asking base rent
Studio
$3,475
Park Slope has a tranquil, easygoing vibe and can almost feel suburban. Strollers and children of all ages are a constant presence on sidewalks, as are shoppers patronizing local boutiques and dog walkers heading up to the park. Residents are Brooklynites through and through and tend to be socially conscious, artistically minded, and committed to their community. At night, a casual restaurant scene comes alive. For anyone looking for a night out, there are plenty of beer gardens and wine bars to patronize, especially in the South Slope, but don't go looking for dance clubs.
Learn more about Park Slope



























































































































