View this home virtually
$6,695,000
For Sale
Delisted 3/11/2024
- ft²
8 rooms
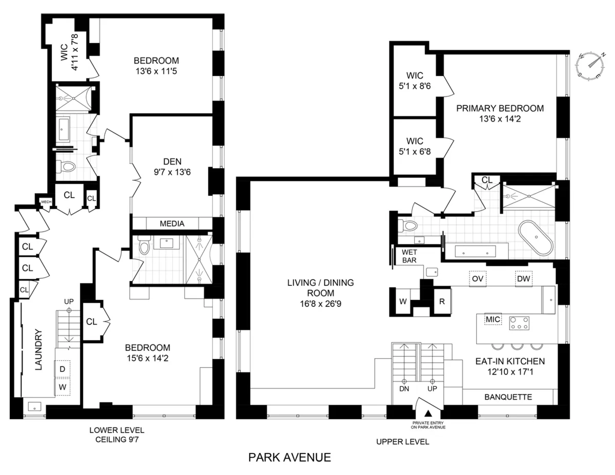
3 beds
3 baths
Co-op
- Lenox Hill
Resale
Seller's agents
This home has been saved by 48 users.
Listing by Brown Harris Stevens, Real Estate Principal Office, 445 Park Avenue, New York, NY 10022
Maintenance fees
$6,043/mo
Estimated payment
Taxes
Included in maintenance fees
Tax abatement
No info
About
Seller’s agent
description
At Home on Park Avenue.
Singular opportunity to purchase a Triple Mint, never-before-lived-in home, in a premiere full service, pre-war co-op. Maisonette A at 830 Park Avenue, on the southwest corner of 76th and Park Avenue is accessed through a private entry on the Avenue, one of only a handful of homes that offer this discreetly elegant portico, affording the experience of arriving at a privat...
Policies
Pets allowed
Cats and dogs allowed
Pied-a-terre allowed
Home features
Central air
Dishwasher
Hardwood floors
View
City
Washer/dryer
Building amenities
Services and facilities
Doorman
Full-time
Elevator
Laundry in building
Live-in super
Package room
Wellness and recreation
No info on wellness and recreation
Shared outdoor space
No info on shared outdoor space
About the building
830 Park Avenue
830 Park Avenue, New York, NY 10021
38 units
13 stories
1913 built
For sale
1 available units for saleFor rent
0 available units for rentDocuments and permits
View documents and permitsProperty history
- Price Change: ↓ $554,000 (-7.6%) on 1/24/24
- Days on market: 181 daysThis is the number of days the listing has been on StreetEasy.
| Date | Price | Event |
|---|---|---|
3/11/2024 | $6,695,000 | Delisted by Brown Harris Stevens |
1/24/2024 | $6,695,000 | Price decreased by 8% |
12/10/2023 | $7,249,000 | Price decreased by 15% |
10/11/2023 | $8,495,000 | Price decreased by 15% |
9/12/2023 | $10,000,000 | Listed by Brown Harris Stevens |
Past listing photos
Sign in to take a closer look at how this home compares to similar homes.
Explore Lenox Hill
Transit
| Location | Distance |
|---|---|
6at 77th St | 0.12 miles |
Qat 72nd St | 0.39 miles |
6at 68th St–Hunter College | 0.4 miles |
456at 86th St | 0.53 miles |
Qat 86th St | 0.53 miles |













































































































































