$2,399,000
For Sale
4,275 ft²
$561 per ft²
12 rooms
7 beds
7 baths
Three-family home
- Stuyvesant Heights
Resale
This home has been saved by 33 users.
Listing by Compass, Corporate Broker, 110 5th Avenue, New York, NY 10011
Common charges
Not applicable
Estimated payment
$13,788/mo
Legal disclaimerAll calculations are estimates provided by StreetEasy for informational purposes only. Actual amounts or financing terms may vary. Please contact your mortgage provider for specifics.Taxes
$494/mo
Tax abatement
No info
About
Seller’s agent
description
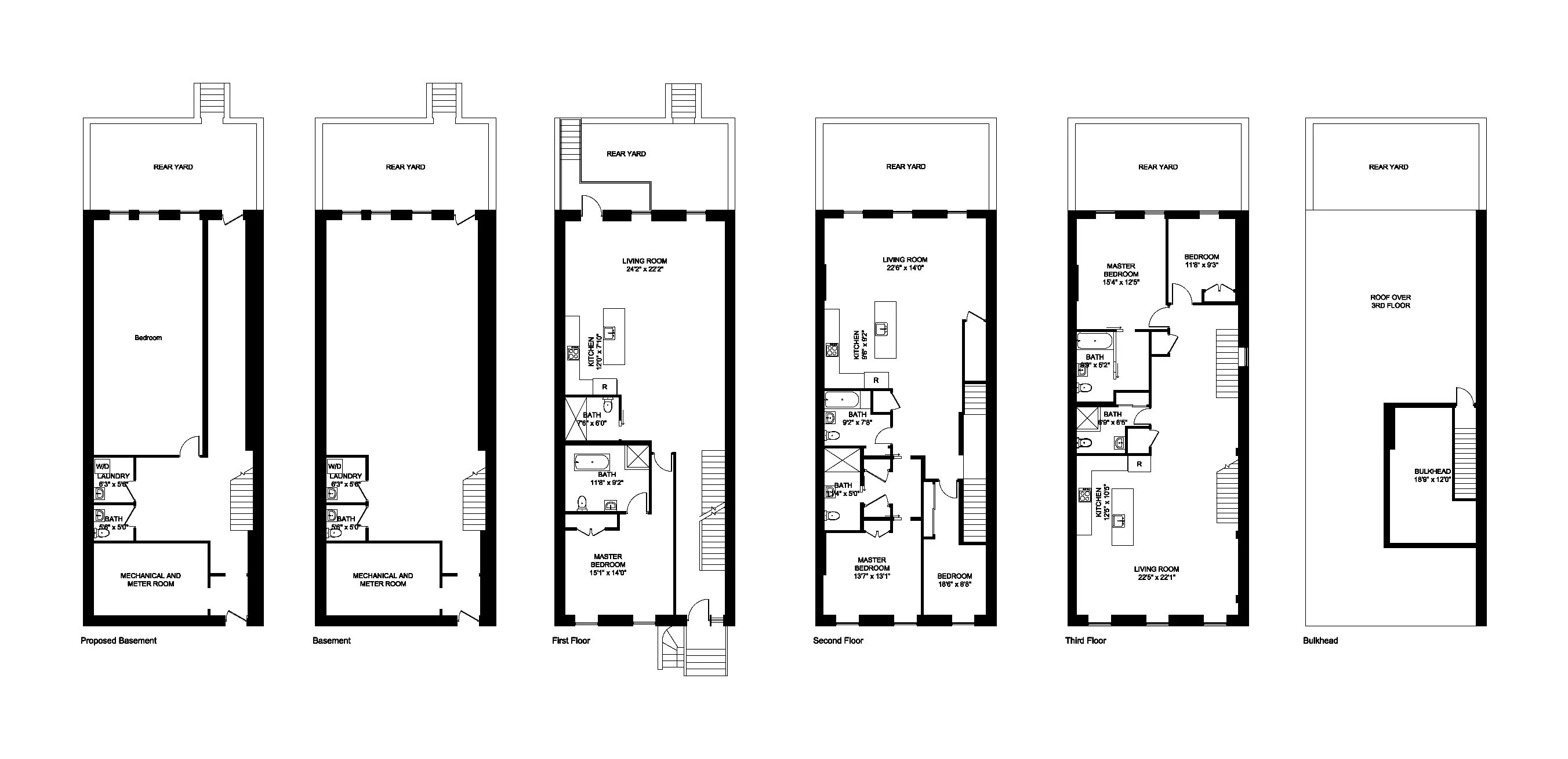
This 25 foot wide legal 3 family , four story house is waiting for you to bring your imagination.
It has already been gutted and new kitchens and most bathrooms are in place as well as W/D and so on...
Taking over now will allow you to customize at your hearts desire!
Pls note that the floorplans do not show the full back yard. Only the built out part. There another part same size that has grass/brush.
Policies
Sorry, policy info isn’t available right now. Check back later.
Home features
Dishwasher
Hardwood floors
Private outdoor space
Garden, Roof deck, Roof rights
View
City, Garden, Park, Skyline
Washer/dryer
Building amenities
Services and facilities
Laundry in building
Wellness and recreation
No info on wellness and recreation
Shared outdoor space
Courtyard
About the building
913 Lafayette Avenue
913 Lafayette Avenue, Brooklyn, NY 11221
3 units
3 stories
1899 built
For sale
1 available units for saleFor rent
0 available units for rentDocuments and permits
View documents and permitsProperty history
- Price Change: No changes
- Days on market: 111 daysThis is the number of days the listing has been on StreetEasy.
| Date | Price | Event |
|---|---|---|
11/5/2025 | $2,399,000 | Listed by Compass |
Sign in to take a closer look at how this home compares to similar homes.
Explore Stuyvesant Heights
Transit
| Location | Distance |
|---|---|
JMZat Myrtle Av | 0.35 miles |
Jat Kosciusko St | 0.41 miles |
Mat Central Av | 0.64 miles |
JZat Gates Av | 0.68 miles |
JMat Flushing Av | 0.68 miles |































































































































































































