$3,995
for rent
Base rent only. For total monthly price and additional fees, see .
Rented 7/11/2024
1,000 ft²
$47 per ft²
2 rooms
1 bed
1 bath
Condo
- Clinton Hill
Under NYC law, you can't be charged a broker fee if you didn't hire a broker.
Listed by
This home has been saved by 35 users.
Listing by Douglas Elliman, Limited Liability Broker, 190 5th Avenue, Brooklyn, NY 11217 | Brokerage Listing ID: 1533669
Unavailable
Rented on 7/11/2024
Days on market
14 days
Last price change
No changes
About
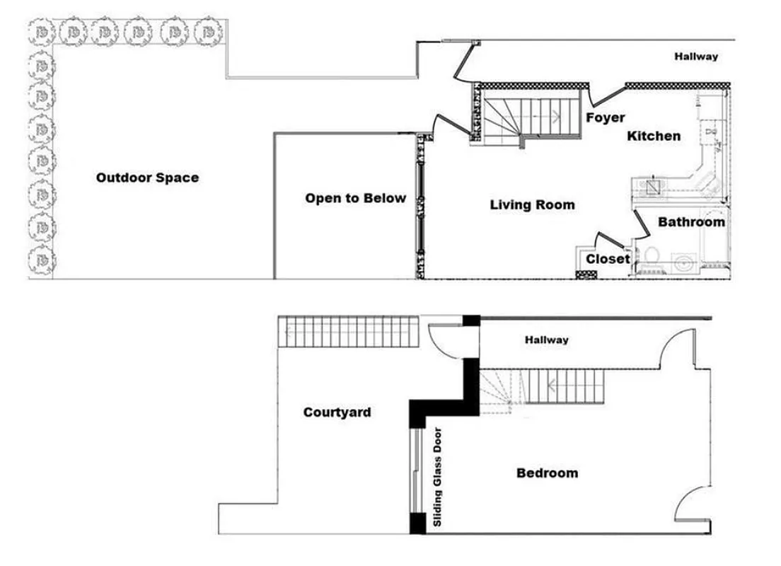
Duplex with PRIVATE PATIO & BACKYARD! Enjoy the warmer weather outside, with this chic, modern home. 8/1 move in.
Highlights include:
-Two private outdoor spaces
-Central Air Conditioning (A/C)
-Dishwasher
-Floor to ceiling windows
-Laundry in building (on the same floor – no stairs!)
-Bike storage
-Live in super
-Pets welcome : )
93 – 97 Waverly is a modern loft building with common roof deck, laundry, and live in super.
Policies
Guarantors accepted
Pets allowed
Cats and dogs allowed
Home features
Central air
Dishwasher
Hardwood floors
Private outdoor space
Garden, Terrace
View
Garden
Building amenities
Services and facilities
Bike room
Doorman
Virtual
Laundry in building
Live-in super
Package room
Storage space
Wellness and recreation
No info on wellness and recreation
Shared outdoor space
Roof deck
About the building
93 Waverly Avenue
93 Waverly Avenue, Brooklyn, NY 11205
7 units
4 stories
2005 built
Property history
Prices shown are base rent only. For total monthly price and additional fees, see .
| Date | Base rent | Event |
|---|---|---|
7/11/2024 | $3,995 | Rented by Douglas Elliman |
6/27/2024 | $3,995 | Listed by Douglas Elliman |
4/1/2022 | $3,190 | |
3/24/2022 | $3,190 | |
3/21/2022 | $3,190 |
Past listing photos
Sign in to take a closer look at how this home compares to similar homes.
Explore Clinton Hill
Transit
| Location | Distance |
|---|---|
Gat Clinton–Washington Avs | 0.46 miles |
Gat Classon Av | 0.58 miles |
Cat Lafayette Av | 0.68 miles |
Gat Fulton St | 0.7 miles |
Gat Bedford–Nostrand Avs | 0.76 miles |
Similar homes
Prices shown are base rent only and don't include any fees. Visit each listing to see a complete cost breakdown.
Similar Homes looks at ad spend and other factors like location, price, and number of beds and baths.















































































































































