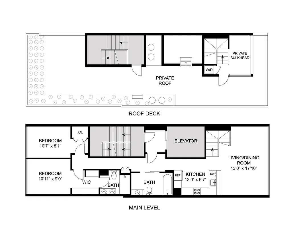
1,215 ft²
$1,230 per ft²
5 rooms
2 beds
2 baths
Condo
- Gowanus
Sponsor unit
Sponsor unitA unit being sold for the first time. It’s typically owned by the building. For condos, this is often the developer. For co-ops, this is often the building’s original owner before it went co-op.
reported sale
Sold on 1/31/2025
Not yet verified by closing records
Seller's agent
This home has been saved by 258 users.
Listing by Corcoran, Limited Liability Broker, 590 Madison Avenue, New York, NY 10022
Common charges
$884/mo
Estimated payment
$10,728/mo
Legal disclaimerAll calculations are estimates provided by StreetEasy for informational purposes only. Actual amounts or financing terms may vary. Please contact your mortgage provider for specifics.Taxes
$1,117/mo
Tax abatement
No info
About
Seller’s agent
description
DON'T MISS THESE INCENTIVES! Sponsor is offering a credit at closing equivalent to 50% of the property tax for the first 3 years AND an additional 1% to cover your mansion tax.
As you enter the penthouse from your private elevator landing, you'll immediately be impressed by the spacious kitchen and open living and dining areas, which face South and feature idyllic treetop views and beautiful natural light.
Policies
Co-purchase allowed
Gifts allowed
Guarantors accepted
Parents buying allowed
Pets allowed
Pied-a-terre allowed
Home features
Central air
Dishwasher
Hardwood floors
Private outdoor space
Roof deck
View
City, Skyline, Water
Washer/dryer
Building amenities
Services and facilities
Bike room
Doorman
Virtual
Elevator
Package room
Storage space
Locker/cage
Wheelchair access
Wellness and recreation
No info on wellness and recreation
Shared outdoor space
Deck
Garden
Patio
Roof deck
About the building
96 16th Street
96 16th Street, Brooklyn, NY 11215
4 units
4 stories
2023 built
For sale
1 available units for saleFor rent
0 available units for rentDocuments and permits
View documents and permitsProperty history
- Price Change: ↓ $100,000 (-6.3%) on 11/3/23
- Days on market: 282 daysThis is the number of days the listing has been on StreetEasy.
| Date | Price | Event |
|---|---|---|
1/31/2025 | $1,495,000 | Sold by Corcoran |
5/16/2024 | $1,495,000 | In contract |
1/12/2024 | $1,495,000 | Listed by Corcoran |
12/15/2023 | $1,495,000 | Delisted by Corcoran |
11/3/2023 | $1,495,000 | Price decreased by 6% |
Past listing photos
Sign in to take a closer look at how this home compares to similar homes.
Explore Gowanus
Transit
| Location | Distance |
|---|---|
Rat Prospect Av | under 500 feet |
Fat 4th Av | 0.32 miles |
FGRat 9th St | 0.37 miles |
Rat 25th St | 0.48 miles |
Fat 7th Av | 0.59 miles |
































































































































