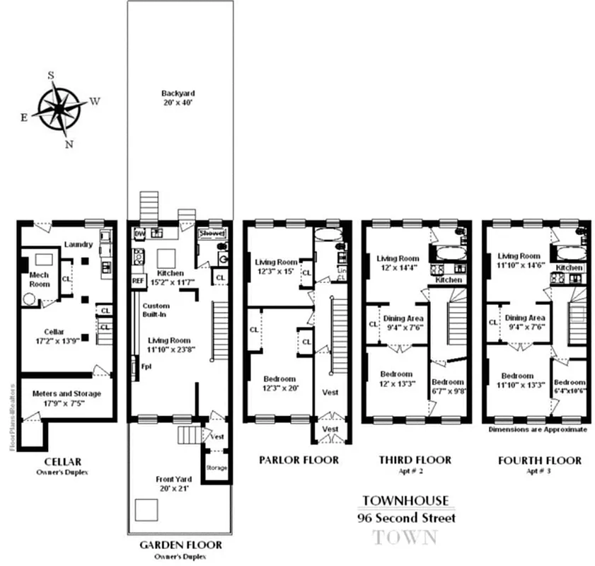
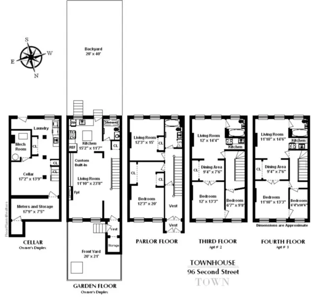
2,880 ft²
$659 per ft²
6 rooms
4 beds
4 baths
Three-family home
- Carroll Gardens
reported sale
Sold on 3/21/2013
Not yet verified by closing records
Seller's agent
Town Residential
This home has been saved by 26 users.
Listing by Town Residential, Limited Liability Broker | Brokerage Listing ID: 992364
Common charges
Not applicable
Estimated payment
Taxes
No info
Tax abatement
No info
About
Seller’s agent
description
ACCEPTED OFFER!! Carroll Garden Townhouse located in the heart of the most prestigious neighborhoods in Brooklyn. Enjoy your surroundings with the eclectic mix of history and ambiance on the lovely block of 2nd Street between Hoyt and Bond.
This fully renovated brick building that is a legal 3-family exists as an owner duplex with cellar having direct access to a perfectly landscaped rear yard receiving southern exposure from early morning to late evening.
Policies
Sorry, policy info isn’t available right now. Check back later.
Home features
Private outdoor space
Garden
Washer/dryer
Building amenities
No info on building amenities
About the building
96 2nd Street
96 2nd Street, Brooklyn, NY 11231
3 units
3 stories
1899 built
For sale
0 available units for saleFor rent
0 available units for rentDocuments and permits
View documents and permitsProperty history
- Price Change: ↓ $99,999 (-5.0%) on 10/13/12
- Days on market: 220 daysThis is the number of days the listing has been on StreetEasy.
| Date | Price | Event |
|---|---|---|
11/30/2015 | $1,900,000 | Sold by Town Residential |
3/21/2013 | $1,900,000 | No longer available |
1/31/2013 | $1,900,000 | In contract |
10/13/2012 | $1,900,000 | Price decreased by 5% |
10/13/2012 | $1,900,000 | Listed by Town Residential |
Past listing photos
Sign in to take a closer look at how this home compares to similar homes.
Explore Carroll Gardens
Transit
| Location | Distance |
|---|---|
FGat Carroll St | 0.18 miles |
FGRat Smith–9th St | 0.34 miles |
Rat Union St | 0.47 miles |
FGat Bergen St | 0.53 miles |
FGRat 9th St | 0.54 miles |
About Carroll Gardens
Rental prices shown are base rent before any fees. Visit listings for cost and fees breakdown.
SalesMedian asking price
4 beds
$3.28M
RentalsMedian asking base rent
4 beds
$14,500
Carroll Gardens is at once the heart of old-school Brooklyn and a showcase for the borough's brownstone boom. The neighborhood has long been known for its red-sauce Italian joints and lively street life. But now, staples like Caputo's Bake Shop and Monteleone's Bakery and Café abut upscale stroller shops, yoga studios and fro-yo joints. Despite the newcomers, the neighborhood still feels like a small town, one of the few places where you might know your neighbors, your postman and your butcher by name.
Learn more about Carroll Gardens














































































































































