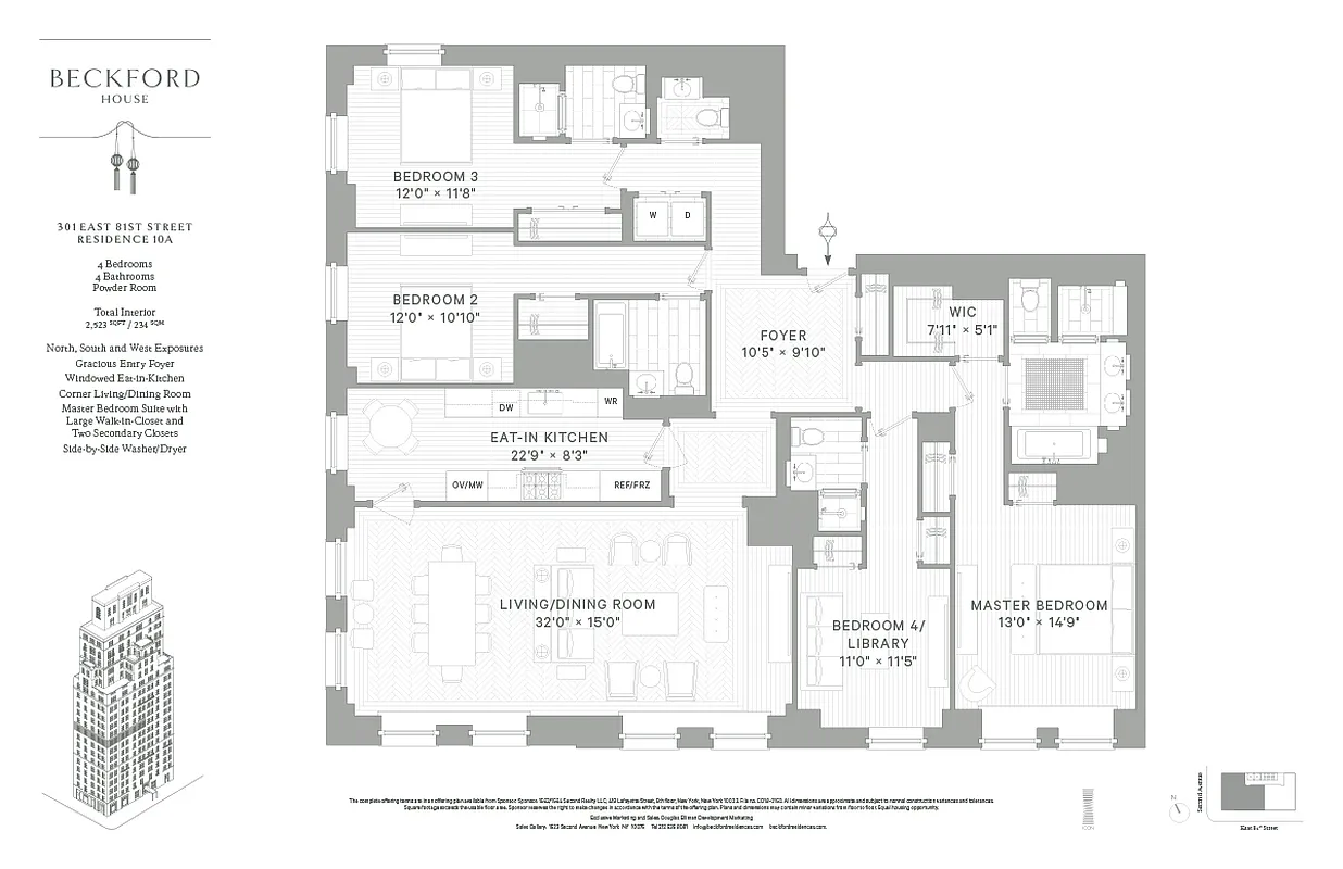
2,523 ft²
$2,219 per ft²
9 rooms
4 beds
4.5 baths
Condo
- Yorkville
Sponsor unit
Sponsor unitA unit being sold for the first time. It’s typically owned by the building. For condos, this is often the developer. For co-ops, this is often the building’s original owner before it went co-op.
recorded sale
Sold on 10/29/2020
Verified by closing records
Last listed for $5,850,000
Seller's agents
Tal Alexander
Licensed Real Estate Salesperson
Douglas Elliman
This home has been saved by 61 users.
Listing by Douglas Elliman, Limited Liability Broker, 575 Madison Avenue, New York, NY 10022 | Brokerage Listing ID: 3979407
Common charges
$3,672/mo
Estimated payment
$40,400/mo
Legal disclaimerAll calculations are estimates provided by StreetEasy for informational purposes only. Actual amounts or financing terms may vary. Please contact your mortgage provider for specifics.Taxes
$3,988/mo
Tax abatement
No info
About
Seller’s agent
description
Virtual appointments are now available.
Presenting Beckford House residence 10A, a corner 2,523 square-foot four bedroom, four-and-a-half bathroom home.
A gracious entry foyer featuring striking herringbone flooring welcomes you, leading to a separate custom-designed Christopher Peacock windowed eat-in kitchen with a stunning Statuary marble countertop and backsplash.
Policies
Pets allowed
Home features
No info on home features
Building amenities
Services and facilities
Concierge
Doorman
Elevator
Laundry in building
Package room
Storage space
Cold storage
Wellness and recreation
Gym
Shared outdoor space
Roof deck
About the building
Beckford House
301 East 81st Street, New York, NY 10028
Complex:
Beckford House and Tower32 units
- stories
2019 built
For sale
1 available units for saleFor rent
0 available units for rentDocuments and permits
View documents and permitsProperty history
- Price Change: No changes
- Days on market: 213 daysThis is the number of days the listing has been on StreetEasy.
| Date | Price | Event |
|---|---|---|
10/29/2020 | $5,600,000 | Sold by Douglas Elliman |
7/18/2020 | $5,850,000 | Delisted by Douglas Elliman |
12/18/2019 | $5,850,000 | Listed by Douglas Elliman |
Past listing photos
Sign in to take a closer look at how this home compares to similar homes.
Explore Yorkville
Transit
| Location | Distance |
|---|---|
Qat 86th St | 0.12 miles |
6at 77th St | 0.32 miles |
456at 86th St | 0.34 miles |
Qat 72nd St | 0.47 miles |
Qat 96th St | 0.64 miles |
About Yorkville
Rental prices shown are base rent before any fees. Visit listings for cost and fees breakdown.
SalesMedian asking price
4 beds
$4M
RentalsMedian asking base rent
4 beds
$15,472
When George Washington commandeered the building site that would eventually become Gracie Mansion, he probably didn't imagine that this peaceful, riverside enclave would become the lively residential neighborhood it is today. Between then and now, Yorkville has seen a lot of change. Tony mansions and elevated trains went up at the turn of the century and then came down in the postwar years as a middle-class population moved in.
Now, the neighborhood is a haven of high-rise co-ops and condos interspersed with quiet rows of townhouses. The mixed housing stock makes Yorkville a practical choice for anyone seeking a slowed-down Manhattan vibe. Several avenues over from the throngs of Lexington and Third Avenues, Yorkville maintains a low-key, no-frills feel — it's a place where you'll find more diners and donut shops than upscale lounges and boutiques. This homey attitude is writ in its storefronts, where the food is kept simple and the owners are often from around the block.

















































































































































































