View this home virtually
$3,795
For Rent
Base rent only. For total monthly price and additional fees, see .
Rented 11/18/2024
$3,479 net effective base rent
1 month free
12-month lease
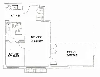
800 ft²
$56 per ft²
4 rooms
2 beds
1 bath
Condo
- Greenwood
Under NYC law, you can't be charged a broker fee if you didn't hire a broker.
Listed By
This home has been saved by 42 users.
Listing by R New York, Limited Liability Broker, 641 Lexington Avenue, New York, NY 10022
Unavailable
Rented on 11/18/2024
Days on market
61 days
Last price change
↓ $105 (-2.7%) on 10/12/24
About
South Slope Pet Friendly Elevator 2 Bed Condo Features Split Bed Layout, In-Unit Vented Washer/Dryer, Granite Kitchen w/Stainless Appliances including Dishwasher, Split System Multi-Zoned Air Conditioning, Juliet Balcony, Marble Bath, Recessed Lighting, North and West Exposures, CITY QUIET Windows, Excellent Closet Space and a Large Living/Dining Area.
Policies
Sorry, policy info isn’t available right now. Check back later.
Home features
Central air
Dishwasher
Hardwood floors
Private outdoor space
Balcony
View
City
Washer/dryer
Building amenities
Services and facilities
Bike room
Doorman
Virtual
Elevator
Wellness and recreation
No info on wellness and recreation
Shared outdoor space
Deck
About the building
Bisney View Condominiums
599 4th Avenue, Brooklyn, NY 11215
19 units
8 stories
1920 built
Property history
Prices shown are base rent only. For total monthly price and additional fees, see .
| Date | Base rent | Event |
|---|---|---|
11/18/2024 | $3,795 | Rented by R New York |
11/16/2024 | $3,795 | In contract |
10/12/2024 | $3,795 | Price decreased by 3% |
9/30/2024 | $3,900 | Listed by R New York |
8/28/2024 | $3,900 | Rented by R New York |
Past listing photos
Sign in to take a closer look at how this home compares to similar homes.
Explore Greenwood
Transit
| Location | Distance |
|---|---|
Rat Prospect Av | under 500 feet |
Rat 25th St | 0.39 miles |
Fat 4th Av | 0.41 miles |
FGRat 9th St | 0.46 miles |
Fat 7th Av | 0.61 miles |
Similar homes
Prices shown are base rent only and don't include any fees. Visit each listing to see a complete cost breakdown.
Similar Homes looks at ad spend and other factors like location, price, and number of beds and baths.




































































































