$3,999
For Rent
Base rent only. For total monthly price and additional fees, see .
Rented 5/15/2025
559 ft²
$85 per ft²
2 rooms
Studio
1 bath
Condo
- Fulton/Seaport
Under NYC law, you can't be charged a broker fee if you didn't hire a broker.
Listed By
This home has been saved by 34 users.
Listing by Douglas Elliman, Limited Liability Broker, 575 Madison Avenue -, New York, NY 10022 | Brokerage Listing ID: 23414466
Unavailable
Rented on 5/15/2025
Days on market
18 days
Last price change
No changes
About
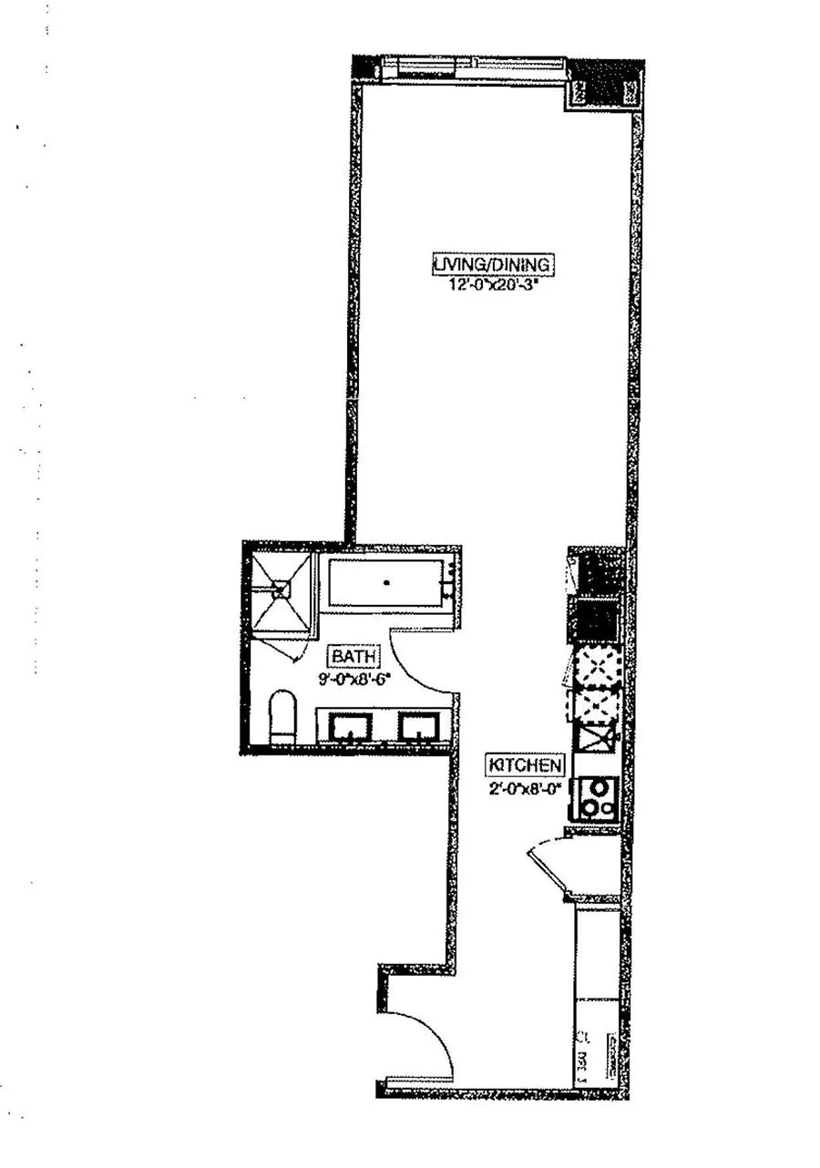
Welcome to the District at 111 Fulton Street - one of Downtown's premier full-service condominiums in the booming Financial District. This oversized loft-like studio is flooded with light coming through large tilt-and-turn windows, it boasts soaring 12-foot ceilings; sleek open-kitchen layout with Miele chef's appliances, Caesar stone countertops and Liebherr refrigerator/freezer.
Policies
Pets allowed
Cats and dogs allowed
Home features
Central air
Dishwasher
Hardwood floors
View
City
Washer/dryer
Building amenities
Services and facilities
Concierge
Doorman
Full-time
Elevator
Laundry in building
Storage space
Cold storage
Wellness and recreation
Gym
Swimming pool
Shared outdoor space
Roof deck
About the building
District
111 Fulton Street, New York, NY 10038
- units
10 stories
1940 built
Property history
Prices shown are base rent only. For total monthly price and additional fees, see .
| Date | Base rent | Event |
|---|---|---|
5/15/2025 | $3,999 | Rented by Douglas Elliman |
5/2/2025 | $3,999 | In contract |
4/14/2025 | $3,999 | Listed by Douglas Elliman |
11/19/2022 | $3,900 | |
10/15/2022 | $3,900 |
Past listing photos
Sign in to take a closer look at how this home compares to similar homes.
Explore Fulton/Seaport
Transit
| Location | Distance |
|---|---|
ACJZ2345at Fulton St | under 500 feet |
JZ456at Brooklyn Bridge–City Hall | 0.16 miles |
AC23at Park Place | 0.2 miles |
23at Wall St | 0.21 miles |
JZat Broad St | 0.21 miles |
Similar homes
Prices shown are base rent only and don't include any fees. Visit each listing to see a complete cost breakdown.
Similar Homes looks at ad spend and other factors like location, price, and number of beds and baths.



















































































































